さぬき市鴨庄の中古戸建
掲載情報更新日:2026年05月09日 次回更新予定日:2026年05月23日
- 650万円
-
- 借入ご希望金額
万円 - 借入期間
年 - 借入金利
% - 月々のお支払い金額
円
- 借入ご希望金額
※ 月々のお支払例は目安の試算となりますので、実際の金額とは異なる場合がございます。詳しくは店舗までお問合わせください。
- さぬき市鴨庄
-
高松琴平電鉄志度線『琴電志度』 徒歩44分 (約3500m)
コミュニティバス『白方漁港停』 徒歩2分 (約130m)
さぬき市鴨庄一戸建て | 物件情報
現状有姿のお引渡し。敷地広々約203坪!
母屋、離れと納屋の2棟と、お堀と井戸があるお庭付。
昭和レトロな大きなお屋敷です。田舎暮らしにいかがですか?
物件の設備
- 電気
- 公営水道
- 公共下水
- プロパンガス
- システムキッチン
- トイレ
- 和室
- 屋根裏収納
- 庭
物件の特徴
- 海に近い
- 周辺交通量少なめ
- 田園風景
- 陽当り良好
- 古民家風
- 即入居可
物件詳細情報
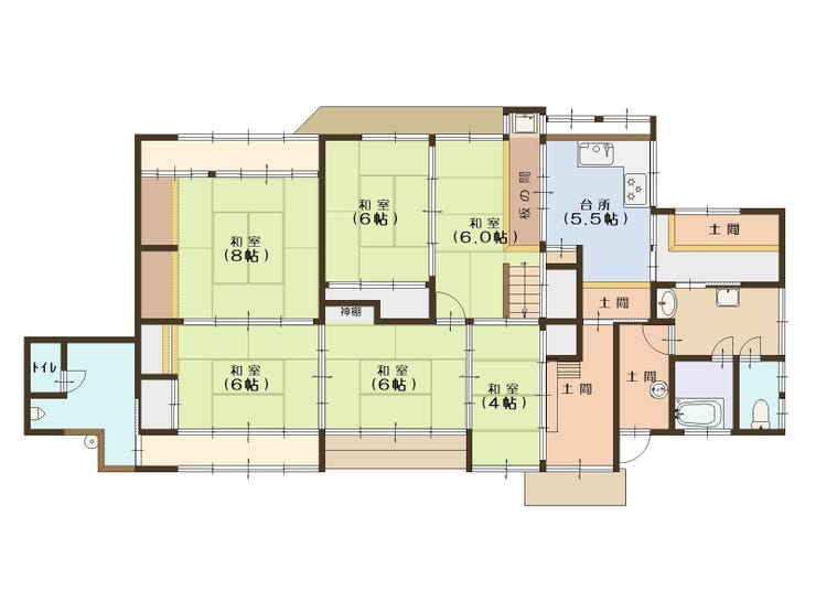
| 価格 | 650万円 | 間取り | 6DK |
|---|---|---|---|
| 物件種別 | 中古一戸建て | ||
| 所在地 | 香川県さぬき市鴨庄3549-2 | ||
| アクセス |
|
||
| 建物面積 | 実116.41㎡ | 駐車場 | あり 軽:5台 |
| 築年月 | 1935年(昭和10年)01月築 | ||
| 建物構造 | 木造 1階建 | 工法 | |
| 主要採光 | 南向 | バルコニー | |
| 保証・評価 | |||
| リフォーム | |||
| 土地面積 | 公672㎡(203.28坪) | 接道 | 北側(公道)幅 約3.1m |
| 私道 | セットバック | ||
| 地目 | 宅地 | 地勢 | 平坦 |
| 権利 | 所有権 |
||
| 都市計画 | 非線引区域 |
用途地域 | 指定無 |
| 建ぺい/容積率 | 70% / 200% | 土地国土法 | |
| 許可番号 | 建築基準法 | ||
| 法令制限 | |||
| 小学区 | さぬき北小学校 徒歩33分 (約2600m) | 中学区 | 志度中学校 徒歩48分 (約3800m) |
| 現況 | 空 | 引渡 | 即 |
| その他費用 | |||
| 備考 | 現状有姿のお引渡し。敷地広々約203坪! 母屋、離れと納屋の2棟と、お堀と井戸があるお庭付。 昭和レトロな大きなお屋敷です。田舎暮らしにいかがですか? リフォーム工事も承ります。(建物未登記、増築部分あり) |
||
| 物件番号 | 4228070 | 取引態様 | 専任媒介 |
取扱店舗情報
| 電話番号 | 087-834-2510 |
|---|---|
| 所在地 | 〒760-0052 香川県高松市瓦町1丁目8-1 |
| 営業時間 | 9:00~18:00 |
| 定休日 | 水曜日 |
| 宅建免許番号 | 国土交通大臣(2)第9468号 |
| アクセス | 店舗への地図はこちら |

来店ご予約
香川県さぬき市で価格が似ている物件はこちら
- 香川県
マイページ物件数 - 677件
最近見た物件
-
-

-
- 中古一戸建て
- 600万円
-
四国中央市土居町上野
-
JR予讃線関川
-
-
-

-
- 収益
- 420万円
-
鹿児島市下荒田1丁目
-
市電谷山線二中通
-
-
-

-
- 中古一戸建て
- 1,380万円
-
鹿児島市西坂元町
-
JR鹿児島本線鹿児島中央
-
香川県中古一戸建て新着物件
- お近くの店舗を探す
-

























リフォーム工事も承ります。(建物未登記、増築部分あり)