富山市日尾の中古戸建
掲載情報更新日:2026年05月15日 次回更新予定日:2026年05月29日
- 670万円
-
- 借入ご希望金額
万円 - 借入期間
年 - 借入金利
% - 月々のお支払い金額
円
- 借入ご希望金額
※ 月々のお支払例は目安の試算となりますので、実際の金額とは異なる場合がございます。詳しくは店舗までお問合わせください。
- 富山市日尾
-
『日尾口』 徒歩3分 (約240m)
富山市日尾一戸建て | 物件情報
山間部に佇む和の邸宅 EV充電設備付き!環境と快適性を両立
風光明媚な日本の原風景が広がる自然豊かで静かな環境です。
物件の設備
- 電気
- オール電化
- 公営水道
- 公共下水
- 給湯
- IHクッキングヒーター
- コンロ三口
- グリル
- システムキッチン
- バス1坪以上
- 追焚機能
- 浴室に窓
- シャワールーム
- トイレ2箇所
- 室内洗濯機置場
- 洗髪洗面化粧台
- 洗面所独立
- 全室エアコン
- EV車充電設備
物件の特徴
- 前道6m以上
- 3階建以上
物件詳細情報
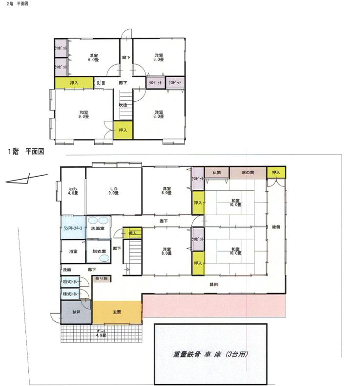
| 価格 | 670万円 | 間取り | 8LDK |
|---|---|---|---|
| 物件種別 | 中古一戸建て | ||
| 所在地 | 富山県富山市日尾字落尾谷割147番地1 | ||
| アクセス |
|
||
| 建物面積 | 263.83㎡ | 駐車場 | あり |
| 築年月 | 1995年(平成7年)07月築 | ||
| 建物構造 | 木造 3階建 | 工法 | |
| 主要採光 | 西向 | バルコニー | |
| 保証・評価 | |||
| リフォーム | |||
| 土地面積 | 公208.44㎡(63.05坪) | 接道 | 西側(公道)幅 約8.2m 間口 約17.00m |
| 私道 | セットバック | 無 | |
| 地目 | 宅地 | 地勢 | 平坦 |
| 権利 | 所有権 |
||
| 都市計画 | 非線引区域 |
用途地域 | 指定無 |
| 建ぺい/容積率 | 60% / 200% | 土地国土法 | |
| 許可番号 | 建築基準法 | ||
| 法令制限 | |||
| 小学区 | 中学区 | ||
| 現況 | 空 | 引渡 | 相談 |
| その他費用 | |||
| 備考 | H7年7月 全面的に建替済 | ||
| 物件番号 | 4229938 | 取引態様 | 専任媒介 |
取扱店舗情報
| 電話番号 | 076-461-4955 |
|---|---|
| 所在地 | 〒939-8261 富山県富山市萩原241-1 |
| 営業時間 | 9:30~18:00 |
| 定休日 | 火曜日、水曜日、年末年始 |
| 宅建免許番号 | 富山県知事(1)第3193号 |
| アクセス | 店舗への地図はこちら |

来店ご予約
富山県富山市で価格が似ている物件はこちら
- 富山県
マイページ物件数 - 630件
最近見た物件
-
-

-
- 新築一戸建て
- 3,298万円
-
糟屋郡宇美町宇美中央1丁目
-
JR香椎線宇美
-
-
-

-
- 土地
- 677.10万円
-
倉敷市連島町矢柄
-
水島臨海鉄道弥生
-
-
-

-
- 中古マンション
- 4,980万円
-
和歌山市毛見
-
JR紀勢本線海南
-
富山県中古一戸建て新着物件
- お近くの店舗を探す
-
おすすめ物件
-
-

-
- 中古一戸建て
- 3,280万円
-
富山市中冨居
-
あいの風とやま鉄道新富山口
-
-
-

-
- 中古一戸建て
- 1,499万円
-
富山市町村
-
富山地鉄不二越上滝線不二越
-
-
-

-
- 中古一戸建て
- 2,980万円
-
富山市有沢
-
富山地鉄富山市内線トヨタGスクエア五福
-
-
-

-
- 中古一戸建て
- 980万円
-
富山市向新庄町1丁目
-
富山地鉄本線越中荏原
-
-
-

-
- 中古一戸建て
- 700万円
-
富山市中田2丁目
-
あいの風とやま鉄道東富山
-
-
-

-
- 中古一戸建て
- 2,700万円
-
富山市本郷町
-
富山地鉄不二越上滝線上堀
-
-
-

-
- 中古一戸建て
- 960万円
-
富山市藤の木台2丁目
-
富山地鉄本線越中荏原
-
-
-

-
- 中古一戸建て
- 855万円
-
富山市岩瀬文化町
-
富山地鉄富山港線競輪場前
-
-
-

-
- 中古一戸建て
- 980万円
-
富山市北代
-
あいの風とやま鉄道呉羽
-
-
-

-
- 中古一戸建て
- 2,650万円
-
富山市本郷町
-
富山地鉄不二越上滝線上堀
-






























担当エージェント:江本 憲司
湿気や害虫対策に優れた高基礎による堅牢で美しい邸宅です。
文章では表現しきれない素晴らしさがあります。
是非、ご自身の目でお確かめ下さい。