淀川区十八条3丁目 中古戸建
掲載情報更新日:2025年10月25日 次回更新予定日:2025年11月08日
- 4,280万円
-
- 借入ご希望金額
万円 - 借入期間
年 - 借入金利
% - 月々のお支払い金額
円
- 借入ご希望金額
※ 月々のお支払例は目安の試算となりますので、実際の金額とは異なる場合がございます。詳しくは店舗までお問合わせください。
- 大阪市淀川区十八条3丁目
-
阪急電鉄宝塚線『三国』 徒歩14分 (約1120m)
阪急電鉄宝塚線『庄内』 徒歩17分 (約1360m)
大阪市御堂筋線『江坂』 徒歩26分 (約2080m)
淀川区十八条3丁目 中古戸建一戸建て | 物件情報
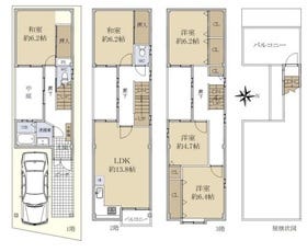
■令和4年築 ■駐車スペース ■3LDK+WIC ■南北両面バルコニー ■豊南小学校へ通学可
---イチ押しポイント---
■令和4年建築の築浅戸建!
■太陽光蓄電池完備のエコ住宅です♪
■豊南小学校・第十二中学校への通学も可能です!
■閑静な住宅街で子育てファミリーにも人気のエリアです!
---周辺環境---
■豊南小学校・・・徒歩10分
■三国小学校・・・徒歩18分
■三国中学校・・・徒歩18分
■スーパー・・・徒歩11分
■コンビニ・・・徒歩7分
※当社では他社様が掲載している物件もご紹介、ご案内が可能です!
あわせて内覧を希望される際は、お問い合わせの際希望の物件名をお申し付けくださいませ!
「お家探し」「ご売却」は
地域密着型不動産『ハウスドゥ新大阪北』におまかせ下さい!
お客様にお会いできること、スタッフ一同、心よりお待ちしております!
物件の設備
- 電気
- 上水道
- 公営水道
- 下水道
- 公共下水
- 都市ガス
- 給湯
- 食器乾燥機
- 食器洗浄乾燥機
- コンロ三口
- グリル
- ガスコンロ付
- カウンターキッチン
- システムキッチン
- ユニットバス
- オートバス
- 追焚機能
- 浴室暖房
- 浴室乾燥機
- 浴室に窓
- トイレ
- 温水洗浄便座
- 室内洗濯機置場
- 洗髪洗面化粧台
- 洗面所独立
- 太陽光発電システム
- ディンプルキー
- ダブルロックキー
- モニタ付インターホン
- LDK15畳以上
- 2面採光
- 全室2面採光
- フローリング
- 全室フローリング
- 網戸
- クローゼット
- クローゼット2箇所
- クローゼット3箇所
- ウォークインクローゼット
- 全居室収納
- シューズボックス
- バルコニー
- 2面バルコニー
- 両面バルコニー
- ワイドバルコニー
- ハイルーフ駐車可能
物件の特徴
- 2沿線利用可
- 駅まで平坦
- 前道6m以上
- 整備された歩道
- 緑豊かな住宅地
- 閑静な住宅街
- 周辺交通量少なめ
- 市街地が近い
- 都市近郊
- 眺望良好
- 通風良好
- 陽当り良好
- 2階建
- 前面棟無
- 平坦地
物件詳細情報
| 価格 | 4,280万円 | 間取り | 3LDK |
|---|---|---|---|
| 物件種別 | 中古一戸建て | ||
| 所在地 | 大阪府大阪市淀川区十八条3丁目 | ||
| アクセス |
|
||
| 建物面積 | 公89.82㎡ | 駐車場 | あり 普通:1台 軽:2台 |
| 築年月 | 2022年(令和4年)02月築 | ||
| 建物構造 | 木造 2階建 | 工法 | |
| 主要採光 | 北向 | バルコニー | 北向10.00㎡ |
| 保証・評価 | |||
| リフォーム | |||
| 土地面積 | 公82.89㎡(25.07坪) | 接道 | 北側(私道)幅 約6.0m 間口 約6.85m |
| 私道 | セットバック | 無 | |
| 地目 | 宅地 | 地勢 | |
| 権利 | 所有権 |
||
| 都市計画 | 市街化区域 |
用途地域 | 工業 |
| 建ぺい/容積率 | 60% / 200% | 土地国土法 | |
| 許可番号 | 建築基準法 | ||
| 法令制限 | |||
| 小学区 | 三国小学校 徒歩18分 (約1400m) | 中学区 | 三国中学校 徒歩18分 (約1400m) |
| 現況 | 居住中 | 引渡 | 相談 |
| その他費用 | |||
| 備考 | 『ご購入・ご売却頂いたお客様のリアルな声』直筆アンケートを公開中!お客様の声よりご覧いただけます♪ 【物件見学】 ■ご希望の場所までお迎えにあがります♪ ■ご希望があれば近隣の資料をお持ちいたします♪ ■当社ではお客様のご自宅で、ご購入のご相談をお聞きすることも可能です♪ ■お客様にピッタリの物件をご紹介します♪ 【住宅ローンについて】 ■住宅ローン代行サービス♪ ■店頭で住宅ローンのご相談、資金計画、お申込みが可能です♪ 【中古×リフォーム】 ■購入からリフォームまでワンストップでご提供できます♪ ■中古物件購入+リフォーム費用もまとめてお見積り! 【ご売却】 ■売却活動なしで最短2~3日で、現金買取り致します ■売却のご相談・査定も無料で受付中です♪ |
||
| 物件番号 | 4239000 | 取引態様 | 一般 |
取扱店舗情報
ハウスドゥ 新大阪北 株式会社mobility 店舗詳細ページへ
| 電話番号 | 06-6836-9305 |
|---|---|
| 所在地 | 〒532-0005 大阪府大阪市淀川区三国本町3丁目29-15 |
| 営業時間 | 10:00~19:00 |
| 定休日 | 水曜日 |
| 宅建免許番号 | 大阪府知事(3)第57896号 |
| アクセス | 店舗への地図はこちら |

来店ご予約
大阪府大阪市淀川区で価格が似ている物件はこちら
- 大阪府
マイページ物件数 - 14,875件
最近見た物件
-
-

-
- 新築一戸建て
- 3,748万円
-
熊本市北区高平2丁目
-
高平団地バス停
-
-
-

-
- 中古一戸建て
- 2,580万円
-
大阪市住吉区墨江3丁目
-
阪堺電気軌道阪堺線安立町
-
大阪府中古一戸建て新着物件
-
-

-
- 中古一戸建て
- 1,450万円
-
豊中市螢池西町1丁目
-
阪急電鉄宝塚線蛍池駅
-
-
-

-
- 中古一戸建て
- 1億5,000万円
-
豊中市服部南町2丁目
-
阪急電鉄宝塚線服部天神駅
-
-
-

-
- 中古一戸建て
- 6,280万円
-
大阪市西成区天下茶屋1丁目
-
大阪市堺筋線天下茶屋駅
-
-
-

-
- 中古一戸建て
- 3億1,000万円
-
大阪市浪速区日本橋東1丁目
-
南海電鉄本線難波駅
-
-
-

-
- 中古一戸建て
- 3,380万円
-
大阪市生野区中川2丁目
-
近鉄難波・奈良線今里駅
-
-
-

-
- 中古一戸建て
- 2,280万円
-
大阪市港区港晴4丁目
-
大阪市中央線大阪港駅
-
-
-

-
- 中古一戸建て
- 4,498万円
-
大阪市港区市岡元町2丁目
-
大阪市中央線弁天町駅
-
- お近くの店舗を探す
-
おすすめ物件
-
-

-
- 中古一戸建て
- 2,980万円
-
大阪市住吉区山之内4丁目
-
JR阪和線杉本町
-
-
-

-
- 中古一戸建て
- 2,980万円
-
八尾市八尾木3丁目
-
JR関西本線志紀
-
-
-

-
- 中古一戸建て
- 2,430万円
-
大阪市淀川区三津屋中1丁目
-
阪急電鉄神戸線神崎川
-
-
-

-
- 中古一戸建て
- 2,380万円
-
大阪市住之江区平林南2丁目
-
南港ポートタウン線(ニュートラム)平林
-
-
-

-
- 中古一戸建て
- 1,600万円
-
八尾市垣内4丁目
-
近鉄信貴線信貴山口
-
-
-

-
- 中古一戸建て
- 1億8,000万円
-
大阪市住吉区清水丘3丁目
-
南海電鉄高野線我孫子前
-
-
-

-
- 中古一戸建て
- 980万円
-
八尾市郡川6丁目
-
近鉄信貴線信貴山口
-
-
-

-
- 中古一戸建て
- 2,380万円
-
泉大津市寿町
-
南海電鉄本線松ノ浜
-
-
-

-
- 中古一戸建て
- 1,780万円
-
堺市中区伏尾
-
南海電鉄泉北線泉ケ丘
-
-
-

-
- 中古一戸建て
- 2,200万円
-
川西市鼓が滝3丁目
-
能勢電鉄鼓滝
-






































担当エージェント:吉田 広輝
令和4年建築の築浅物件が出ました♪駐車スペースは軽自動車なら2台停められます!太陽光・蓄電池付きの2階建て3LDKの戸建です!築浅の人気物件の為、ぜひお早めにお問合せください!