山鹿市山鹿の中古戸建
掲載情報更新日:2025年09月23日 次回更新予定日:2025年10月07日
- 2,098万円
-
- 借入ご希望金額
万円 - 借入期間
年 - 借入金利
% - 月々のお支払い金額
円
- 借入ご希望金額
※ 月々のお支払例は目安の試算となりますので、実際の金額とは異なる場合がございます。詳しくは店舗までお問合わせください。
- 山鹿市山鹿
-
JR豊肥本線『光の森』 車37分(約29.8km)
JR豊肥本線『三里木』 車39分(約30.8km)
JR豊肥本線『武蔵塚』 車42分(約32.2km)
山鹿市山鹿一戸建て | 物件情報
物件の設備
- 電気
- オール電化
- 上水道
- 下水道
- IHクッキングヒータ
- コンロ三口
- カウンターキッチン
- システムキッチン
- オートバス
- 追焚機能
- 浴室暖房
- 浴室乾燥機
- 浴室に窓
- トイレ
- トイレ2箇所
- 温水洗浄便座
- 室内洗濯機置場
- ダウンライト
- 省エネ給湯器
- ディンプルキー
- ダブルロックキー
- モニタ付インターホン
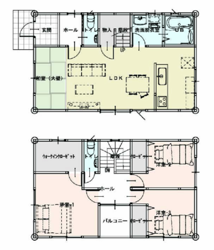
- LDK20畳以上
- 和室
- 複層ガラス
- シャッター雨戸
- クローゼット
- ウォークインクローゼット
- 全居室収納
物件の特徴
- 2階建
物件詳細情報
価格 | 2,098万円 | 間取り | 3LDK |
---|---|---|---|
物件種別 | 中古一戸建て | ||
所在地 | 熊本県山鹿市山鹿 2号棟 | ||
アクセス |
|
||
建物面積 | 96.05㎡ | 駐車場 | あり 普通:3台 |
築年月 | 2023年(令和5年)06月築 | ||
建物構造 | 木造 2階建 | 工法 | |
主要採光 | バルコニー | ||
保証・評価 | |||
リフォーム | |||
土地面積 | 169.47㎡(51.26坪) | 接道 | |
私道 | セットバック | ||
地目 | 宅地 | 地勢 | |
権利 | 所有権 |
||
都市計画 | 市街化区域 |
用途地域 | 1種住居 |
建ぺい/容積率 | 60% / 150% | 土地国土法 | |
許可番号 | 建築基準法 | ||
法令制限 | |||
小学区 | 山鹿小学校 徒歩5分 (約340m) | 中学区 | 山鹿中学校 徒歩7分 (約520m) |
現況 | 完工済 | 引渡 | 相談 |
その他費用 | |||
周辺環境 | コメリ山鹿店 徒歩6分 (約410m) 熊本銀行 山鹿支店 徒歩4分 (約290m) スーパーセンタートライアル山鹿店 徒歩7分 (約520m) 山鹿郵便局 徒歩6分 (約470m) セブンイレブン 山鹿中央通り店 徒歩11分 (約860m) ゆめマート山鹿 徒歩16分 (約1220m) |
||
備考 | |||
物件番号 | 4246994 | 取引態様 | 媒介 |
取扱店舗情報
ハウスドゥ 大江 まつばや百貨店不動産株式会社 店舗詳細ページへ
電話番号 | 096-206-1230 |
---|---|
所在地 | 〒862-0971 熊本県熊本市中央区大江1丁目2-19 |
営業時間 | 9:00~18:00 |
定休日 | 水曜日 |
宅建免許番号 | 熊本県知事(1)第5729号 |
アクセス | 店舗への地図はこちら |
来店ご予約
熊本県山鹿市で価格が似ている物件はこちら
- 熊本県
マイページ物件数 - 2,988件
熊本県中古一戸建て新着物件
-
-
-
- 中古一戸建て
- 450万円
-
熊本市西区島崎7丁目
-
熊本市上熊本線本妙寺入口駅
-
-
-
-
- 中古一戸建て
- 1,788万円
-
熊本市南区孫代町
-
九州産交バス砂原
-
-
-
-
- 中古一戸建て
- 2,058万円
-
熊本市東区長嶺南5丁目
-
熊本都市バス小峯
-
-
-
-
- 中古一戸建て
- 1,890万円
-
熊本市北区明徳町
-
JR鹿児島本線植木駅
-
-
-
-
- 中古一戸建て
- 2,500万円
-
菊池郡菊陽町花立1丁目
-
JR豊肥本線武蔵塚駅
-
-
-
-
- 中古一戸建て
- 2,498万円
-
熊本市東区上南部3丁目
-
JR豊肥本線竜田口駅
-
-
-
-
- 中古一戸建て
- 2,698万円
-
熊本市東区長嶺西1丁目
-
JR豊肥本線東海学園前駅
-
- お近くの店舗を探す
-
おすすめ物件
-
-
-
- 中古一戸建て
- 1,130万円
-
合志市須屋
-
熊本電気鉄道須屋
-
-
-
-
- 中古一戸建て
- 2,498万円
-
合志市須屋
-
熊本電気鉄道三ツ石
-
-
-
-
- 中古一戸建て
- 1,680万円
-
熊本市東区長嶺東4丁目
-
JR豊肥本線武蔵塚
-
-
-
-
- 中古一戸建て
- 2,898万円
-
熊本市北区鶴羽田2丁目
-
熊本電気鉄道新須屋
-
-
-
-
- 中古一戸建て
- 2,488万円
-
合志市豊岡
-
熊本電気鉄道御代志
-
-
-
-
- 中古一戸建て
- 2,850万円
-
合志市幾久富
-
永江団地
-
-
-
-
- 中古一戸建て
- 2,798万円
-
菊池郡菊陽町大字津久礼
-
JR豊肥本線三里木
-
-
-
-
- 中古一戸建て
- 3,400万円
-
熊本市北区龍田5丁目
-
JR豊肥本線武蔵塚
-
-
-
-
- 中古一戸建て
- 3,000万円
-
合志市御代志
-
熊本電気鉄道御代志
-
-
-
-
- 中古一戸建て
- 3,998万円
-
菊池郡菊陽町光の森4丁目
-
JR豊肥本線光の森
-