鹿児島市清和1丁目の中古戸建
掲載情報更新日:2026年01月04日 次回更新予定日:2026年01月18日
- 2,950万円
-
- 借入ご希望金額
万円 - 借入期間
年 - 借入金利
% - 月々のお支払い金額
円
- 借入ご希望金額
※ 月々のお支払例は目安の試算となりますので、実際の金額とは異なる場合がございます。詳しくは店舗までお問合わせください。
- 鹿児島市清和1丁目
-
JR指宿枕崎線『谷山』 徒歩17分 (約1360m)
鹿児島市清和1丁目一戸建て | 物件情報
清和小学校まで徒歩6分!駐車4台可!BELS取得・家具付販売込♪
清和小学校まで徒歩6分!毎日のお子様の通学も安心♪
・バルコニー付き
・人気のリビング階段
・シューズインクローゼットあり!
・地盤保証、外構工事込
・食洗器、浴室乾燥機付!
・オール電化で家計にも優しい設計♪
物件の設備
- 電気
- オール電化
- 上水道
- 公営水道
- 下水道
- 給湯
- 食器洗浄乾燥機
- IHクッキングヒータ
- 電気コンロ
- コンロ二口
- グリル
- システムキッチン
- バス
- オートバス
- バス1坪以上
- 追焚機能
- 浴室暖房
- 浴室乾燥機
- トイレ
- 温水洗浄便座
- 室内洗濯機置場
- 洗髪洗面化粧台
- エアコン
- 照明器具
- ダウンライト
- 人感照明センサー
- 省エネ給湯器
- ディンプルキー
- モニタ付インターホン
- 火災警報器/報知機
- LDK15畳以上
- 2面採光
- 天井高2.5m以上
- 全居室複層ガラス
- フローリング
- クッションフロア
- 24時間換気システム
- 網戸
- クローゼット3箇所
- ウォークインクローゼット
- シューズWIC
- バルコニー
- ワイドバルコニー
- 南面バルコニー
物件の特徴
- 全室南東向
- 高断熱住宅
- 地盤調査済
- 小学校徒歩10分以内
- スーパーが近い
- 閑静な住宅街
- 山が見える
- 眺望良好
- 2階建
- 外壁サイディング
- 建築確認完了検査済証
- 瑕疵保険検査基準適合
- BELS/省エネ基準適合
- 瑕疵保険(国交省指定)保証利用可
- 省エネルギー対策
- 即入居可
物件詳細情報
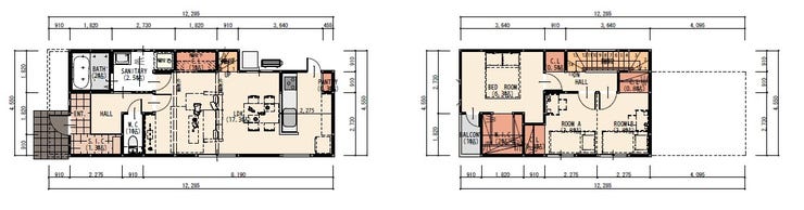
| 価格 | 2,950万円 | 間取り | 3LDK |
|---|---|---|---|
| 物件種別 | 中古一戸建て | ||
| 所在地 | 鹿児島県鹿児島市清和1丁目 | ||
| アクセス |
|
||
| 建物面積 | 実85.28㎡ | 駐車場 | あり 普通:2台 軽:2台 |
| 築年月 | 2024年(令和6年)03月築 | ||
| 建物構造 | 木造 2階建 | 工法 | |
| 主要採光 | 東向 | バルコニー | 南向1.66㎡ |
| 保証・評価 | 【瑕疵保険(国交省指定)】利用可 保険期間:10年0ヶ月 構造躯体・雨漏り |
||
| リフォーム | |||
| 土地面積 | 公162.71㎡(49.21坪) | 接道 | 南西側(公道)幅 約4.0m 間口 約6.81m |
| 私道 | 別:公17.33㎡(持分 1/3) | セットバック | |
| 地目 | 宅地 | 地勢 | 平坦 |
| 権利 | 所有権 |
||
| 都市計画 | 市街化区域 |
用途地域 | 1種低層 |
| 建ぺい/容積率 | 50% / 80% | 土地国土法 | |
| 許可番号 | 建築基準法 | ||
| 法令制限 | |||
| 小学区 | 清和小学校 徒歩6分 (約450m) | 中学区 | 東谷山中学校 徒歩27分 (約2100m) |
| 現況 | 完工済 | 引渡 | 即 |
| その他費用 | |||
| 周辺環境 | 清和小学校 徒歩7分 (約560m) なりざわ東谷山店 徒歩8分 (約590m) セブンイレブン鹿児島薬師堂店 徒歩10分 (約790m) 東谷山中学校 徒歩27分 (約2120m) |
||
| 備考 | |||
| 物件番号 | 4255885 | 取引態様 | 売主 |
取扱店舗情報
| 電話番号 | 0995-73-3778 |
|---|---|
| 所在地 | 〒899-5431 鹿児島県姶良市西餅田134番地14 |
| 営業時間 | 8:30~17:30 |
| 定休日 | 水曜日、木曜日 |
| 宅建免許番号 | 鹿児島県知事(4)第5597号 |
| アクセス | 店舗への地図はこちら |

来店ご予約
鹿児島県鹿児島市で価格が似ている物件はこちら
- 鹿児島県
マイページ物件数 - 5,680件
最近見た物件
-
-

-
- 新築一戸建て
- 3,348万円
-
熊本市東区長嶺東5丁目
-
JR豊肥本線東海学園前
-
-
-

-
- 中古一戸建て
- 1,880万円
-
奈良市三碓6丁目
-
近鉄難波・奈良線富雄
-
-
-

-
- 新築一戸建て
- 2,680万円
-
岐阜市池ノ上町4丁目
-
JR東海道本線岐阜
-
鹿児島県中古一戸建て新着物件
-
-

-
- 中古一戸建て
- 3,780万円
-
鹿児島市中山町
-
新山之園
-
-
-

-
- 中古一戸建て
- 1,790万円
-
鹿児島市吉野町
-
中別府
-
-
-

-
- 中古一戸建て
- 2,790万円
-
鹿児島市下伊敷3丁目
-
市営さつま団地入口バス停
-
-
-

-
- 中古一戸建て
- 2,790万円
-
鹿児島市下伊敷3丁目
-
市営さつま団地入口バス停
-
-
-

-
- 中古一戸建て
- 3,300万円
-
鹿児島市日之出町
-
市電谷山線二軒茶屋駅
-
-
-

-
- 中古一戸建て
- 6,500万円
-
鹿児島市伊敷台6丁目
-
JR日豊本線鹿児島駅
-
-
-

-
- 中古一戸建て
- 6,500万円
-
鹿児島市伊敷台6丁目
-
市営北営業所前
-
- お近くの店舗を探す
-
おすすめ物件
-
-

-
- 中古一戸建て
- 1,880万円
-
鹿児島市田上台1丁目
-
JR指宿枕崎線郡元
-
-
-

-
- 中古一戸建て
- 2,270万円
-
鹿児島市星ヶ峯6丁目
-
JR鹿児島本線広木
-
-
-

-
- 中古一戸建て
- 2,090万円
-
鹿児島市大明丘3丁目
-
南国大明丘中央バス停
-
-
-

-
- 中古一戸建て
- 1,790万円
-
鹿児島市向陽1丁目
-
JR鹿児島本線広木
-
-
-

-
- 中古一戸建て
- 2,980万円
-
鹿児島市玉里団地2丁目
-
市営第一公園前バス停
-
-
-

-
- 中古一戸建て
- 1,980万円
-
鹿児島市桜ヶ丘6丁目
-
市電谷山線笹貫
-
-
-

-
- 中古一戸建て
- 2,880万円
-
鹿児島市小松原1丁目
-
市電谷山線笹貫
-
-
-

-
- 中古一戸建て
- 2,480万円
-
鹿児島市宇宿7丁目
-
JR指宿枕崎線宇宿
-
-
-

-
- 中古一戸建て
- 1,960万円
-
鹿児島市石谷町
-
JR鹿児島本線上伊集院
-
-
-

-
- 中古一戸建て
- 980万円
-
鹿児島市伊敷3丁目
-
JR九州新幹線鹿児島中央
-


























(事前に必ず予約してください)
時間/10:00~17:30
現地案内会(事前に必ずお問合せください)
時間/10:00~17:30(時間外でのご希望もお気軽にご相談ください)
ご相談の所要時間や内容は下記をご参考にしてください
◆現地・物件ご見学(20分~)
◆ご希望条件のご相談(15分~)
◆資金計画のご相談(15分~)
◆住宅ローンのお話(15分~)
◆土地・家の探し方のご相談(30分~)
〇現地ご見学会を随時受け付けております。
〇お客様のご都合に合わせて「知りたい情報だけ」という短時間のご案内も可能です!
〇場所がわからない方は、近くの分かりやすい場所からご一緒にご案内します♪
〇事前にこんな情報が欲しい!こんなことを聞いてみたい!といったお声などもお気軽にお寄せください!
※ Googleマップの位置は目安になります。当日は旗・看板等を目安にご来場ください