八代市日置町の中古戸建
掲載情報更新日:2025年10月04日 次回更新予定日:2025年10月18日
- 1,998万円
-
- 借入ご希望金額
万円 - 借入期間
年 - 借入金利
% - 月々のお支払い金額
円
- 借入ご希望金額
※ 月々のお支払例は目安の試算となりますので、実際の金額とは異なる場合がございます。詳しくは店舗までお問合わせください。
- 八代市日置町
-
JR鹿児島本線『新八代』 徒歩21分 (約1680m)
JR鹿児島本線『八代』 徒歩21分 (約1680m)
『自動車学校前』 徒歩2分 (約160m)
八代市日置町一戸建て | 物件情報
《本日案内可能》☆仲介手数料無料物件☆(65万円相当がお得!)お気軽にお問合せください♪
【最安値へ挑戦!】
当店は通常かかる仲介手数料(物件価格の3%+6万円)が無料!(例:3000万円の場合、90万円相当)
諸費用の中で1番大きな割合を占める『 仲介手数料 』を節約できます♪
さらに!他社様のお見積もりよりも必ずお安くご購入いただける『最安値保証』をしております!
まずはお気軽にお問合せください☆
【内覧ツアー】
熊本県内全域の気になる物件を全て当店でご内覧いただける『内覧ツアー』を実施中☆新築・中古・中古マンションも!見学されたい物件を1日で内覧可能♪忙しいお客様のお時間を無駄にさせません!
【最安値保証】
もっとお得にお家を購入したい!そんな方はぜひ『ハウスドゥ御幸田迎』にお任せください!
他社様よりも必ずお得にご購入いただけることをお約束いたします。
当店ではオプション費用(エアコン、網戸、太陽光等)もお客様に代わり相見積もりいたします!
住宅ローンにも自信あり!(承認率約90%♪)ご相談ください!
不動産のプロ『ハウスドゥ 御幸田迎』が年間契約数200件以上の経験を活かし、後悔のないお家選びを全力でお手伝いします!
物件の設備
- 電気
- オール電化
- 上水道
- 公営水道
- 公共下水
- 給湯
- IHクッキングヒータ
- コンロ三口
- グリル
- システムキッチン
- バス
- ユニットバス
- オートバス
- バス1坪以上
- 追焚機能
- トイレ2箇所
- 温水洗浄便座
- 室内洗濯機置場
- 洗髪洗面化粧台
- 洗面所独立
- 照明器具
- ダウンライト
- 省エネ給湯器
- ディンプルキー
- モニタ付インターホン
- 火災警報器/報知機
- 和室
- 全居室6畳以上
- 2面採光
- 出窓
- 一部フローリング
- フローリング張替
- クローゼット
- 床下収納
- 全居室収納
- シューズボックス
- バルコニー
- ウッドデッキ
- 縁側
物件の特徴
- 内装リフォーム済
- 外装リフォーム済
- 内外装リフォーム済
- 南向
- 全室南向
- 2沿線利用可
- 閑静な住宅街
- 通風良好
- 陽当り良好
- 2階建
- 即入居可
物件詳細情報
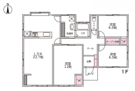
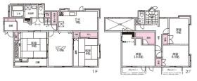
価格 | 1,998万円 | 間取り | 4LDK |
---|---|---|---|
物件種別 | 中古一戸建て | ||
所在地 | 熊本県八代市日置町137-3 | ||
アクセス |
|
||
建物面積 | 134.23㎡ | 駐車場 | あり 普通:4台 |
築年月 | 1992年(平成4年)02月築 | ||
建物構造 | 木造 2階建 | 工法 | |
主要採光 | 南向 | バルコニー | |
保証・評価 | |||
リフォーム | 【水回り】2025年03月 キッチン・浴室・トイレ・洗面 【外装】2025年03月 外壁 ・屋根 【内装】2025年03月 床 ・全室クロス ・建具 【その他】2025年03月 駐車場拡張工事、玄関鍵交換、全居室火災報知器設置、テレビモニターホン新品交換、シューズボックス新品 |
||
土地面積 | 264.51㎡(80.01坪) | 接道 | 西側(私道)幅 約4.0m |
私道 | セットバック | ||
地目 | 宅地 | 地勢 | |
権利 | 所有権 |
||
都市計画 | 非線引区域 |
用途地域 | 1種住居 |
建ぺい/容積率 | 60% / 160% | 土地国土法 | |
許可番号 | 建築基準法 | ||
法令制限 | |||
小学区 | 太田郷小学校 徒歩9分 (約676m) | 中学区 | 第二中学校 徒歩9分 (約698m) |
現況 | 空 | 引渡 | 即 |
その他費用 | |||
周辺環境 | 八代市立太田郷小学校 徒歩13分 (約1020m) 八代市立第二中学校 徒歩8分 (約630m) 太田郷ひびき保育園 徒歩8分 (約630m) ファミリーマート 八代竹原店 徒歩5分 (約350m) フードプラザにしだ 日置店 徒歩11分 (約880m) 日置町クリニック 徒歩6分 (約410m) 八代長田郵便局 徒歩15分 (約1150m) スーパーセンタートライアル新八代駅前店 徒歩29分 (約2280m) 肥後銀行 八代駅前支店 徒歩21分 (約1620m) ゴルフパートナー 八代インター練習場店 徒歩30分 (約2380m) |
||
備考 | ・八代市立太田郷小学校まで徒歩13分(約1020m) ・八代市立第二中学校まで徒歩8分(約630m) ・太田郷ひびき保育園まで徒歩8分(約630m) ・ファミリーマート 八代竹原店まで徒歩5分(約350m) ・フードプラザにしだ 日置店まで徒歩11分(約880m) ・日置町クリニックまで徒歩6分(約410m) ・八代長田郵便局まで徒歩15分(約1150m) ・スーパーセンタートライアル新八代駅前店まで徒歩29分(約2280m) ・肥後銀行 八代駅前支店まで徒歩21分(約1620m) ・ゴルフパートナー 八代インター練習場店まで徒歩30分(約2380m) |
||
物件番号 | 4262621 | 取引態様 | 媒介 |
取扱店舗情報
ハウスドゥ 御幸田迎 株式会社Remado 店舗詳細ページへ
電話番号 | 096-243-3000 |
---|---|
所在地 | 〒861-4108 熊本県熊本市南区幸田1丁目7-20 |
営業時間 | 9:30~18:00 |
定休日 | お盆、年末年始 |
宅建免許番号 | 熊本県知事(1)第5556号 |
アクセス | 店舗への地図はこちら |
来店ご予約
熊本県八代市で価格が似ている物件はこちら
- 熊本県
マイページ物件数 - 2,983件
熊本県中古一戸建て新着物件
-
-
-
- 中古一戸建て
- 3,998万円
-
菊池郡菊陽町光の森4丁目
-
JR豊肥本線光の森駅
-
-
-
-
- 中古一戸建て
- 890万円
-
熊本市南区川尻3丁目
-
JR鹿児島本線川尻駅
-
-
-
-
- 中古一戸建て
- 1,788万円
-
熊本市南区孫代町
-
JR鹿児島本線西熊本駅
-
-
-
-
- 中古一戸建て
- 2,200万円
-
合志市須屋
-
熊本電気鉄道黒石駅
-
-
-
-
- 中古一戸建て
- 3,698万円
-
熊本市中央区九品寺6丁目
-
JR豊肥本線南熊本駅
-
-
-
-
- 中古一戸建て
- 1,598万円
-
熊本市中央区八王寺町
-
JR豊肥本線南熊本駅
-
-
-
-
- 中古一戸建て
- 3,498万円
-
合志市幾久富
-
JR豊肥本線光の森駅
-
- お近くの店舗を探す
-
おすすめ物件
-
-
-
- 中古一戸建て
- 3,498万円
-
合志市幾久富
-
JR豊肥本線光の森
-
-
-
-
- 中古一戸建て
- 2,698万円
-
合志市須屋
-
熊本電気鉄道新須屋
-
-
-
-
- 中古一戸建て
- 2,850万円
-
合志市幾久富
-
永江団地
-
-
-
-
- 中古一戸建て
- 1,780万円
-
熊本市南区城南町藤山
-
JR三角線富合
-
-
-
-
- 中古一戸建て
- 3,850万円
-
合志市竹迫
-
JR豊肥本線三里木
-
-
-
-
- 中古一戸建て
- 2,798万円
-
熊本市東区花立5丁目
-
熊本市健軍線健軍町
-
-
-
-
- 中古一戸建て
- 5,500万円
-
熊本市北区楡木2丁目
-
JR豊肥本線武蔵塚
-
-
-
-
- 中古一戸建て
- 2,898万円
-
熊本市北区鶴羽田2丁目
-
熊本電気鉄道新須屋
-
-
-
-
- 中古一戸建て
- 1,988万円
-
合志市須屋
-
熊本電気鉄道三ツ石
-
-
-
-
- 中古一戸建て
- 2,488万円
-
合志市豊岡
-
熊本電気鉄道御代志
-
担当エージェント:片山 久瑠実
【月々の支払い例】
2,000万円借り入れの場合
月々39,033円(頭金・ボーナス払いなし)
金利 0.648% (ネット銀行、金利優遇有)
変動金利 返済期間50年
※あくまでも一例です。条件あり。
【周辺環境】
・八代市立太田郷小学校まで徒歩13分(約1020m)
・八代市立第二中学校まで徒歩8分(約630m)
・太田郷ひびき保育園まで徒歩8分(約630m)
・ファミリーマート 八代竹原店まで徒歩5分(約350m)
・フードプラザにしだ 日置店まで徒歩11分(約880m)
・日置町クリニックまで徒歩6分(約410m)
・八代長田郵便局まで徒歩15分(約1150m)
・スーパーセンタートライアル新八代駅前店まで徒歩29分(約2280m)
・肥後銀行 八代駅前支店まで徒歩21分(約1620m)
・ゴルフパートナー 八代インター練習場店まで徒歩30分(約2380m)
お気軽にご相談ください!
お問い合わせは ハウスドゥ御幸田迎 まで♪