甲府市岩窪町
掲載情報更新日:2026年05月14日 次回更新予定日:2026年05月28日
- 650万円
-
- 借入ご希望金額
万円 - 借入期間
年 - 借入金利
% - 月々のお支払い金額
円
- 借入ご希望金額
※ 月々のお支払例は目安の試算となりますので、実際の金額とは異なる場合がございます。詳しくは店舗までお問合わせください。
- 甲府市岩窪町
-
JR中央本線『甲府』 バス乗車6分 護国神社入口 停 徒歩9分 (約720m)
JR中央本線『甲府』 車10分(約3.2km)
JR身延線『金手』 車14分(約4.7km)
甲府市岩窪町一戸建て | 物件情報
〇閑静な住宅街に佇む3LDK!ゆったりくつろげる8帖の和室が魅力的◎全居室南向きにつき陽当り良好です
ハウスドゥ 甲府昭和通りでは、お客様の住まい探しのお手伝いを致します。
売主様のご都合により、ネット広告の載せられない希少な物件も多数、
自社HP、店舗内にてお客様のご条件に合った物件を全てご紹介させいただきます。
ご条件に合った物件が見つからないお客様、探し始めで物件情報が欲しいお客様、
住宅ローン、住宅購入にかかる諸費用などまた、相続の相談や問題、
リフォーム、建築のご相談など、住宅のことなら全て、親切丁寧にご対応させていただきます!
もちろん見るだけ、聞くだけ全て無料です♪
ハウスドゥ 甲府昭和通り(TEL:055-287-8666)まで、お気軽にご相談、お問い合わせください。
物件の設備
- 上水道
- 公営水道
- 下水道
- 公共下水
- プロパンガス
- 個別プロパン
- 室内洗濯機置場
- 洗面所独立
- 和室
- 和室8畳以上
- 2面採光
- フローリング
- クローゼット
- 全居室収納
- 庭
物件の特徴
- 南向
- 南側道路面す
- 緑豊かな住宅地
- 閑静な住宅街
- 周辺交通量少なめ
- 田園風景
- 陽当り良好
- 2階建
- 前面棟無
- 整形地
- 即入居可
物件詳細情報
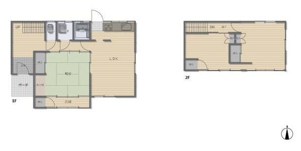
| 価格 | 650万円 | 間取り | 3LDK |
|---|---|---|---|
| 物件種別 | 中古一戸建て | ||
| 所在地 | 山梨県甲府市岩窪町 | ||
| アクセス |
|
||
| 建物面積 | 公88.59㎡ | 駐車場 | あり 普通:2台 |
| 築年月 | 1979年(昭和54年)07月築 | ||
| 建物構造 | 木造 2階建 | 工法 | |
| 主要採光 | 南向 | バルコニー | |
| 保証・評価 | |||
| リフォーム | |||
| 土地面積 | 公165.29㎡(50坪) | 接道 | 南側(公道)幅 約4.0m |
| 私道 | セットバック | ||
| 地目 | 宅地 | 地勢 | 平坦 |
| 権利 | 所有権 |
||
| 都市計画 | 市街化区域 |
用途地域 | 1種低層 |
| 建ぺい/容積率 | 40% / 80% | 土地国土法 | |
| 許可番号 | 建築基準法 | ||
| 法令制限 | 都市再生特別地区・風致地区・文化財保護法・景観法 | ||
| 小学区 | 相川小学校 徒歩16分 (約1216m) | 中学区 | 北東中学校 徒歩5分 (約365m) |
| 現況 | 空 | 引渡 | 即 |
| その他費用 | |||
| 備考 | |||
| 物件番号 | 4264534 | 取引態様 | 媒介 |
取扱店舗情報
ハウスドゥ 甲府昭和通り 株式会社ドミール 店舗詳細ページへ
| 電話番号 | 055-287-8666 |
|---|---|
| 所在地 | 〒409-3866 山梨県中巨摩郡昭和町西条4309番1 |
| 営業時間 | 9:00~18:30 |
| 定休日 | 年中無休(年末年始を除く) |
| 宅建免許番号 | 山梨県知事(4)第2284号 |
| アクセス | 店舗への地図はこちら |

来店ご予約
山梨県甲府市で価格が似ている物件はこちら
- 山梨県
マイページ物件数 - 1,414件
最近見た物件
-
-

-
- 新築一戸建て
- 4,880万円
-
福岡市南区寺塚2丁目
-
西鉄天神大牟田線高宮
-
-
-

-
- 中古マンション
- 1,480万円
-
岡崎市鴨田町字荒子
-
愛知環状鉄道大門
-
-
-

-
- 新築一戸建て
- 4,590万円
-
名古屋市中村区猪之越町1丁目
-
名古屋市東山線本陣
-
山梨県中古一戸建て新着物件
- お近くの店舗を探す
-
おすすめ物件
-
-

-
- 中古一戸建て
- 3,469万円
-
甲府市上今井町
-
JR中央本線甲府
-




















担当エージェント:丹沢航平
ハウスドゥ 甲府昭和通り、エージェントの丹沢と申します。
私たちは、お客様に山梨県内の物件をご紹介でき、お客様の条件に合った物件をより多くの物件の中から選んで
頂く為に日々、山梨県内の新築建売住宅、中古建売住宅、マンション、土地などの物件情報の収集活動をしております。
又、売主様のご都合により、ネット広告などに載せられない希少な物件も多数、店舗内にて全てご紹介致します。
不動産購入時にかかる諸費用、住宅ローン、リフォーム、相続の相談など、
今までの経験を活かし様々な解決策をお客様と一緒に考え、ご提案させて頂きます。
お客様に分かりやすく、丁寧に説明し実際に抱えている不動産に関するお悩みなどを
解決させて頂くことが、私共の得意としているところです。
県内の全ての物件の中からお客様のご条件に合った物件をお探しするお手伝いをさせて頂くことを目標に
社員一同日々、活動しております。 是非、お気軽にご相談下さい。 まずは、ご連絡をお待ちしております。
ハウスドゥ 甲府昭和通り 055-287-8666 (丹沢宛まで)