熊本市北区植木町大和の中古戸建
掲載情報更新日:2026年03月08日 次回更新予定日:2026年03月22日
- 1,480万円
-
- 借入ご希望金額
万円 - 借入期間
年 - 借入金利
% - 月々のお支払い金額
円
- 借入ご希望金額
※ 月々のお支払例は目安の試算となりますので、実際の金額とは異なる場合がございます。詳しくは店舗までお問合わせください。
- 熊本市北区植木町大和
-
JR鹿児島本線『植木』 徒歩17分 (約1300m)
JR鹿児島本線『田原坂』 徒歩38分 (約3000m)
JR鹿児島本線『西里』 徒歩67分 (約5300m)
熊本市北区植木町大和一戸建て | 物件情報
物件の設備
- 電気
- 上水道
- 公営水道
- 下水道
- 公共下水
- プロパンガス
- 浄水器
- 食器乾燥機
- コンロ三口
- グリル
- システムキッチン
- バス1坪以上
- 浴室乾燥機
- 浴室に窓
- トイレ2箇所
- 温水洗浄便座
- 室内洗濯機置場
- ダウンライト
- 火災警報器/報知機
- 和室
- 全居室6畳以上
- フローリング
- シャッター雨戸
- クローゼット
- 納戸
- 床下収納
- 全居室収納
- ワイドバルコニー
- 庭
物件の特徴
- 内装リフォーム後渡
- 内外装リフォーム後渡
- 緑豊かな住宅地
- 閑静な住宅街
- 周辺交通量少なめ
- 市街地が近い
- 通風良好
- 陽当り良好
- 2階建
- 平坦地
- 即入居可
物件詳細情報
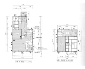
| 価格 | 1,480万円 | 間取り | 6DK |
|---|---|---|---|
| 物件種別 | 中古一戸建て | ||
| 所在地 | 熊本県熊本市北区植木町大和 | ||
| アクセス |
|
||
| 建物面積 | 124.84㎡ | 駐車場 | あり |
| 築年月 | 1978年(昭和53年)10月築 | ||
| 建物構造 | 木造 2階建 | 工法 | |
| 主要採光 | 南東向 | バルコニー | |
| 保証・評価 | |||
| リフォーム | |||
| 土地面積 | 公192.2㎡(58.14坪) | 接道 | |
| 私道 | セットバック | ||
| 地目 | 宅地 | 地勢 | |
| 権利 | 所有権 |
||
| 都市計画 | 市街化区域 |
用途地域 | 1種中高 |
| 建ぺい/容積率 | 60% / 150% | 土地国土法 | |
| 許可番号 | 建築基準法 | ||
| 法令制限 | |||
| 小学区 | 菱形小学校 徒歩17分 (約1300m) | 中学区 | 鹿南中学校 徒歩30分 (約2400m) |
| 現況 | 空 | 引渡 | 即 |
| その他費用 | |||
| 周辺環境 | 大和簡易郵便局 徒歩5分 (約360m) ファミリーマート 植木田原坂店 徒歩11分 (約870m) 業務スーパー 植木店 徒歩24分 (約1880m) コスモス 植木南店 徒歩30分 (約2350m) |
||
| 備考 | |||
| 物件番号 | 4265392 | 取引態様 | 媒介 |
取扱店舗情報
ハウスドゥ 大江 まつばや百貨店不動産株式会社 店舗詳細ページへ
| 電話番号 | 096-206-1230 |
|---|---|
| 所在地 | 〒862-0971 熊本県熊本市中央区大江1丁目2-19 |
| 営業時間 | 9:00~18:00 |
| 定休日 | 水曜日 |
| 宅建免許番号 | 熊本県知事(1)第5729号 |
| アクセス | 店舗への地図はこちら |

来店ご予約
熊本県熊本市北区で価格が似ている物件はこちら
- 熊本県
マイページ物件数 - 2,975件
最近見た物件
-
-

-
- 土地
- 5,970万円
-
海部郡大治町大字西條字附田
-
名鉄津島線七宝
-
-
-

-
- 土地
- 780万円
-
塩谷郡高根沢町大字平田
-
JR烏山線仁井田
-
-
-

-
- 収益
- 950万円
-
足立区青井2丁目
-
つくばエクスプレス青井
-
熊本県中古一戸建て新着物件
-
-

-
- 中古一戸建て
- 1,800万円
-
熊本市北区楠野町
-
JR鹿児島本線西里駅
-
-
-

-
- 中古一戸建て
- 1,598万円
-
熊本市南区城南町今吉野
-
JR三角線富合駅
-
-
-

-
- 中古一戸建て
- 1,498万円
-
熊本市北区龍田弓削2丁目
-
JR豊肥本線武蔵塚駅
-
-
-

-
- 中古一戸建て
- 2,598万円
-
熊本市東区月出6丁目
-
JR豊肥本線東海学園前駅
-
-
-

-
- 中古一戸建て
- 3,280万円
-
熊本市東区小山6丁目
-
JR豊肥本線武蔵塚駅
-
-
-

-
- 中古一戸建て
- 1,880万円
-
熊本市西区新土河原1丁目
-
JR鹿児島本線西熊本駅
-
-
-

-
- 中古一戸建て
- 2,299万円
-
合志市豊岡
-
熊本電気鉄道黒石駅
-
- お近くの店舗を探す
-
おすすめ物件
-
-

-
- 中古一戸建て
- 640万円
-
熊本市北区兎谷1丁目
-
熊本電気鉄道亀井
-
-
-

-
- 中古一戸建て
- 1,750万円
-
熊本市北区山室2丁目
-
熊本電気鉄道八景水谷
-
-
-

-
- 中古一戸建て
- 2,498万円
-
熊本市南区薄場1丁目
-
JR鹿児島本線西熊本
-
-
-

-
- 中古一戸建て
- 2,898万円
-
熊本市北区鶴羽田2丁目
-
熊本電気鉄道新須屋
-
-
-

-
- 中古一戸建て
- 4,580万円
-
宇城市不知火町御領
-
JR鹿児島本線松橋
-
-
-

-
- 中古一戸建て
- 1,300万円
-
菊池市下河原日向
-
熊本電気鉄道御代志
-
-
-

-
- 中古一戸建て
- 3,198万円
-
熊本市東区上南部2丁目
-
JR豊肥本線竜田口
-
-
-

-
- 中古一戸建て
- 5,500万円
-
熊本市北区楡木2丁目
-
JR豊肥本線武蔵塚
-
-
-

-
- 中古一戸建て
- 2,350万円
-
熊本市北区楠4丁目
-
JR豊肥本線武蔵塚
-
-
-

-
- 中古一戸建て
- 2,598万円
-
熊本市東区花立5丁目
-
熊本市健軍線健軍町
-




























