岐阜市北山1丁目 中古一戸建て
掲載情報更新日:2025年12月04日 次回更新予定日:2025年12月18日
- 1,000万円
-
- 借入ご希望金額
万円 - 借入期間
年 - 借入金利
% - 月々のお支払い金額
円
- 借入ご希望金額
※ 月々のお支払例は目安の試算となりますので、実際の金額とは異なる場合がございます。詳しくは店舗までお問合わせください。
- 岐阜市北山1丁目
-
名鉄各務原線『高田橋』 徒歩17分 (約1300m)
JR高山本線『長森』 徒歩20分 (約1600m)
岐阜バス『「清流高等特別支援学校前」停』 徒歩5分 (約400m)
岐阜市北山1丁目 中古一戸建て一戸建て | 物件情報
【南向き◎】プライベートもしっかり確保できる6DK♪
\あれこれ不動産サイトを見なくても当店で解決/
当店はエリア内の物件の大半を最・新・情・報で掲載!
ほかのページで気になる物件もご相談ください。
◆芥見東小学校/藍川東中学校
◆岐阜バス「清流高等特別支援学校前」停まで徒歩約5分
◆生活主要施設が徒歩圏内
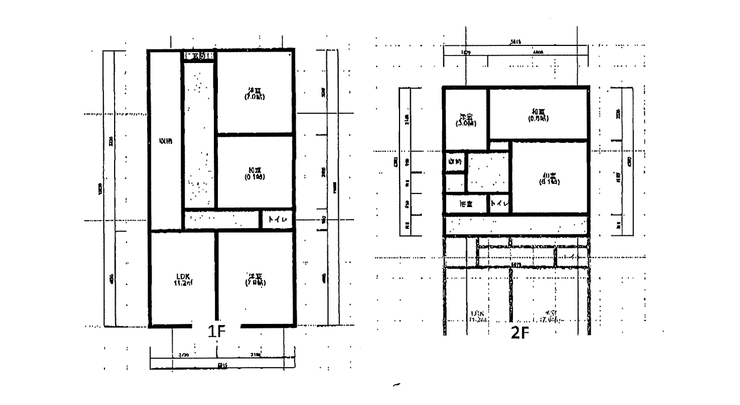
◆トイレ2箇所
※写真をクリックすると、詳細をご覧いただけます。
=========================
《気軽にお寄り下さい♪》
店内にキッズスペースも完備♪
お子様連れでも気軽に立ち寄っていただけるお店です。
=========================
物件の設備
- トイレ2箇所
物件の特徴
- 南向
- 2階建
物件詳細情報
| 価格 | 1,000万円 | 間取り | 6DK |
|---|---|---|---|
| 物件種別 | 中古一戸建て | ||
| 所在地 | 岐阜県岐阜市北山1丁目 | ||
| アクセス |
|
||
| 建物面積 | 公114.36㎡ | 駐車場 | なし |
| 築年月 | 1968年(昭和43年)11月築 | ||
| 建物構造 | RC 2階建 | 工法 | |
| 主要採光 | バルコニー | ||
| 保証・評価 | |||
| リフォーム | |||
| 土地面積 | 公98.92㎡(29.92坪) | 接道 | |
| 私道 | セットバック | ||
| 地目 | 宅地 | 地勢 | |
| 権利 | 所有権 |
||
| 都市計画 | 市街化区域 |
用途地域 | 1種低層 |
| 建ぺい/容積率 | 50% / 80% | 土地国土法 | |
| 許可番号 | 建築基準法 | ||
| 法令制限 | |||
| 小学区 | 芥見東小学校 徒歩9分 (約670m) | 中学区 | 藍川東中学校 徒歩25分 (約1970m) |
| 現況 | 空 | 引渡 | 相談 |
| その他費用 | |||
| 周辺環境 | 芥見東小学校 徒歩9分 (約670m) 藍川東中学校 徒歩25分 (約1970m) 芥見幼稚園 徒歩6分 (約420m) 大洞こども園 徒歩11分 (約860m) コープ芥見 徒歩7分 (約490m) クスリのアオキ芥見店 徒歩5分 (約360m) セブンイレブン 岐阜芥見南山店 徒歩3分 (約210m) 大洞緑公園 徒歩17分 (約1310m) みどり病院 徒歩6分 (約420m) Vタウン芥見 徒歩9分 (約710m) |
||
| 備考 | |||
| 物件番号 | 4269355 | 取引態様 | 媒介 |
取扱店舗情報
ハウスドゥ 岐阜長良 ファミリアホームサービス株式会社 店舗詳細ページへ
| 電話番号 | 058-215-8510 |
|---|---|
| 所在地 | 〒502-0803 岐阜県岐阜市上土居1丁目5番2号プラズマビル1階A号室 |
| 営業時間 | 10:00~18:00 |
| 定休日 | 第3火曜日、水曜日、年末年始 |
| 宅建免許番号 | 国土交通大臣(2)第9218号 |
| アクセス | 店舗への地図はこちら |

来店ご予約
岐阜県岐阜市で価格が似ている物件はこちら
- 岐阜県
マイページ物件数 - 4,621件
最近見た物件
-
-

-
- 中古一戸建て
- 4,500万円
-
倉敷市日吉町
-
JR山陽本線倉敷
-
-
-

-
- 中古マンション
- 2,598万円
-
大阪市淀川区西宮原3丁目
-
大阪市御堂筋線東三国
-
-
-

-
- 中古一戸建て
- 830万円
-
高砂市米田町米田
-
JR山陽本線宝殿
-
岐阜県中古一戸建て新着物件
-
-

-
- 中古一戸建て
- 980万円
-
各務原市松が丘2丁目
-
名鉄各務原線羽場駅
-
-
-

-
- 中古一戸建て
- 999万円
-
岐阜市上新町
-
岐阜バス材木町
-
-
-

-
- 中古一戸建て
- 481万円
-
可児市光陽台4丁目
-
名鉄広見線西可児駅
-
-
-

-
- 中古一戸建て
- 680万円
-
可児市広眺ケ丘6丁目
-
名鉄広見線新可児駅
-
-
-

-
- 中古一戸建て
- 1,850万円
-
可児市今渡
-
名鉄広見線日本ライン今渡駅
-
-
-

-
- 中古一戸建て
- 2,880万円
-
羽島郡岐南町八剣北3丁目
-
名鉄各務原線細畑駅
-
-
-

-
- 中古一戸建て
- 2,599万円
-
岐阜市長良南陽町2丁目
-
JR東海道本線岐阜駅
-
- お近くの店舗を探す
-
おすすめ物件
-
-

-
- 中古一戸建て
- 1,480万円
-
岐阜市日野南7丁目
-
JR高山本線長森
-
-
-

-
- 中古一戸建て
- 1,690万円
-
大垣市林町7丁目
-
JR東海道本線大垣
-
-
-

-
- 中古一戸建て
- 3,400万円
-
瑞浪市上平町2丁目
-
JR中央本線瑞浪
-
-
-

-
- 中古一戸建て
- 3,780万円
-
岐阜市安良田町6丁目
-
名鉄名古屋本線加納
-
-
-

-
- 中古一戸建て
- 780万円
-
関市大平台
-
長良川鉄道関
-
-
-

-
- 中古一戸建て
- 2,970万円
-
可児市桜ケ丘1丁目
-
JR中央本線多治見
-
-
-

-
- 中古一戸建て
- 1,280万円
-
恵那市長島町永田
-
JR中央本線恵那
-
-
-

-
- 中古一戸建て
- 3,540万円
-
土岐市土岐ヶ丘4丁目
-
JR中央本線土岐市
-
-
-

-
- 中古一戸建て
- 650万円
-
各務原市尾崎南町1丁目
-
JR高山本線那加
-
-
-

-
- 中古一戸建て
- 2,398万円
-
大垣市築捨町1丁目
-
JR東海道本線大垣
-


























担当エージェント:袴田 将孝
《平日もご案内可能!》
百聞は一見学にしかず。見るだけOK、聞くだけOK!
事前にご予約いただくと、スムーズにご見学いただけます。