赤磐市草生の中古戸建
掲載情報更新日:2025年10月26日 次回更新予定日:2025年11月09日
- 400万円
- 
                    - 借入ご希望金額
 万円
-  借入期間
 年
-  借入金利
 %
-  月々のお支払い金額
 円
 
- 借入ご希望金額
※ 月々のお支払例は目安の試算となりますので、実際の金額とは異なる場合がございます。詳しくは店舗までお問合わせください。
- 赤磐市草生
- 
                    JR山陽本線『和気』 車30分(約23.8km)
 
赤磐市草生一戸建て | 物件情報
ハウスクリーニング済み!平屋+広い車庫付き 上下水完備!
物件の設備
- 公共下水
- プロパンガス
- 個別プロパン
- 温水洗浄便座
- シャッター車庫
物件の特徴
- 緑豊かな住宅地
- 山が見える
- 平坦地
- 即入居可
物件詳細情報
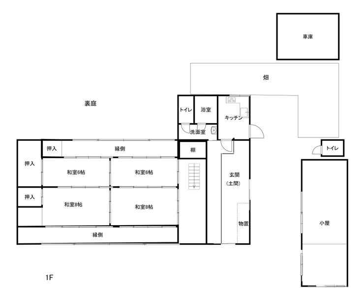
| 価格 | 400万円 | 間取り | 6K | 
|---|---|---|---|
| 物件種別 | 中古一戸建て | ||
| 所在地 | 岡山県赤磐市草生 | ||
| アクセス | 
 | ||
| 建物面積 | 公134.21㎡ | 駐車場 | あり 普通:2台 軽:2台 | 
| 築年月 | 1927年(昭和2年)04月築 | ||
| 建物構造 | 木造 1階建 | 工法 | |
| 主要採光 | バルコニー | ||
| 保証・評価 | |||
| リフォーム | |||
| 土地面積 | 公638.37㎡(193.10坪) | 接道 | |
| 私道 | セットバック | ||
| 地目 | 宅地(一部 田含む) | 地勢 | |
| 権利 | 所有権 | ||
| 都市計画 | 区域外 | 用途地域 | 指定無 | 
| 建ぺい/容積率 | 土地国土法 | ||
| 許可番号 | 建築基準法 | ||
| 法令制限 | |||
| 小学区 | 中学区 | ||
| 現況 | 空 | 引渡 | 即 | 
| その他費用 | |||
| 備考 | |||
| 物件番号 | 4271015 | 取引態様 | 専任 | 
取扱店舗情報
| 電話番号 | 086-956-5010 | 
|---|---|
| 所在地 | 〒709-0811 岡山県赤磐市高屋405-7 | 
| 営業時間 | 10:00~18:00 | 
| 定休日 | 火曜日(予約がある場合のみ営業)、水曜日 | 
| 宅建免許番号 | 岡山県知事(1)第6200号 | 
| アクセス | 店舗への地図はこちら | 

来店ご予約
岡山県赤磐市で価格が似ている物件はこちら
- 岡山県
 マイページ物件数
- 4,361件
最近見た物件
岡山県中古一戸建て新着物件
- 
				- 
							                             
- 
						- 中古一戸建て
- 790万円
- 
								
									倉敷市浅原 
- 
                                JR山陽本線倉敷駅 
 
 
- 
							                            
- 
				- 
							                             
- 
						- 中古一戸建て
- 6,380万円
- 
								
									倉敷市福島 
- 
                                JR山陽本線倉敷駅 
 
 
- 
							                            
- 
				- 
							                             
- 
						- 収益
- 4,000万円
- 
								
									岡山市中区長岡 
- 
                                JR山陽本線東岡山駅 
 
 
- 
							                            
- 
				- 
							                             
- 
						- 中古一戸建て
- 1,100万円
- 
								
									岡山市北区下伊福1丁目 
- 
                                JR吉備線備前三門駅 
 
 
- 
							                            
- 
				- 
							                             
- 
						- 中古一戸建て
- 2,380万円
- 
								
									倉敷市中島 
- 
                                水島臨海鉄道福井駅 
 
 
- 
							                            
- 
				- 
							                             
- 
						- 中古一戸建て
- 1,400万円
- 
								
									岡山市東区西大寺川口 
- 
                                JR赤穂線西大寺駅 
 
 
- 
							                            
- 
				- 
							                             
- 
						- 中古一戸建て
- 500万円
- 
								
									倉敷市中畝2丁目 
- 
                                水島臨海鉄道水島駅 
 
 
- 
							                            
- お近くの店舗を探す
- 
            
            
            
おすすめ物件
- 
				- 
														 
- 
						- 中古一戸建て
- 750万円
- 
								
									倉敷市児島下の町6丁目 
- 
								JR本四備讃線児島 
 
 
- 
														
- 
				- 
														 
- 
						- 中古一戸建て
- 2,400万円
- 
								
									倉敷市児島稗田町 
- 
								JR本四備讃線上の町 
 
 
- 
														
- 
				- 
														 
- 
						- 中古一戸建て
- 1,899万円
- 
								
									総社市泉 
- 
								JR吉備線東総社 
 
 
- 
														
- 
				- 
														 
- 
						- 中古一戸建て
- 2,700万円
- 
								
									倉敷市上東 
- 
								JR山陽本線中庄 
 
 
- 
														
- 
				- 
														 
- 
						- 中古一戸建て
- 3,500万円
- 
								
									倉敷市玉島乙島 
- 
								JR山陽本線新倉敷 
 
 
- 
														
- 
				- 
														 
- 
						- 中古一戸建て
- 1,000万円
- 
								
									倉敷市児島小川7丁目 
- 
								JR本四備讃線児島 
 
 
- 
														
- 
				- 
														 
- 
						- 中古一戸建て
- 1,350万円
- 
								
									総社市宿 
- 
								JR吉備線備中高松 
 
 
- 
														
- 
				- 
														 
- 
						- 中古一戸建て
- 700万円
- 
								
									赤磐市河田原 
- 
								JR山陽本線熊山 
 
 
- 
														
- 
				- 
														 
- 
						- 中古一戸建て
- 2,000万円
- 
								
									岡山市中区湊 
- 
								岡山電軌東山本線東山岡電ミュージアム 
 
 
- 
														
- 
				- 
														 
- 
						- 中古一戸建て
- 2,390万円
- 
								
									高梁市川上町臘数 
- 
								JR伯備線備中高梁 
 
 
- 
														
 
     
                         
                         
                         
                    







 
                



















 
                 
             
                    

 
                                            
 
                                             
                                            

 
						 
						
担当エージェント:柴原 葵
暮らしやすい平屋に、広々とした車庫と家庭菜園も楽しめる畑付き。上下水完備で安心です。スーパーや銀行も車で5分以内と利便性も◎。静かな環境でのびのび暮らしたい方にぴったりです。