佐倉市井野の中古戸建
掲載情報更新日:2025年10月17日 次回更新予定日:2025年10月31日
- 4,380万円
-
- 借入ご希望金額
万円 - 借入期間
年 - 借入金利
% - 月々のお支払い金額
円
- 借入ご希望金額
※ 月々のお支払例は目安の試算となりますので、実際の金額とは異なる場合がございます。詳しくは店舗までお問合わせください。
- 佐倉市井野
-
京成本線『志津』 徒歩18分 (約1410m)
佐倉市井野一戸建て | 物件情報
☆新規リフォーム物件 ☆4SLDK・納戸2部屋あり ☆カースペース4台可能 ☆積水ハウス施工
◇エアコン1台プレゼント中◇
本物件をご成約のお客様へプレゼント!
※本プレゼントはご成約物件のみが対象です。
※ご成約時期によりモデルが変更となる場合がございます。
※取付費用別途
物件の設備
- 公営水道
- 公共下水
- 都市ガス
- コンロ三口
- カウンターキッチン
- システムキッチン
- ユニットバス
- 浴室に窓
- トイレ2箇所
- 温水洗浄便座
- 室内洗濯機置場
- 洗髪洗面化粧台
- 洗面所独立
- モニタ付インターホン
- 和室
- フローリング
- クローゼット
- 納戸
- シューズボックス
- ワイドバルコニー
- 庭
物件の特徴
- 内装リフォーム済
- 外装リフォーム済
- 内外装リフォーム済
- 南向
- 小学校徒歩10分以内
- 南側道路面す
- 通風良好
- 陽当り良好
- 2階建
- 即入居可
物件詳細情報
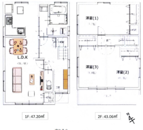
| 価格 | 4,380万円 | 間取り | 4LDK+S |
|---|---|---|---|
| 物件種別 | 中古一戸建て | ||
| 所在地 | 千葉県佐倉市井野1054-31 | ||
| アクセス |
|
||
| 建物面積 | 129.5㎡ | 駐車場 | あり |
| 築年月 | 2012年(平成24年)07月築 | ||
| 建物構造 | 木造 2階建 | 工法 | |
| 主要採光 | バルコニー | ||
| 保証・評価 | |||
| リフォーム | 【水回り】2024年05月 トイレ 【外装】2024年05月 外壁 ・屋根 塗装 【内装】2024年05月 全室クロス |
||
| 土地面積 | 253.28㎡(76.61坪) | 接道 | 西側(公道)幅 約4.0m 南側(公道)幅 約4.0m |
| 私道 | セットバック | ||
| 地目 | 宅地 | 地勢 | |
| 権利 | 所有権 |
||
| 都市計画 | 市街化区域 |
用途地域 | 1種低層 |
| 建ぺい/容積率 | 50% / 100% | 土地国土法 | |
| 許可番号 | 建築基準法 | ||
| 法令制限 | |||
| 小学区 | 井野小学校 徒歩5分 (約330m) | 中学区 | 志津中学校 徒歩8分 (約600m) |
| 現況 | 空 | 引渡 | 即 |
| その他費用 | |||
| 備考 | ☆新規リフォーム物件 ☆4SLDK・納戸2部屋あり ☆庭付き ☆カースペース4台可能 ☆積水ハウス施工 |
||
| 物件番号 | 4275245 | 取引態様 | 媒介 |
取扱店舗情報
ハウスドゥ 東習志野 株式会社Delta company 店舗詳細ページへ
| 電話番号 | 047-411-6912 |
|---|---|
| 所在地 | 〒275-0001 千葉県習志野市東習志野5丁目19-17 宮澤マンションC号室 |
| 営業時間 | 平日9:30~18:30 土日祝日8:30~17:30 |
| 定休日 | 水曜日 |
| 宅建免許番号 | 千葉県知事(1)第18367号 |
| アクセス | 店舗への地図はこちら |

来店ご予約
千葉県佐倉市で価格が似ている物件はこちら
- 千葉県
マイページ物件数 - 2,862件
千葉県中古一戸建て新着物件
- お近くの店舗を探す
-
おすすめ物件
-
-

-
- 中古一戸建て
- 2,880万円
-
木更津市八幡台3丁目
-
JR内房線木更津
-
-
-

-
- 中古一戸建て
- 2,380万円
-
成田市玉造2丁目
-
JR成田線成田
-
-
-

-
- 中古一戸建て
- 3,480万円
-
流山市大字西深井
-
東武野田線運河
-
-
-

-
- 中古一戸建て
- 3,880万円
-
成田市はなのき台2丁目
-
JR成田線成田
-
-
-

-
- 中古一戸建て
- 5,380万円
-
柏市西山1丁目
-
京成電鉄松戸線常盤平
-
-
-

-
- 中古一戸建て
- 2,380万円
-
松戸市根木内
-
JR千代田・常磐緩行線北小金
-
-
-

-
- 中古一戸建て
- 3,380万円
-
成田市はなのき台2丁目
-
JR成田線成田
-
-
-

-
- 中古一戸建て
- 2,080万円
-
柏市逆井5丁目
-
東武野田線逆井
-
-
-

-
- 中古一戸建て
- 5,380万円
-
松戸市大橋
-
北総鉄道北国分
-
-
-

-
- 中古一戸建て
- 1,380万円
-
柏市新逆井2丁目
-
東武野田線逆井
-













□当社は住宅ローンに『自信』があります。是非一度ご相談下さい□
「他社で断られた」 「頭金が無いからな」
「他の返済があるからな」
住宅ローンがご不安な方もお気軽にご相談下さい♪
親身にご相談させていただき、お客様に最適な金融機関をご紹介いたします。
◇頭金0円からのご購入可能(諸費用もOK)
◇他の物件も見てみたい!などお気軽にお申し付け下さい♪
■現地案内会
平日のご見学もお電話1本で駆けつけます。
047-411-6912までお電話下さい。
■ご案内方法
ご来店できないお客様は、ご自宅への送迎やご指定の場所で待ち合わせてご案内。ご希望に合わせ周辺情報もご案内!
■キッズスペース
お子様が退屈しないようDVD、ぬりえ、おもちゃなどをご用意していますので安心してご来店ください。
■専用駐車場
お客様専用駐車場完備!お気軽にご来店お待ちいたしております。
■売却査定買取
仲介による売却はもちろん、ご近所に知られたくない、急いで売却したいときには高額査定で買取します!!
地元密着の情報量とフットワークの良さでお手伝いさせて頂きます。