豊見城市字高嶺の中古戸建
掲載情報更新日:2025年11月29日 次回更新予定日:2025年12月13日
- 6,000万円
-
- 借入ご希望金額
万円 - 借入期間
年 - 借入金利
% - 月々のお支払い金額
円
- 借入ご希望金額
※ 月々のお支払例は目安の試算となりますので、実際の金額とは異なる場合がございます。詳しくは店舗までお問合わせください。
- 豊見城市字高嶺
-
バス停『ゆたか保育園前』 徒歩4分 (約320m)
豊見城市字高嶺一戸建て | 物件情報
【角地・庭付き】オシャレなRC造2階建て♪小学校まで徒歩約2分!
店舗キッズスペースあり!夕方からや土日祝日のご内覧も可能です♪お気軽にお問い合わせください☆
物件の設備
- 電気
- 上水道
- 公営水道
- 下水道
- 公共下水
- プロパンガス
- 個別プロパン
- コンロ三口
- ガスコンロ付
- カウンターキッチン
- システムキッチン
- バス
- バス1坪以上
- トイレ
- トイレ3箇所
- 温水洗浄便座
- 室内洗濯機置場
- LDK20畳以上
- 和室
- 和室8畳以上
- 全居室6畳以上
- 天井高2.5m以上
- 出窓
- 吹抜
- フローリング
- クローゼット
- クローゼット3箇所
- ウォークインクローゼット
- 全居室収納
- シューズボックス
- バルコニー
- ワイドバルコニー
- 南面バルコニー
- 庭
- 庭10坪以上
- ウッドデッキ
物件の特徴
- 小学校徒歩10分以内
- 前道6m以上
- 閑静な住宅街
- 高台に立地
- 眺望良好
- 通風良好
- 陽当り良好
- 2階建
- 角地
- 平坦地
- 整形地
物件詳細情報
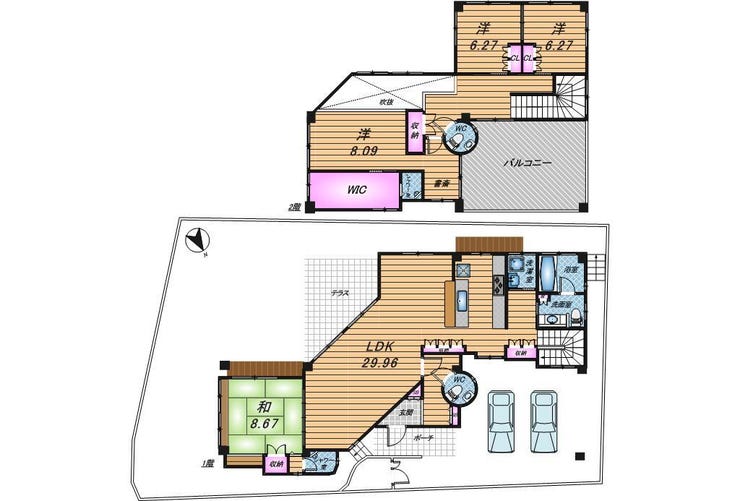
| 価格 | 6,000万円 | 間取り | 4LDK+S |
|---|---|---|---|
| 物件種別 | 中古一戸建て | ||
| 所在地 | 沖縄県豊見城市字高嶺610-77 | ||
| アクセス |
|
||
| 建物面積 | 164.93㎡ | 駐車場 | あり 普通:2台 |
| 築年月 | 1994年(平成6年)08月築 | ||
| 建物構造 | RC 2階建 | 工法 | |
| 主要採光 | 南向 | バルコニー | 南向25.00㎡ |
| 保証・評価 | |||
| リフォーム | |||
| 土地面積 | 291.06㎡(88.04坪) | 接道 | 北側(公道)幅 約7.5m 間口 約22.60m 南東側(公道)幅 約4.5m 間口 約13.80m |
| 私道 | セットバック | ||
| 地目 | 宅地 | 地勢 | |
| 権利 | 所有権 |
||
| 都市計画 | 市街化区域 |
用途地域 | 1種低層 |
| 建ぺい/容積率 | 50% / 100% | 土地国土法 | 届出不要 |
| 許可番号 | 建築基準法 | ||
| 法令制限 | |||
| 小学区 | 豊見城小学校 徒歩2分 (約150m) | 中学区 | 豊見城中学校 徒歩34分 (約2700m) |
| 現況 | 空 | 引渡 | 相談 |
| その他費用 | |||
| 周辺環境 | 豊見城小学校 徒歩2分 (約150m) ローソン 糸満武富店 徒歩7分 (約550m) セブン-イレブン 豊見城高嶺店 徒歩8分 (約600m) 豊見城団地内郵便局 徒歩9分 (約700m) 武富ハイツ公園 徒歩10分 (約750m) フレッシュプラザユニオン 豊見城 徒歩10分 (約800m) タウンプラザかねひで豊見城団地前店 徒歩13分 (約1000m) マックスバリュ武富店 徒歩17分 (約1300m) サンエー豊見城ウィングシティ 徒歩23分 (約1800m) 豊見城中学校 徒歩34分 (約2700m) |
||
| 備考 | 【角地・庭付き】オシャレなRC造2階建て♪小学校まで徒歩約2分! ◆令和7年5月に土地確定測量実施済み ◇周辺環境◇ ・ローソン 糸満武富店まで徒歩7分(約550m) ・フレッシュプラザユニオン 豊見城まで車で2分(約800m) ・タウンプラザかねひで豊見城団地前店まで車で4分(約1200m) ・マックスバリュ武富店まで車で5分(約1300m) ・豊見城ICまで車で5分(約1400m) |
||
| 物件番号 | 4281793 | 取引態様 | 媒介 |
取扱店舗情報
ハウスドゥ 豊見城 株式会社R-JAPAN 店舗詳細ページへ
| 電話番号 | 098-856-5456 |
|---|---|
| 所在地 | 〒901-0225 沖縄県豊見城市豊崎1-1146 |
| 営業時間 | 10:00~19:00 |
| 定休日 | 水曜日、年末年始 |
| 宅建免許番号 | 国土交通大臣(2)第9251号 |
| アクセス | 店舗への地図はこちら |

来店ご予約
- 沖縄県
マイページ物件数 - 3,903件
最近見た物件
-
-

-
- 中古一戸建て
- 4,980万円
-
京都市中京区聚楽廻西町
-
JR山陰本線円町
-
-
-

-
- 中古一戸建て
- 1,050万円
-
奈良市富雄北3丁目
-
近鉄難波・奈良線富雄
-
-
-

-
- 中古一戸建て
- 1,180万円
-
下関市員光町4丁目
-
JR山陽本線小月
-
沖縄県中古一戸建て新着物件
-
-

-
- 中古一戸建て
- 4,198万円
-
那覇市寄宮2丁目
-
沖縄都市モノレール安里駅
-
-
-

-
- 中古一戸建て
- 1億1,800万円
-
宜野湾市宇地泊2丁目
-
バス停兼久原
-
-
-

-
- 中古一戸建て
- 2,500万円
-
島尻郡八重瀬町字新城
-
新城バス停
-
-
-

-
- 中古一戸建て
- 3,498万円
-
国頭郡本部町字具志堅
-
具志堅バス停
-
-
-

-
- 中古一戸建て
- 2,500万円
-
南城市大里字稲嶺
-
大里グリーンタウンバス停
-
-
-

-
- 中古一戸建て
- 4,250万円
-
島尻郡南風原町字兼城
-
バス停新川
-
-
-

-
- 中古一戸建て
- 3,298万円
-
うるま市字川田
-
バス川田
-
- お近くの店舗を探す
-
おすすめ物件
-
-

-
- 中古一戸建て
- 6,000万円
-
国頭郡恩納村字名嘉真
-
バス停伊武部希望ヶ丘入口
-
-
-

-
- 中古一戸建て
- 3,980万円
-
島尻郡八重瀬町字仲座
-
バス停与座
-
-
-

-
- 中古一戸建て
- 6,980万円
-
豊見城市字豊崎
-
光洋小学校入口
-
-
-

-
- 中古一戸建て
- 2,698万円
-
中頭郡西原町字兼久
-
西原バス停
-
-
-

-
- 中古一戸建て
- 5,680万円
-
中頭郡北谷町字桑江
-
北谷高校入口
-
-
-

-
- 中古一戸建て
- 3,100万円
-
中頭郡中城村字津覇
-
津覇バス停
-
-
-

-
- 中古一戸建て
- 4,390万円
-
豊見城市字金良
-
金良入口
-
-
-

-
- 中古一戸建て
- 3,398万円
-
糸満市西崎町3丁目
-
バス停 光洋小学校入口
-
-
-

-
- 中古一戸建て
- 3,820万円
-
中頭郡読谷村字比謝
-
沖縄都市モノレールてだこ浦西
-
-
-

-
- 中古一戸建て
- 2,998万円
-
南城市知念字知念
-
久美山バス停
-




































担当エージェント:與那城 一樹
ハイサーイ!ハウスドゥ 豊見城の與那城(ヨナシロ)と申します。 宮古島産まれ、那覇育ち、大学から東京に出て2021年に沖縄へ戻りました。 沖縄県民だからこそ感じることを『笑顔!』『元気!』にお伝えし、お客様とお話しできることを楽しみにしております!
★ハウスドゥ 豊見城のHPから『マイページ登録』をして頂くと日々更新される、HPでは一般公開されていない新着物件をいち早くご覧いただけます!登録は無料!是非ご活用くださいませ★
\購入相談会同時開催中/
◆住宅ローン
借入限度額や自分に合った支払い額を知りたい方
お家探しの前に資金計
画を立てたい方、住替えをお考えの方
他社で断られた方…
一度ご相談ください。専門スタッフがわかりやすくご説明します!
◆ご家族お揃いでお気軽にお越しください♪
キッズスペース・店舗前に駐車場4台完備♪
お子様連れのお客様も安心して、物件探しをご相談頂けます♪
◆お客様のご要望に応じた物件をまとめてご案内する物件ツアーも開催しております。