宮崎市大字鏡洲の中古戸建
掲載情報更新日:2025年12月19日 次回更新予定日:2026年01月02日
- 850万円
-
- 借入ご希望金額
万円 - 借入期間
年 - 借入金利
% - 月々のお支払い金額
円
- 借入ご希望金額
※ 月々のお支払例は目安の試算となりますので、実際の金額とは異なる場合がございます。詳しくは店舗までお問合わせください。
- 宮崎市大字鏡洲
-
JR日南線『木花』 徒歩48分 (約3830m)
JR日南線『運動公園』 徒歩58分 (約4580m)
JR日南線『曽山寺』 徒歩66分 (約5250m)
宮崎市大字鏡洲一戸建て | 物件情報
物件の設備
- 電気
- オール電化
- 下水道
- IHクッキングヒータ
- コンロ二口
- バス
- トイレ
- 温水洗浄便座
- 室内洗濯機置場
- 洗髪洗面化粧台
- 洗面所独立
- エアコン
- 照明器具
- 省エネ給湯器
物件の特徴
- 前道6m以上
物件詳細情報
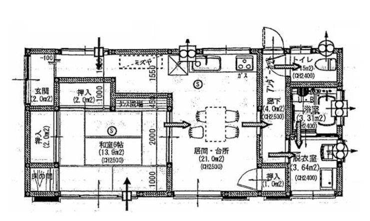
| 価格 | 850万円 | 間取り | 1LDK |
|---|---|---|---|
| 物件種別 | 中古一戸建て | ||
| 所在地 | 宮崎県宮崎市大字鏡洲 | ||
| アクセス |
|
||
| 建物面積 | 公55㎡ | 駐車場 | あり 普通:2台 |
| 築年月 | 2013年(平成25年)10月築 | ||
| 建物構造 | 木造 1階建 | 工法 | |
| 主要採光 | バルコニー | ||
| 保証・評価 | |||
| リフォーム | |||
| 土地面積 | 公170.82㎡(51.67坪) | 接道 | 北側(公道)幅 約13.7m |
| 私道 | セットバック | ||
| 地目 | 宅地 | 地勢 | |
| 権利 | 所有権 |
||
| 都市計画 | 区域外 |
用途地域 | 指定無 |
| 建ぺい/容積率 | 70% / 200% | 土地国土法 | |
| 許可番号 | 建築基準法 | ||
| 法令制限 | |||
| 小学区 | 鏡洲小学校 徒歩30分 (約2390m) | 中学区 | 木花中学校 徒歩38分 (約2990m) |
| 現況 | 空 | 引渡 | 相談 |
| その他費用 | |||
| 備考 | |||
| 物件番号 | 4284239 | 取引態様 | 媒介 |
取扱店舗情報
| 電話番号 | 0985-86-7336 |
|---|---|
| 所在地 | 〒889-1607 宮崎県宮崎市清武町加納3丁目16 メモワールII101号室 |
| 営業時間 | 9:00~20:00 |
| 定休日 | 不定休 |
| 宅建免許番号 | 宮崎県知事(1)第4995号 |
| アクセス | 店舗への地図はこちら |

来店ご予約
宮崎県宮崎市で価格が似ている物件はこちら
- 宮崎県
マイページ物件数 - 1,625件
最近見た物件
-
-

-
- 土地
- 631.20万円
-
宇部市大字西岐波
-
JR宇部線丸尾
-
宮崎県中古一戸建て新着物件
-
-

-
- 中古一戸建て
- 1,800万円
-
宮崎市下北方町陣ノ下
-
JR日豊本線宮崎神宮駅
-
-
-

-
- 中古一戸建て
- 3,280万円
-
宮崎市大字島之内
-
JR日豊本線日向住吉駅
-
-
-

-
- 中古一戸建て
- 1,480万円
-
宮崎市大字大瀬町
-
JR日豊本線宮崎神宮駅
-
-
-

-
- 中古一戸建て
- 1,500万円
-
宮崎市佐土原町上田島
-
宮崎交通バス佐土原中前
-
-
-

-
- 中古一戸建て
- 1,380万円
-
宮崎市大字小松
-
JR日豊本線宮崎神宮駅
-
-
-

-
- 中古一戸建て
- 880万円
-
宮崎市吉村町曽師前
-
JR日豊本線宮崎駅
-
-
-

-
- 中古一戸建て
- 1,780万円
-
宮崎市祇園3丁目
-
JR日豊本線宮崎神宮駅
-
- お近くの店舗を探す
-
おすすめ物件
-
-

-
- 中古一戸建て
- 1,990万円
-
宮崎市吉村町曽師前
-
JR日豊本線宮崎
-
-
-

-
- 中古一戸建て
- 650万円
-
宮崎市佐土原町東上那珂
-
野久尾バス停
-
-
-

-
- 中古一戸建て
- 700万円
-
日南市南郷町中村乙
-
JR日南線南郷
-
-
-

-
- 中古一戸建て
- 1,460万円
-
宮崎市堀川町
-
JR日豊本線宮崎
-
-
-

-
- 中古一戸建て
- 1,350万円
-
宮崎市清武町今泉丙
-
JR日豊本線清武
-
-
-

-
- 中古一戸建て
- 1,100万円
-
宮崎市大字小松
-
JR日豊本線宮崎神宮
-
-
-

-
- 中古一戸建て
- 1,890万円
-
宮崎市小松台西3丁目
-
JR日豊本線宮崎神宮
-
-
-

-
- 中古一戸建て
- 2,300万円
-
宮崎市学園木花台南3丁目
-
JR日南線木花
-
-
-

-
- 中古一戸建て
- 1,350万円
-
宮崎市大塚町小原田
-
JR日豊本線宮崎
-
-
-

-
- 中古一戸建て
- 2,000万円
-
宮崎市江南2丁目
-
JR日豊本線南宮崎
-













