大東市野崎3丁目の中古戸建
掲載情報更新日:2026年02月07日 次回更新予定日:2026年02月21日
- 3,600万円
-
- 借入ご希望金額
万円 - 借入期間
年 - 借入金利
% - 月々のお支払い金額
円
- 借入ご希望金額
※ 月々のお支払例は目安の試算となりますので、実際の金額とは異なる場合がございます。詳しくは店舗までお問合わせください。
- 大東市野崎3丁目
-
JR片町線『野崎』 徒歩16分 (約1280m)
大東市野崎3丁目一戸建て | 物件情報
■敷地面積約150坪♪ ■間取り7SLDKのファミリータイプ♪ ■お気軽にお問い合わせください♪
■敷地面積約150坪♪
■間取り7SLDKのファミリータイプ♪
■お気軽にお問い合わせください♪
物件の設備
- 電気
- 上水道
- 公営水道
- 下水道
- 公共下水
- 都市ガス
- 給湯
- システムキッチン
- バス
- ユニットバス
- 追焚機能
- シャワールーム
- トイレ
- トイレ2箇所
- トイレ3箇所
- 室内洗濯機置場
- 洗髪洗面化粧台
- 和室
- クローゼット
- 露天風呂
物件の特徴
- 前道6m以上
- 南側道路面す
- 花火が見える
- 山が見える
- 高台に立地
- 眺望良好
- 通風良好
- 陽当り良好
- 2階建
- 二世帯向
物件詳細情報
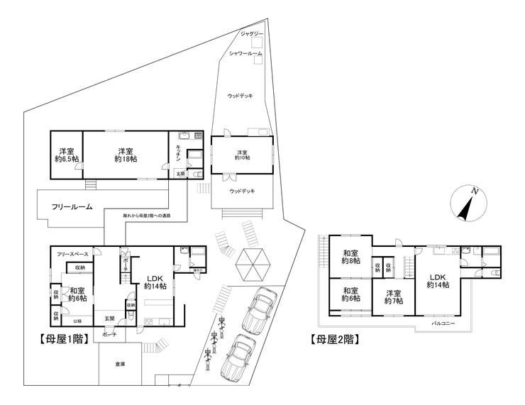
| 価格 | 3,600万円 | 間取り | 7LDK+S |
|---|---|---|---|
| 物件種別 | 中古一戸建て | ||
| 所在地 | 大阪府大東市野崎3丁目 | ||
| アクセス |
|
||
| 建物面積 | 公178.06㎡ | 駐車場 | あり |
| 築年月 | 1967年(昭和42年)01月築 | ||
| 建物構造 | RC 2階建 | 工法 | |
| 主要採光 | 南向 | バルコニー | |
| 保証・評価 | |||
| リフォーム | |||
| 土地面積 | 公495.85㎡(149.99坪) | 接道 | 南側(公道)幅 約6.2m |
| 私道 | セットバック | ||
| 地目 | 宅地 | 地勢 | |
| 権利 | 所有権 |
||
| 都市計画 | 市街化区域 |
用途地域 | 1種中高 |
| 建ぺい/容積率 | 60% / 200% | 土地国土法 | |
| 許可番号 | 建築基準法 | ||
| 法令制限 | |||
| 小学区 | 四条小学校 徒歩5分 (約350m) | 中学区 | 四条中学校 徒歩12分 (約900m) |
| 現況 | 居住中 | 引渡 | 相談 |
| その他費用 | |||
| 備考 | ■土地面積約150坪の鉄筋コンクリートの家♪ ■高台に付き日当たり&通風良好♪ ■陸屋根に付き屋上にて花火鑑賞やBBQ等にもお使いいただけます♪ ■ウッドデッキにはシャワールーム&ジャグジー付♪ |
||
| 物件番号 | 4287735 | 取引態様 | 一般 |
取扱店舗情報
ハウスドゥ 京阪寝屋川 株式会社Neo不動産販売 店舗詳細ページへ
| 電話番号 | 072-812-1144 |
|---|---|
| 所在地 | 〒572-0838 大阪府寝屋川市八坂町9-3 日経ビル1階 |
| 営業時間 | 10:00~20:00 |
| 定休日 | 火曜日、水曜日 |
| 宅建免許番号 | 大阪府知事(2)第61431号 |
| アクセス | 店舗への地図はこちら |

来店ご予約
大阪府大東市で価格が似ている物件はこちら
- 大阪府
マイページ物件数 - 16,808件
大阪府中古一戸建て新着物件
-
-

-
- 中古一戸建て
- 3,080万円
-
高槻市浦堂1丁目
-
JR東海道線高槻駅
-
-
-

-
- 中古一戸建て
- 2,300万円
-
東大阪市五条町
-
近鉄難波・奈良線枚岡駅
-
-
-

-
- 中古一戸建て
- 3,050万円
-
東大阪市横小路町5丁目
-
近鉄難波・奈良線瓢箪山駅
-
-
-

-
- 中古一戸建て
- 690万円
-
大東市北条6丁目
-
JR片町線四条畷駅
-
-
-

-
- 中古一戸建て
- 4,150万円
-
吹田市寿町2丁目
-
阪急電鉄千里線吹田駅
-
-
-

-
- 中古一戸建て
- 3,700万円
-
豊中市二葉町1丁目
-
阪急電鉄神戸線神崎川駅
-
-
-

-
- 中古一戸建て
- 1,300万円
-
豊中市螢池西町1丁目
-
阪急電鉄宝塚線蛍池駅
-
- お近くの店舗を探す
-
おすすめ物件
-
-

-
- 中古一戸建て
- 2,780万円
-
東大阪市御厨栄町2丁目
-
近鉄難波・奈良線河内小阪
-
-
-

-
- 中古一戸建て
- 2,980万円
-
茨木市北春日丘1丁目
-
JR東海道線茨木
-
-
-

-
- 中古一戸建て
- 2,350万円
-
大阪市淀川区三津屋中1丁目
-
阪急電鉄神戸線神崎川
-
-
-

-
- 中古一戸建て
- 2,780万円
-
泉大津市板原町1丁目
-
JR阪和線和泉府中
-
-
-

-
- 中古一戸建て
- 4,680万円
-
高槻市奥天神町1丁目
-
JR東海道線高槻
-
-
-

-
- 中古一戸建て
- 2,798万円
-
高槻市東五百住町3丁目
-
阪急電鉄京都線富田
-
-
-

-
- 中古一戸建て
- 2,280万円
-
東大阪市稲葉1丁目
-
近鉄難波・奈良線河内花園
-
-
-

-
- 中古一戸建て
- 3,980万円
-
高槻市芝生町2丁目
-
JR東海道線摂津富田
-
-
-

-
- 中古一戸建て
- 4,580万円
-
大阪市住之江区住之江1丁目
-
南海電鉄本線住ノ江
-
-
-

-
- 中古一戸建て
- 2,080万円
-
八尾市太田2丁目
-
大阪市谷町線八尾南
-






