佐賀市新生町の中古戸建
掲載情報更新日:2025年10月25日 次回更新予定日:2025年11月08日
- 2,049万円
- 
                    - 借入ご希望金額
 万円
-  借入期間
 年
-  借入金利
 %
-  月々のお支払い金額
 円
 
- 借入ご希望金額
※ 月々のお支払例は目安の試算となりますので、実際の金額とは異なる場合がございます。詳しくは店舗までお問合わせください。
- 佐賀市新生町
- 
                    JR長崎本線『佐賀』 徒歩38分 (約3040m)
 
佐賀市新生町一戸建て | 物件情報
物件の設備
- 公営水道
- 公共下水
- プロパンガス
- 個別プロパン
- コンロ三口
- 温水洗浄便座
- フローリング張替
物件の特徴
- 内装リフォーム済
- 外装リフォーム済
- 内外装リフォーム済
- 2階建
- 即入居可
物件詳細情報
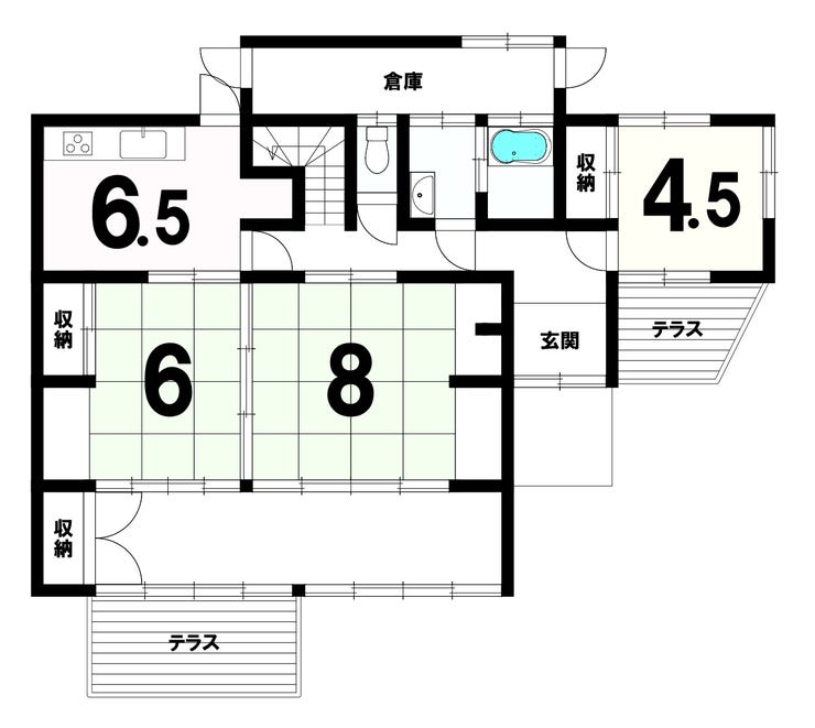
| 価格 | 2,049万円 | 間取り | 5DK | 
|---|---|---|---|
| 物件種別 | 中古一戸建て | ||
| 所在地 | 佐賀県佐賀市新生町 | ||
| アクセス | 
 | ||
| 建物面積 | 109.19㎡ | 駐車場 | あり 普通:2台 | 
| 築年月 | 1985年(昭和60年)07月築 | ||
| 建物構造 | 木造 2階建 | 工法 | |
| 主要採光 | バルコニー | ||
| 保証・評価 | |||
| リフォーム | 【水回り】2025年09月 キッチン・浴室・トイレ・洗面・給湯器・給排水管 【外装】2025年09月 外壁 ・屋根 【内装】2025年09月 全面 ・壁、天井 ・床 ・全室クロス ・建具 ・サッシ | ||
| 土地面積 | 249.36㎡(75.43坪) | 接道 | 南西側(私道)幅 約4.0m | 
| 私道 | セットバック | ||
| 地目 | 宅地 | 地勢 | |
| 権利 | |||
| 都市計画 | 市街化区域 | 用途地域 | 1種低層 | 
| 建ぺい/容積率 | 50% / 80% | 土地国土法 | |
| 許可番号 | 建築基準法 | ||
| 法令制限 | |||
| 小学区 | 新栄小学校 徒歩7分 (約560m) | 中学区 | 昭栄中学校 徒歩34分 (約2650m) | 
| 現況 | 空 | 引渡 | 即 | 
| その他費用 | |||
| 周辺環境 | セブンイレブン 佐賀新栄東1丁目店 徒歩6分 (約460m) ローソン 佐賀新栄東店 徒歩7分 (約520m) 佐賀天祐郵便局 徒歩7分 (約550m) 新栄保育園 徒歩10分 (約790m) 認定こども園白鳩幼稚園・白鳩保育園 徒歩9分 (約690m) 佐賀県立佐賀北高校 徒歩8分 (約580m) コープさが 新栄店 徒歩12分 (約960m) サンドラッグ 佐賀新栄店 徒歩12分 (約960m) セブンイレブン 佐賀鍋島八戸店 徒歩12分 (約890m) ドラッグストアコスモス 天祐店 徒歩12分 (約890m) | ||
| 備考 | |||
| 物件番号 | 4292021 | 取引態様 | 媒介 | 
取扱店舗情報
ハウスドゥ 佐賀大財通り 合同会社ヘルスケアマネジメント協会 店舗詳細ページへ
| 電話番号 | 0952-97-9171 | 
|---|---|
| 所在地 | 〒840-0824 佐賀県佐賀市呉服元町11-20 | 
| 営業時間 | 9:30~18:30 | 
| 定休日 | 水曜日 | 
| 宅建免許番号 | 佐賀県知事(1)第2673号 | 
| アクセス | 店舗への地図はこちら | 

来店ご予約
佐賀県佐賀市で価格が似ている物件はこちら
- 佐賀県
 マイページ物件数
- 1,397件
最近見た物件
佐賀県中古一戸建て新着物件
- 
				- 
							                             
- 
						- 中古一戸建て
- 800万円
- 
								
									唐津市呼子町殿ノ浦 
- 
                                JR唐津線唐津駅 
 
 
- 
							                            
- 
				- 
							                             
- 
						- 中古一戸建て
- 4,300万円
- 
								
									佐賀市天神1丁目 
- 
                                JR長崎本線佐賀駅 
 
 
- 
							                            
- 
				- 
							                             
- 
						- 中古一戸建て
- 3,200万円
- 
								
									佐賀市西与賀町大字厘外 
- 
                                バス停「今津下町」 
 
 
- 
							                            
- 
				- 
							                             
- 
						- 中古一戸建て
- 1,649万円
- 
								
									佐賀市金立町大字千布 
- 
                                JR長崎本線伊賀屋駅 
 
 
- 
							                            
- 
				- 
							                             
- 
						- 中古一戸建て
- 1,499万円
- 
								
									佐賀市北川副町大字光法 
- 
                                バス停「増田口」 
 
 
- 
							                            
- 
				- 
							                             
- 
						- 中古一戸建て
- 3,280万円
- 
								
									佐賀市新郷本町 
- 
                                バス停「南佐賀」 
 
 
- 
							                            
- 
				- 
							                             
- 
						- 中古一戸建て
- 3,580万円
- 
								
									佐賀市本庄町大字袋 
- 
                                バス停「袋入口」 
 
 
- 
							                            
- お近くの店舗を探す
- 
            
            
            
おすすめ物件
- 
				- 
														 
- 
						- 中古一戸建て
- 3,880万円
- 
								
									佐賀市下田町 
- 
								バス停「普門寺」 
 
 
- 
														
- 
				- 
														 
- 
						- 中古一戸建て
- 1,100万円
- 
								
									三養基郡みやき町大字江口 
- 
								バス停「東大島公民館」 
 
 
- 
														
- 
				- 
														 
- 
						- 中古一戸建て
- 1,980万円
- 
								
									佐賀市諸富町大字徳富 
- 
								JR長崎本線佐賀 
 
 
- 
														
- 
				- 
														 
- 
						- 中古一戸建て
- 1,000万円
- 
								
									多久市東多久町大字別府 
- 
								JR唐津線東多久 
 
 
- 
														
- 
				- 
														 
- 
						- 中古一戸建て
- 2,398万円
- 
								
									佐賀市川副町大字鹿江 
- 
								JR長崎本線佐賀 
 
 
- 
														
 
     
                         
                         
                         
                    







 
                 
                 
             
                 
                    

 
                                            
 
                                             
                                             
                                             
                                            


 
						 
						