長崎市女の都2丁目の中古戸建
掲載情報更新日:2026年04月07日 次回更新予定日:2026年04月21日
- 950万円
-
- 借入ご希望金額
万円 - 借入期間
年 - 借入金利
% - 月々のお支払い金額
円
- 借入ご希望金額
※ 月々のお支払例は目安の試算となりますので、実際の金額とは異なる場合がございます。詳しくは店舗までお問合わせください。
- 長崎市女の都2丁目
-
『女の都団地』 徒歩5分 (約400m)
長崎市女の都2丁目一戸建て | 物件情報
物件の設備
- 給湯
- システムキッチン
- 追焚機能
- 浴室に窓
- 温水洗浄便座
- クローゼット
- 全居室収納
物件の特徴
- 2階建
物件詳細情報
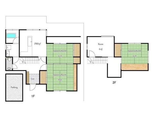
| 価格 | 950万円 | 間取り | 4DK |
|---|---|---|---|
| 物件種別 | 中古一戸建て | ||
| 所在地 | 長崎県長崎市女の都2丁目 | ||
| アクセス |
|
||
| 建物面積 | 92.57㎡ | 駐車場 | あり 普通:1台 |
| 築年月 | 1987年(昭和62年)12月築 | ||
| 建物構造 | 木造 2階建 | 工法 | |
| 主要採光 | 南東向 | バルコニー | |
| 保証・評価 | |||
| リフォーム | |||
| 土地面積 | 公160.43㎡(48.53坪) | 接道 | |
| 私道 | セットバック | ||
| 地目 | 宅地 | 地勢 | |
| 権利 | 所有権 |
||
| 都市計画 | 市街化区域 |
用途地域 | 1種低層 |
| 建ぺい/容積率 | 50% / 100% | 土地国土法 | |
| 許可番号 | 建築基準法 | ||
| 法令制限 | |||
| 小学区 | 女の都小学校 徒歩5分 (約384m) | 中学区 | 西浦上中学校 徒歩34分 (約2683m) |
| 現況 | 空 | 引渡 | 相談 |
| その他費用 | |||
| 備考 | ・バス停、小学校まで徒歩5分♪ ・倉庫付き☆ |
||
| 物件番号 | 4295988 | 取引態様 | 媒介 |
取扱店舗情報
ハウスドゥ 長崎西 アイ・ステップ株式会社 店舗詳細ページへ
| 電話番号 | 095-862-7030 |
|---|---|
| 所在地 | 〒852-8015 長崎県長崎市春木町9-12 田中ビル1F |
| 営業時間 | 9:00~18:00 |
| 定休日 | 水曜日・年末年始 |
| 宅建免許番号 | 長崎県知事(3)第3801号 |
| アクセス | 店舗への地図はこちら |

来店ご予約
長崎県長崎市で価格が似ている物件はこちら
- 長崎県
マイページ物件数 - 526件
最近見た物件
-
-

-
- 中古一戸建て
- 1,980万円
-
阪南市桃の木台6丁目
-
南海電鉄本線箱作
-
長崎県中古一戸建て新着物件
- お近くの店舗を探す
-
おすすめ物件
-
-

-
- 中古一戸建て
- 1,580万円
-
長崎市かき道2丁目
-
かき道2丁目
-
-
-

-
- 中古一戸建て
- 1,980万円
-
長崎市小江原1丁目
-
小江原橋
-
-
-

-
- 中古一戸建て
- 1,780万円
-
長崎市蚊焼町
-
松尾
-
-
-

-
- 中古一戸建て
- 1,100万円
-
長崎市女の都4丁目
-
女の都小学校下
-
-
-

-
- 中古一戸建て
- 2,500万円
-
長崎市東小島町
-
長崎電軌本線崇福寺
-
-
-

-
- 中古一戸建て
- 2,780万円
-
長崎市三原3丁目
-
棚荷尾
-
-
-

-
- 中古一戸建て
- 3,500万円
-
長崎市琴海大平町
-
大江橋
-
-
-

-
- 中古一戸建て
- 4,100万円
-
長崎市琴海形上町
-
長崎バス大子
-
-
-

-
- 中古一戸建て
- 2,100万円
-
長崎市昭和2丁目
-
JR長崎本線西浦上
-
-
-

-
- 中古一戸建て
- 2,280万円
-
長崎市三京町
-
三重中学校前
-
























