鶴見区茨田大宮三丁目 中古戸建
掲載情報更新日:2025年12月13日 次回更新予定日:2025年12月27日
- 699万円
-
- 借入ご希望金額
万円 - 借入期間
年 - 借入金利
% - 月々のお支払い金額
円
- 借入ご希望金額
※ 月々のお支払例は目安の試算となりますので、実際の金額とは異なる場合がございます。詳しくは店舗までお問合わせください。
- 大阪市鶴見区茨田大宮3丁目
-
大阪市長堀鶴見緑地線『門真南』 徒歩14分 (約1120m)
大阪市長堀鶴見緑地線『鶴見緑地』 徒歩24分 (約1900m)
JR片町線『徳庵』 徒歩33分 (約2600m)
鶴見区茨田大宮三丁目 中古戸建一戸建て | 物件情報
☆駅14分×5K×51.39㎡☆ バルコニー風通し◎♪
☆月々1.8万円~
☆最寄駅から京橋駅まで11分
☆近隣に学校、幼稚園、保育園、公園あり
☆複数スーパーあり
【内覧会開催中】
本日ご案内可能な場合もございます。
複数件併せてご内見も可能♪
他の掲載物件もまとめてご内見頂けます。気になる物件をお教え下さい。
☆0120ー684-571
お気軽にお電話ください♪
☆立地のポイント
【門真南駅】徒歩約14分
【鶴見緑地駅】徒歩約24分
【徳庵駅】徒歩約33分
物件の設備
- 公営水道
- 公共下水
- 都市ガス
物件の特徴
- 2階建
物件詳細情報
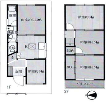
| 価格 | 699万円 | 間取り | 5K |
|---|---|---|---|
| 物件種別 | 中古一戸建て | ||
| 所在地 | 大阪府大阪市鶴見区茨田大宮3丁目 | ||
| アクセス |
|
||
| 建物面積 | 58.17㎡ | 駐車場 | なし |
| 築年月 | 1976年(昭和51年)12月築 | ||
| 建物構造 | 木造 2階建 | 工法 | |
| 主要採光 | 西向 | バルコニー | |
| 保証・評価 | |||
| リフォーム | |||
| 土地面積 | 51.39㎡(15.54坪) | 接道 | 西側(私道)幅 約4.4m 間口 約4.00m |
| 私道 | 含:8.91㎡ | セットバック | 無 |
| 地目 | 宅地 | 地勢 | |
| 権利 | 所有権 |
||
| 都市計画 | 市街化区域 |
用途地域 | 1種住居 |
| 建ぺい/容積率 | 80% / 200% | 土地国土法 | |
| 許可番号 | 建築基準法 | ||
| 法令制限 | |||
| 小学区 | 茨田東小学校 徒歩1分 (約44m) | 中学区 | 茨田北中学校 徒歩10分 (約750m) |
| 現況 | 空 | 引渡 | 相談 |
| その他費用 | |||
| 備考 | セットバック無し | ||
| 物件番号 | 4297907 | 取引態様 | 媒介 |
取扱店舗情報
| 電話番号 | 050-5805-9447 |
|---|---|
| 所在地 | 〒536-0006 大阪府大阪市城東区野江4丁目10-13 クリエイト野江内代1F |
| 営業時間 | 10:00~19:00 |
| 定休日 | なし |
| 宅建免許番号 | 国土交通大臣(1)第10706号 |
| アクセス | 店舗への地図はこちら |

来店ご予約
大阪府大阪市鶴見区で価格が似ている物件はこちら
- 大阪府
マイページ物件数 - 16,179件
最近見た物件
-
-

-
- 中古一戸建て
- 2,199万円
-
長浜市相撲町
-
JR北陸本線長浜
-
-
-

-
- 中古マンション
- 1,000万円
-
奈良市南紀寺町2丁目
-
JR桜井線京終
-
-
-

-
- 中古一戸建て
- 2,450万円
-
半田市亀崎高根町7丁目
-
JR武豊線亀崎
-
大阪府中古一戸建て新着物件
-
-

-
- 中古一戸建て
- 1,480万円
-
阪南市尾崎町5丁目
-
南海電鉄本線尾崎駅
-
-
-

-
- 中古一戸建て
- 1,150万円
-
東大阪市俊徳町4丁目
-
JRおおさか東線JR俊徳道駅
-
-
-

-
- 中古一戸建て
- 3,980万円
-
和泉市緑ケ丘1丁目
-
南海電鉄泉北線和泉中央駅
-
-
-

-
- 中古一戸建て
- 3,150万円
-
堺市西区浜寺諏訪森町中1丁
-
南海電鉄本線浜寺公園駅
-
-
-

-
- 中古一戸建て
- 1億5,000万円
-
豊中市服部南町2丁目
-
阪急電鉄宝塚線服部天神駅
-
-
-

-
- 収益
- 1,580万円
-
堺市西区上野芝町8丁
-
JR阪和線上野芝駅
-
-
-

-
- 中古一戸建て
- 680万円
-
豊中市若竹町1丁目
-
北大阪急行南北線緑地公園駅
-
- お近くの店舗を探す
-
おすすめ物件
-
-

-
- 中古一戸建て
- 4,490万円
-
大阪市住吉区万代東2丁目
-
大阪市御堂筋線西田辺
-
-
-

-
- 中古一戸建て
- 2,580万円
-
大阪市住吉区長居2丁目
-
JR阪和線長居
-
-
-

-
- 中古一戸建て
- 3,780万円
-
大阪市淀川区三津屋南3丁目
-
阪急電鉄神戸線神崎川
-
-
-

-
- 中古一戸建て
- 3,200万円
-
大阪市西成区梅南1丁目
-
大阪市四つ橋線花園町
-
-
-

-
- 中古一戸建て
- 4,680万円
-
大阪市住吉区遠里小野6丁目
-
南海電鉄高野線我孫子前
-
-
-

-
- 中古一戸建て
- 2,980万円
-
八尾市八尾木3丁目
-
JR関西本線志紀
-
-
-

-
- 中古一戸建て
- 150万円
-
岸和田市吉井町1丁目
-
南海電鉄本線春木
-
-
-

-
- 中古一戸建て
- 1,800万円
-
川西市鼓が滝3丁目
-
能勢電鉄鼓滝
-
-
-

-
- 中古一戸建て
- 1,180万円
-
泉佐野市上之郷
-
JR阪和線長滝
-
-
-

-
- 中古一戸建て
- 1,780万円
-
岸和田市下池田町2丁目
-
JR阪和線久米田
-

































担当エージェント:尾関 親代
最寄り駅から京橋まで11分の好立地!
落ち着いた住環境でファミリー層に◎♪
住宅ローン相談会開催中です!
ぜひお気軽にお問い合わせください!