中古戸建 松原市高見の里6丁目
掲載情報更新日:2026年03月26日 次回更新予定日:2026年04月09日
- 680万円
-
- 借入ご希望金額
万円 - 借入期間
年 - 借入金利
% - 月々のお支払い金額
円
- 借入ご希望金額
※ 月々のお支払例は目安の試算となりますので、実際の金額とは異なる場合がございます。詳しくは店舗までお問合わせください。
- 松原市高見の里6丁目
-
近鉄南大阪線『高見ノ里』 徒歩9分 (約720m)
近鉄南大阪線『河内松原』 徒歩17分 (約1360m)
近鉄南大阪線『布忍』 徒歩21分 (約1680m)
中古戸建 松原市高見の里6丁目一戸建て | 物件情報
★小学校、中学校ともに徒歩10分圏内!新築建替え用の土地としてもオススメ★
★松原市高見の里、900万円★
●オススメポイント●
・高見の里駅 徒歩10分
・駐車1台可能
・新築建替え用の土地としてもオススメ
・小学校、中学校徒歩10分圏内
●教育機関●
・松原西小学校 徒歩10分
・松原中学校 徒歩9分
物件の設備
- 電気
- 公営水道
- 公共下水
- 都市ガス
- コンロ三口
- バス
- トイレ
- 室内洗濯機置場
- 洗面所独立
- 和室
- クローゼット
- 2面バルコニー
物件の特徴
- 整備された歩道
- 閑静な住宅街
- 市街地が近い
- 通風良好
- 2階建
- 平坦地
物件詳細情報
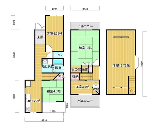
| 価格 | 680万円 | 間取り | 5DK |
|---|---|---|---|
| 物件種別 | 中古一戸建て | ||
| 所在地 | 大阪府松原市高見の里6丁目 | ||
| アクセス |
|
||
| 建物面積 | 実73.04㎡ | 駐車場 | あり 普通:1台 |
| 築年月 | 1975年(昭和50年)03月築 | ||
| 建物構造 | 木造 2階建 | 工法 | |
| 主要採光 | 南向 | バルコニー | |
| 保証・評価 | |||
| リフォーム | |||
| 土地面積 | 実78.47㎡(23.73坪) | 接道 | 東側(私道)幅 約4.0m 間口 約4.30m(位置指定) |
| 私道 | セットバック | ||
| 地目 | 宅地 | 地勢 | |
| 権利 | 所有権 |
||
| 都市計画 | 市街化区域 |
用途地域 | 2種中高 |
| 建ぺい/容積率 | 60% / 200% | 土地国土法 | 届出不要 |
| 許可番号 | 建築基準法 | ||
| 法令制限 | 高度地区・準防火地域 | ||
| 小学区 | 松原西小学校 徒歩9分 (約723m) | 中学区 | 松原中学校 徒歩9分 (約717m) |
| 現況 | 居住中 | 引渡 | 相談 |
| その他費用 | |||
| 周辺環境 | 明の守しんどう学園 徒歩6分 (約420m) 松原市立松原西小学校 徒歩9分 (約690m) 松原市立松原中学校 徒歩9分 (約720m) 大阪府立生野高等学校 徒歩7分 (約490m) たけのここどもクリニック 徒歩8分 (約600m) ハンズマン松原店 徒歩8分 (約600m) イオンフードスタイル 松原店 徒歩8分 (約600m) 阪南大学高等学校 徒歩12分 (約920m) 高見ノ里駅 徒歩9分 (約680m) |
||
| 備考 | ・明の守しんどう学園まで徒歩6分(約420m) ・松原市立松原西小学校まで徒歩9分(約690m) ・松原市立松原中学校まで徒歩9分(約720m) ・大阪府立生野高等学校まで徒歩7分(約490m) ・たけのここどもクリニックまで徒歩8分(約600m) ・ハンズマン松原店まで徒歩8分(約600m) ・イオンフードスタイル 松原店まで徒歩8分(約600m) ・阪南大学高等学校まで徒歩12分(約920m) ・高見ノ里駅まで徒歩9分(約680m) |
||
| 物件番号 | 4298436 | 取引態様 | 媒介 |
取扱店舗情報
ハウスドゥ 松原阿保 Tacoo home株式会社 店舗詳細ページへ
| 電話番号 | 072-247-5294 |
|---|---|
| 所在地 | 〒580-0043 大阪府松原市阿保1丁目4-11コーポイン松原102 |
| 営業時間 | 平日:10:00~20:00/土日祝:9:00~20:00 |
| 定休日 | 水曜日 |
| 宅建免許番号 | 大阪府知事(1)第65754号 |
| アクセス | 店舗への地図はこちら |

来店ご予約
大阪府松原市で価格が似ている物件はこちら
- 大阪府
マイページ物件数 - 18,088件
最近見た物件
-
-

-
- 土地
- 770万円
-
小山市大字荒井
-
湘南新宿ライン宇須小金井
-
-
-

-
- 土地
- 2,190万円
-
知多郡東浦町大字森岡字浜田
-
JR武豊線尾張森岡
-
-
-

-
- 土地
- 998万円
-
岡山市東区西大寺松崎
-
JR赤穂線大多羅
-
大阪府中古一戸建て新着物件
-
-

-
- 中古一戸建て
- 3,300万円
-
泉南郡熊取町五門東4丁目
-
JR阪和線熊取駅
-
-
-

-
- 中古一戸建て
- 880万円
-
泉南郡熊取町大宮3丁目
-
JR阪和線熊取駅
-
-
-

-
- 中古一戸建て
- 1,680万円
-
大阪市城東区成育5丁目
-
大阪市今里筋線関目成育駅
-
-
-

-
- 中古一戸建て
- 3,490万円
-
大阪市東淀川区大桐5丁目
-
大阪市今里筋線瑞光四丁目駅
-
-
-

-
- 中古一戸建て
- 880万円
-
堺市東区日置荘西町7丁
-
南海電鉄高野線初芝駅
-
-
-

-
- 中古一戸建て
- 2,580万円
-
岸和田市畑町3丁目
-
JR阪和線東岸和田駅
-
-
-

-
- 中古一戸建て
- 2,280万円
-
岸和田市摩湯町
-
南海電鉄泉北線和泉中央駅
-
- お近くの店舗を探す
-
おすすめ物件
-
-

-
- 中古一戸建て
- 730万円
-
泉南郡熊取町山の手台3丁目
-
JR阪和線熊取
-
-
-

-
- 中古一戸建て
- 790万円
-
泉南郡熊取町山の手台3丁目
-
JR阪和線熊取
-
-
-

-
- 中古一戸建て
- 1,600万円
-
八尾市垣内4丁目
-
近鉄信貴線信貴山口
-
-
-

-
- 中古一戸建て
- 3,250万円
-
高槻市栄町2丁目
-
阪急電鉄京都線富田
-
-
-

-
- 中古一戸建て
- 2,580万円
-
高槻市大塚町4丁目
-
阪急電鉄京都線高槻市
-
-
-

-
- 中古一戸建て
- 780万円
-
摂津市鳥飼上3丁目
-
大阪モノレール南摂津
-
-
-

-
- 中古一戸建て
- 2,798万円
-
高槻市東五百住町3丁目
-
阪急電鉄京都線富田
-
-
-

-
- 中古一戸建て
- 1,230万円
-
東大阪市稲葉1丁目
-
近鉄難波・奈良線河内花園
-
-
-

-
- 中古一戸建て
- 2,080万円
-
八尾市太田2丁目
-
大阪市谷町線八尾南
-
-
-

-
- 中古一戸建て
- 2,580万円
-
大阪市住吉区山之内3丁目
-
JR阪和線杉本町
-




担当エージェント:福田 亜翔
【複数件併せてのご案内可能です】気になるあのマンション、エリア内・沿線近くの物件などお客様のご要望に沿った物件を一度にご紹介いたします♪