オナーズコート東鶉 全2棟 C号地 一戸建て
掲載情報更新日:2025年10月02日 次回更新予定日:2025年10月16日
- 4,880万円
-
- 借入ご希望金額
万円 - 借入期間
年 - 借入金利
% - 月々のお支払い金額
円
- 借入ご希望金額
※ 月々のお支払例は目安の試算となりますので、実際の金額とは異なる場合がございます。詳しくは店舗までお問合わせください。
- 岐阜市東鶉2丁目
-
名鉄竹鼻・羽島線『西笠松』 車8分(約3.1km)
名鉄竹鼻・羽島線『柳津』 車9分(約4.1km)
岐阜バス『「岐阜保健大学」停』 徒歩2分 (約160m)
オナーズコート東鶉 全2棟 C号地 一戸建て一戸建て | 物件情報
【天井高約3mの開放的な20帖LDK♪】スーパーまで徒歩5分前後と生活に便利◎
\あれこれ不動産サイトを見なくても当店で解決/
当店はエリア内の物件の大半を最・新・情・報で掲載!
ほかのページで気になる物件もご相談ください。
◆鶉小学校/境川中学校
◆バス「岐阜保健大学」停まで徒歩約2分
◆太陽光発電システム搭載オール電化住宅
◆2023年築の未入居戸建◎
◆3帖のマルチスペースやファミリーCL有
※写真をクリックすると、詳細をご覧いただけます。
=========================
《お問合せからすぐご案内!》
見るだけOK、聞くだけOK。
実際に現地を体感してみてください。
=========================
物件の設備
- オール電化
- 公営水道
- 公共下水
- 都市ガス
- 食器洗浄乾燥機
- IHクッキングヒータ
- システムキッチン
- バス1坪以上
- 浴室乾燥機
- トイレ2箇所
- 室内洗濯機置場
- エアコン2基
- 太陽光発電システム
- 省エネ給湯器
- LDK20畳以上
- 2面採光
- 天井高3m以上
- 全室フローリング
- クローゼット
- クローゼット3箇所
- ウォークインクローゼット2箇所
- シューズインクローク
- 南庭
- ウッドデッキ
- 宅配BOX
物件の特徴
- 南向
- 高気密高断熱住宅
- 前道6m以上
- スーパーが近い
- 2階建
- 整形地
- 長期優良住宅
- 建設住宅性能評価付
- 即入居可
物件詳細情報
価格 | 4,880万円 | 間取り | 3LDK+S |
---|---|---|---|
物件種別 | 中古一戸建て | ||
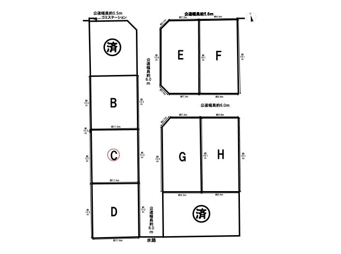
所在地 | 岐阜県岐阜市東鶉2丁目 C号地 | ||
アクセス |
|
||
建物面積 | 119.03㎡ | 駐車場 | あり 普通:2台 |
築年月 | 2023年(令和5年)08月築 | ||
建物構造 | 木造 2階建 | 工法 | |
主要採光 | バルコニー | ||
保証・評価 | 長期優良住宅認定通知書・建設住宅性能評価書(新築時) |
||
リフォーム | |||
土地面積 | 151.28㎡(45.76坪) | 接道 | 東側幅 約6.0m |
私道 | セットバック | ||
地目 | 宅地 | 地勢 | |
権利 | 所有権 |
||
都市計画 | 市街化区域 |
用途地域 | 準工業 |
建ぺい/容積率 | 60% / 200% | 土地国土法 | |
許可番号 | 建築基準法 | ||
法令制限 | |||
小学区 | 鶉小学校 徒歩15分 (約1200m) | 中学区 | 境川中学校 徒歩32分 (約2500m) |
現況 | 空 | 引渡 | 即 |
その他費用 | |||
周辺環境 | 鶉小学校 徒歩17分 (約1350m) 境川中学校 徒歩35分 (約2790m) まどか南幼稚園 徒歩20分 (約1590m) 鶉保育園 徒歩14分 (約1060m) 三心うずら店 徒歩6分 (約450m) V・drug東鶉店 徒歩2分 (約140m) 笠松病院 徒歩10分 (約760m) 天王公園 徒歩13分 (約980m) セブンイレブン 岐阜東うずら店 徒歩2分 (約110m) DCM 岐阜茜部店 徒歩10分 (約740m) |
||
備考 | |||
物件番号 | 4298954 | 取引態様 | 媒介 |
取扱店舗情報
ハウスドゥ 岐阜長良 ファミリアホームサービス株式会社 店舗詳細ページへ
電話番号 | 058-215-8510 |
---|---|
所在地 | 〒502-0803 岐阜県岐阜市上土居1丁目5番2号プラズマビル1階A号室 |
営業時間 | 10:00~18:00 |
定休日 | 第3火曜日、水曜日、年末年始 |
宅建免許番号 | 国土交通大臣(2)第9218号 |
アクセス | 店舗への地図はこちら |
来店ご予約
岐阜県岐阜市で価格が似ている物件はこちら
- 岐阜県
マイページ物件数 - 4,630件
岐阜県中古一戸建て新着物件
-
-
-
- 中古一戸建て
- 548万円
-
多治見市笠原町
-
JR中央本線多治見駅
-
-
-
-
- 中古一戸建て
- 840万円
-
瑞穂市古橋
-
樽見鉄道横屋駅
-
-
-
-
- 中古一戸建て
- 2,053万円
-
多治見市滝呂町12丁目
-
JR中央本線多治見駅
-
-
-
-
- 中古一戸建て
- 1,200万円
-
美濃加茂市西町6丁目
-
長良川鉄道前平公園駅
-
-
-
-
- 中古一戸建て
- 1,380万円
-
各務原市川島河田町
-
岐阜バス松倉公民館
-
-
-
-
- 中古一戸建て
- 1,080万円
-
可児市室原
-
名鉄広見線西可児駅
-
-
-
-
- 中古一戸建て
- 50万円
-
瑞浪市陶町猿爪
-
JR中央本線瑞浪駅
-
- お近くの店舗を探す
-
おすすめ物件
-
-
-
- 中古一戸建て
- 2,970万円
-
可児市桜ケ丘1丁目
-
JR中央本線多治見
-
-
-
-
- 中古一戸建て
- 580万円
-
岐阜市松鴻町1丁目
-
名鉄名古屋本線加納
-
-
-
-
- 中古一戸建て
- 380万円
-
瑞浪市釜戸町
-
JR中央本線釜戸
-
-
-
-
- 中古一戸建て
- 2,390万円
-
可児市坂戸
-
名鉄広見線可児川
-
-
-
-
- 中古一戸建て
- 550万円
-
岐阜市鷺山東1丁目
-
名鉄各務原線名鉄岐阜
-
-
-
-
- 中古一戸建て
- 1,100万円
-
美濃加茂市太田町
-
JR高山本線美濃太田
-
-
-
-
- 中古一戸建て
- 1,480万円
-
大垣市和合本町2丁目
-
樽見鉄道東大垣
-
-
-
-
- 中古一戸建て
- 2,180万円
-
恵那市大井町
-
JR中央本線恵那
-
-
-
-
- 中古一戸建て
- 1,080万円
-
中津川市手賀野
-
JR中央本線中津川
-
-
-
-
- 中古一戸建て
- 98万円
-
瑞浪市稲津町小里
-
JR中央本線瑞浪
-
担当エージェント:袴田 将孝
《気軽にお寄り下さい♪》
店内にキッズスペースも完備♪
お子様連れでも気軽に立ち寄っていただけるお店です。