中央市臼井阿原の中古戸建
掲載情報更新日:2026年04月14日 次回更新予定日:2026年04月28日
- 2,299万円
-
- 借入ご希望金額
万円 - 借入期間
年 - 借入金利
% - 月々のお支払い金額
円
- 借入ご希望金額
※ 月々のお支払例は目安の試算となりますので、実際の金額とは異なる場合がございます。詳しくは店舗までお問合わせください。
- 中央市臼井阿原
-
JR身延線『小井川』 バス乗車13分 田富北小入口 停 徒歩4分 (約320m)
JR身延線『小井川』 車7分(約2.6km)
中央市臼井阿原一戸建て | 物件情報
○リバーサイド分譲地内に建つ「木曽檜の家」!屋根外壁再塗装済み。外壁はALCボードを使用しています♪
ハウスドゥ 甲府昭和通りでは、お客様の住まい探しのお手伝いを致します。
売主様のご都合により、ネット広告の載せられない希少な物件も多数、
自社HP、店舗内にてお客様のご条件に合った物件を全てご紹介させいただきます。
ご条件に合った物件が見つからないお客様、探し始めで物件情報が欲しいお客様、
住宅ローン、住宅購入にかかる諸費用などまた、相続の相談や問題、
リフォーム、建築のご相談など、住宅のことなら全て、親切丁寧にご対応させていただきます!
もちろん見るだけ、聞くだけ全て無料です♪
ハウスドゥ 甲府昭和通り(TEL:055-287-8666)まで、お気軽にご相談、お問い合わせください。
物件の設備
- 上水道
- 公営水道
- 下水道
- 公共下水
- プロパンガス
- 個別プロパン
- 食器洗浄乾燥機
- コンロ三口
- グリル
- バス1坪以上
- 浴室に窓
- トイレ2箇所
- 温水洗浄便座
- 室内洗濯機置場
- 洗髪洗面化粧台
- 洗面所独立
- エアコン2基
- 省エネ給湯器
- LDK20畳以上
- 全居室8畳以上
- 出窓
- 複層ガラス
- フローリング
- ウォークインクローゼット
- 床下収納
- 全居室収納
- バルコニー
- 南面バルコニー
- 庭
物件の特徴
- 南向
- 全室南向
- 前道6m以上
- 緑豊かな住宅地
- 閑静な住宅街
- 周辺交通量少なめ
- 田園風景
- 通風良好
- 陽当り良好
- 2階建
- 開発分譲地内
- 区画整理地内
- 大型タウン内
- 隣接建物距離2m以上
- 瑕疵保証(不動産会社独自)有
物件詳細情報
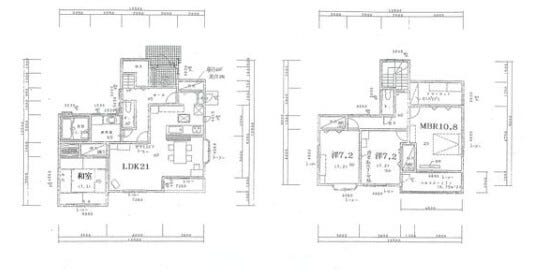
| 価格 | 2,299万円 | 間取り | 4LDK |
|---|---|---|---|
| 物件種別 | 中古一戸建て | ||
| 所在地 | 山梨県中央市臼井阿原 | ||
| アクセス |
|
||
| 建物面積 | 公144.25㎡ | 駐車場 | あり 普通:2台 |
| 築年月 | 2000年(平成12年)10月築 | ||
| 建物構造 | 木造 2階建 | 工法 | |
| 主要採光 | 南向 | バルコニー | 南向6.75㎡ |
| 保証・評価 | 【瑕疵保証(不動産会社独自)】有 |
||
| リフォーム | |||
| 土地面積 | 公227.34㎡(68.77坪) | 接道 | 東側(公道)幅 約6.0m 間口 約14.50m 北側(公道)幅 約6.0m 間口 約11.70m |
| 私道 | セットバック | ||
| 地目 | 宅地 | 地勢 | 平坦 |
| 権利 | 所有権 |
||
| 都市計画 | 市街化区域 |
用途地域 | 1種中高 |
| 建ぺい/容積率 | 50% / 80% | 土地国土法 | |
| 許可番号 | 建築基準法 | ||
| 法令制限 | |||
| 小学区 | 田富北小学校 徒歩9分 (約704m) | 中学区 | 田富中学校 徒歩24分 (約1896m) |
| 現況 | 空 | 引渡 | 相談 |
| その他費用 | |||
| 備考 | 【リフォーム履歴:2020年8月】 外壁/屋根(再塗装済) ◆リバーサイド分譲地内に建つ「木曽檜の家」 ◆外壁はALCボードを使用 ◆主要採光面:南向き ◆ガス会社は売主の指定となります。 ◆11月15日まで現況販売、11月16日以降はリフォーム住宅として販売する予定です。 ◆本物件は条件により住宅ローン減税が適用されます。 ◆瑕疵保証(不動産会社独自)付 |
||
| 物件番号 | 4317322 | 取引態様 | 媒介 |
取扱店舗情報
ハウスドゥ 甲府昭和通り 株式会社ドミール 店舗詳細ページへ
| 電話番号 | 055-287-8666 |
|---|---|
| 所在地 | 〒409-3866 山梨県中巨摩郡昭和町西条4309番1 |
| 営業時間 | 9:00~18:30 |
| 定休日 | 年中無休(年末年始を除く) |
| 宅建免許番号 | 山梨県知事(4)第2284号 |
| アクセス | 店舗への地図はこちら |

来店ご予約
山梨県中央市で価格が似ている物件はこちら
- 山梨県
マイページ物件数 - 1,322件
最近見た物件
-
-

-
- 中古一戸建て
- 2,199万円
-
桑名市筒尾3丁目
-
養老鉄道養老線播磨
-
-
-

-
- 中古一戸建て
- 2,950万円
-
北見市中央三輪3丁目
-
JR石北本線西北見
-
-
-

-
- 土地
- 3,800万円
-
米子市皆生温泉4丁目
-
皆生温泉バス停
-
山梨県中古一戸建て新着物件
- お近くの店舗を探す
-
おすすめ物件
-
-

-
- 中古一戸建て
- 3,469万円
-
甲府市上今井町
-
JR中央本線甲府
-







































担当エージェント:大澤郁翔
ハウスドゥ 甲府昭和通り、エージェントの大澤と申します。
私たちは、お客様に山梨県内の物件をご紹介でき、お客様の条件に合った物件をより多くの物件の中から選んで
頂く為に日々、山梨県内の新築建売住宅、中古建売住宅、マンション、土地などの物件情報の収集活動をしております。
又、売主様のご都合により、ネット広告などに載せられない希少な物件も多数、店舗内にて全てご紹介致します。
不動産購入時にかかる諸費用、住宅ローン、リフォーム、相続の相談など、
今までの経験を活かし様々な解決策をお客様と一緒に考え、ご提案させて頂きます。
お客様に分かりやすく、丁寧に説明し実際に抱えている不動産に関するお悩みなどを
解決させて頂くことが、私共の得意としているところです。
県内の全ての物件の中からお客様のご条件に合った物件をお探しするお手伝いをさせて頂くことを目標に
社員一同日々、活動しております。 是非、お気軽にご相談下さい。 まずは、ご連絡をお待ちしております。
ハウスドゥ 甲府昭和通り 055-287-8666 (大澤宛まで)