筑西市木戸の中古戸建
掲載情報更新日:2025年11月10日 次回更新予定日:2025年11月24日
- 450万円
-
- 借入ご希望金額
万円 - 借入期間
年 - 借入金利
% - 月々のお支払い金額
円
- 借入ご希望金額
※ 月々のお支払例は目安の試算となりますので、実際の金額とは異なる場合がございます。詳しくは店舗までお問合わせください。
- 筑西市木戸
-
関東鉄道常総線『黒子』 徒歩7分 (約560m)
JR水戸線『下館』 車10分(約7.2km)
JR水戸線『玉戸』 車13分(約8.6km)
筑西市木戸一戸建て | 物件情報
広々8Kのお家です。風通し良好!
物件の特徴
- 2階建
物件詳細情報
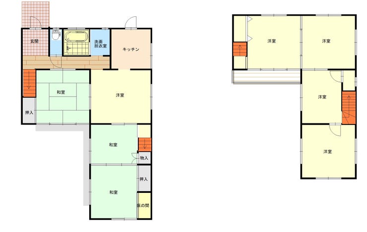
| 価格 | 450万円 | 間取り | 8K |
|---|---|---|---|
| 物件種別 | 中古一戸建て | ||
| 所在地 | 茨城県筑西市木戸 | ||
| アクセス |
|
||
| 建物面積 | 公151.63㎡ | 駐車場 | あり 普通:1台 |
| 築年月 | 1975年(昭和50年)03月築 | ||
| 建物構造 | 木造 2階建 | 工法 | |
| 主要採光 | バルコニー | ||
| 保証・評価 | |||
| リフォーム | |||
| 土地面積 | 公203㎡(61.40坪) | 接道 | |
| 私道 | セットバック | ||
| 地目 | 宅地 | 地勢 | |
| 権利 | 所有権 |
||
| 都市計画 | 市街化区域 |
用途地域 | 1種低層 |
| 建ぺい/容積率 | 40% / 80% | 土地国土法 | |
| 許可番号 | 建築基準法 | ||
| 法令制限 | |||
| 小学区 | 関城東小学校 徒歩22分 (約1730m) | 中学区 | 関城中学校 徒歩38分 (約2990m) |
| 現況 | 空 | 引渡 | 相談 |
| その他費用 | |||
| 周辺環境 | 医療法人 杏仁会 大圃病院 徒歩3分 (約200m) 黒子郵便局 徒歩4分 (約320m) 筑波銀行 関城支店 徒歩5分 (約350m) スーパーツカダ 徒歩6分 (約450m) こばやし歯科医院 徒歩7分 (約560m) セブンイレブン 筑西梶内店 徒歩11分 (約840m) ツルハドラッグ 黒子店 徒歩14分 (約1070m) |
||
| 備考 | |||
| 物件番号 | 4327706 | 取引態様 | 媒介 |
取扱店舗情報
| 電話番号 | 0296-45-5412 |
|---|---|
| 所在地 | 〒308-0041 茨城県筑西市乙964-4 |
| 営業時間 | 10:00~18:00 |
| 定休日 | 水曜日 |
| 宅建免許番号 | 茨城県知事(1)第7627号 |
| アクセス | 店舗への地図はこちら |

来店ご予約
茨城県筑西市で価格が似ている物件はこちら
- 茨城県
マイページ物件数 - 854件
最近見た物件
-
-

-
- 中古マンション
- 1,990万円
-
福岡市東区和白東1丁目
-
JR香椎線和白
-
茨城県中古一戸建て新着物件
- お近くの店舗を探す
-
おすすめ物件
-
-

-
- 中古一戸建て
- 1,980万円
-
筑西市幸町1丁目
-
JR水戸線玉戸
-
-
-

-
- 中古一戸建て
- 850万円
-
結城市大字結城
-
JR水戸線結城
-
-
-

-
- 中古一戸建て
- 2,370万円
-
筑西市幸町3丁目
-
JR水戸線玉戸
-
-
-

-
- 中古一戸建て
- 3,780万円
-
つくば市みどりの中央
-
つくばエクスプレスみどりの
-
-
-

-
- 中古一戸建て
- 990万円
-
筑西市小栗
-
JR水戸線新治
-
-
-

-
- 中古一戸建て
- 590万円
-
つくば市あしび野
-
JR常磐線藤代
-
-
-

-
- 中古一戸建て
- 1,650万円
-
筑西市木戸
-
関東鉄道常総線騰波ノ江
-
-
-

-
- 中古一戸建て
- 3,500万円
-
筑西市門井
-
JR水戸線新治
-
-
-

-
- 中古一戸建て
- 2,880万円
-
つくば市下河原崎万博公園西
-
つくばエクスプレス万博記念公園
-
-
-

-
- 中古一戸建て
- 1,600万円
-
結城市大字結城
-
JR水戸線結城
-
























担当エージェント:関千尋
オール電化で太陽光パネル付きです。日当たりも良好です。