岡山市南区宮浦の中古戸建
掲載情報更新日:2026年04月18日 次回更新予定日:2026年05月02日
- 298万円
-
- 借入ご希望金額
万円 - 借入期間
年 - 借入金利
% - 月々のお支払い金額
円
- 借入ご希望金額
※ 月々のお支払例は目安の試算となりますので、実際の金額とは異なる場合がございます。詳しくは店舗までお問合わせください。
- 岡山市南区宮浦
-
両備バス『宮浦 バス停』 徒歩3分 (約240m)
岡山市南区宮浦一戸建て | 物件情報
最寄りバス停まで徒歩3分!ゆとりの4DK☆懐かしさが暮らしになる!
※築年数不詳※
■平屋で人気の古民家!自分好みのライフスタイルを♪
■宮浦 バス停まで徒歩約3分! 通勤や通学・お出かけにも便利です!
■屋根裏収納付き!季節物や思い出の品もしっかり片付けられます◎
普段使わないものをしっかりと片づけることができ、居住空間はいつでもすっきり♪
■近くに海があり、釣り好きの方は趣味も満喫出来ます!
■甲浦小(徒歩28分)・光南台中(自転車10分)エリア
物件の設備
- 電気
- 公営水道
- 浴室に窓
- 和室
- 屋根裏収納
物件の特徴
- 南側道路面す
物件詳細情報
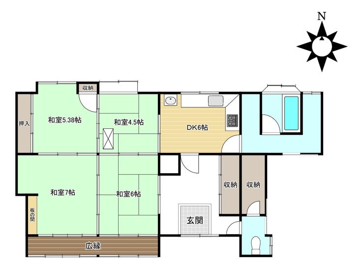
| 価格 | 298万円 | 間取り | 4DK |
|---|---|---|---|
| 物件種別 | 中古一戸建て | ||
| 所在地 | 岡山県岡山市南区宮浦 | ||
| アクセス |
|
||
| 建物面積 | 公125.27㎡ | 駐車場 | なし |
| 築年月 | 完成年月不詳 | ||
| 建物構造 | 木造 1階建 | 工法 | |
| 主要採光 | バルコニー | ||
| 保証・評価 | |||
| リフォーム | |||
| 土地面積 | 公208.26㎡(62.99坪) | 接道 | 北側(公道)幅 約1.5m 東側(公道)幅 約3.3m 南側幅 約1.5m |
| 私道 | セットバック | ||
| 地目 | 宅地 | 地勢 | |
| 権利 | 所有権 |
||
| 都市計画 | 調整区域 |
用途地域 | |
| 建ぺい/容積率 | 60% / 200% | 土地国土法 | |
| 許可番号 | 建築基準法 | ||
| 法令制限 | |||
| 小学区 | 甲浦小学校 徒歩25分 (約2000m) | 中学区 | 光南台中学校 徒歩24分 (約1900m) |
| 現況 | 空 | 引渡 | 相談 |
| その他費用 | |||
| 備考 | ■駐車場なし | ||
| 物件番号 | 4329106 | 取引態様 | 専任媒介 |
取扱店舗情報
ハウスドゥ 岡山南 株式会社インテックスホームズ 店舗詳細ページへ
| 電話番号 | 086-236-7661 |
|---|---|
| 所在地 | 〒701-0221 岡山県岡山市南区藤田652-20 |
| 営業時間 | 9:00~18:00 |
| 定休日 | 水曜日、第2火曜日 |
| 宅建免許番号 | 岡山県知事(2)第5693号 |
| アクセス | 店舗への地図はこちら |

来店ご予約
岡山県岡山市南区で価格が似ている物件はこちら
- 岡山県
マイページ物件数 - 4,663件
岡山県中古一戸建て新着物件
-
-

-
- 中古一戸建て
- 2,080万円
-
総社市井尻野
-
JR伯備線総社駅
-
-
-

-
- 収益
- 700万円
-
倉敷市中島
-
水島臨海鉄道西富井駅
-
-
-

-
- 中古一戸建て
- 3,180万円
-
倉敷市笹沖
-
水島臨海鉄道浦田駅
-
-
-

-
- 中古一戸建て
- 1,680万円
-
倉敷市児島小川7丁目
-
JR本四備讃線児島駅
-
-
-

-
- 中古一戸建て
- 3,490万円
-
倉敷市児島田の口5丁目
-
JR本四備讃線上の町駅
-
-
-

-
- 中古一戸建て
- 98万円
-
岡山市中区赤坂台
-
岡山電軌東山本線門田屋敷駅
-
-
-

-
- 中古一戸建て
- 798万円
-
倉敷市連島町連島
-
水島臨海鉄道浦田駅
-
- お近くの店舗を探す
-
おすすめ物件
-
-

-
- 中古一戸建て
- 4,680万円
-
総社市中央1丁目
-
JR伯備線総社
-
-
-

-
- 中古一戸建て
- 2,620万円
-
岡山市北区中撫川
-
JR山陽本線庭瀬
-
-
-

-
- 中古一戸建て
- 2,650万円
-
倉敷市白楽町
-
JR山陽本線倉敷
-
-
-

-
- 中古一戸建て
- 100万円
-
岡山市北区建部町福渡
-
JR津山線福渡
-
-
-

-
- 中古一戸建て
- 2,600万円
-
岡山市北区今保
-
JR山陽本線北長瀬
-
-
-

-
- 中古一戸建て
- 1,099万円
-
津山市中村
-
JR因美線高野
-
-
-

-
- 中古一戸建て
- 1,980万円
-
倉敷市児島通生
-
JR本四備讃線児島
-
-
-

-
- 中古一戸建て
- 3,900万円
-
倉敷市羽島
-
JR山陽本線倉敷
-
-
-

-
- 中古一戸建て
- 590万円
-
総社市秦
-
JR伯備線総社
-
-
-

-
- 中古一戸建て
- 3,500万円
-
倉敷市玉島乙島
-
JR山陽本線新倉敷
-
















ハウスドゥ 岡山南は
《リノベーション事業部》を併設しております!
不動産+リノベーションでお客様の夢を叶えませんか♪