枚方市藤阪北町の中古戸建
掲載情報更新日:2026年03月19日 次回更新予定日:2026年04月02日
- 690万円
-
- 借入ご希望金額
万円 - 借入期間
年 - 借入金利
% - 月々のお支払い金額
円
- 借入ご希望金額
※ 月々のお支払例は目安の試算となりますので、実際の金額とは異なる場合がございます。詳しくは店舗までお問合わせください。
- 枚方市藤阪北町
-
JR片町線『藤阪』 徒歩13分 (約1040m)
JR片町線『長尾』 徒歩14分 (約1120m)
京阪本線『枚方市』 車20分(約km)
枚方市藤阪北町一戸建て | 物件情報
◆緑豊かな閑静な住宅地は子育て家族にぴったり ■雨風から大切な愛車を守るビルトインガレージ
◇─◇─◇─◇担当者着目ポイント◇─◇─◇─◇
◆すぐ横になれる和室は、みんながほっと一息つける空間
■車好きのパパも嬉しい車庫付邸宅
◆季節の移ろいを身近に感じる、自然豊かな閑静な住宅地
JR片町線/藤阪駅 徒歩13分
JR片町線/長尾 徒歩14分
菅原小学校 徒歩7分
長尾中学校 徒歩25分
◇─◇─◇─◇周辺環境◇─◇─◇─◇
・業務スーパー TAKENOKO 長尾店 徒歩8分 620m
・フレスコ藤阪店 徒歩9分 720m
・枚方藤阪郵便局 徒歩11分 840m
・ファミリーマート 枚方藤阪元町店 徒歩11分 820m
・医療法人奥田内科医院 徒歩9分 550m
・菅原保育所 徒歩6分 400m
物件の設備
- 電気
- 公営水道
- 公共下水
- 都市ガス
- バス
- トイレ
- 室外洗濯機置場
- 洗面所独立
- 和室
- 全居室6畳以上
- シューズボックス
- 南庭
- サンルーム
- シャッター車庫
物件の特徴
- 小学校徒歩10分以内
- 緑豊かな住宅地
- スーパーが近い
- 周辺交通量少なめ
- 市街地が近い
- 都市近郊
- 通風良好
- 2階建
物件詳細情報
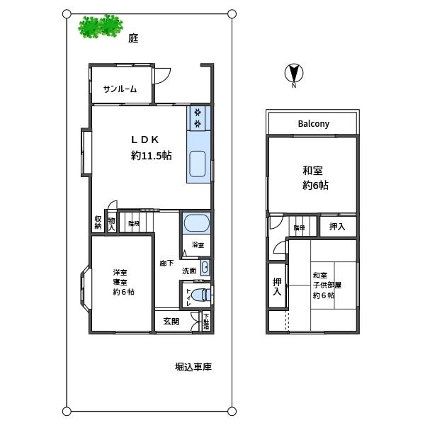
| 価格 | 690万円 | 間取り | 3LDK |
|---|---|---|---|
| 物件種別 | 中古一戸建て | ||
| 所在地 | 大阪府枚方市藤阪北町 | ||
| アクセス |
|
||
| 建物面積 | 公67.44㎡ | 駐車場 | あり |
| 築年月 | 1973年(昭和48年)05月築 | ||
| 建物構造 | 木造 2階建 | 工法 | |
| 主要採光 | 北向 | バルコニー | |
| 保証・評価 | |||
| リフォーム | |||
| 土地面積 | 公102.99㎡(31.15坪) | 接道 | 北側(公道)幅 約5.7m 間口 約6.51m |
| 私道 | セットバック | 無 | |
| 地目 | 宅地 | 地勢 | |
| 権利 | 所有権 |
||
| 都市計画 | 市街化区域 |
用途地域 | 1種中高 |
| 建ぺい/容積率 | 60% / 200% | 土地国土法 | |
| 許可番号 | 建築基準法 | ||
| 法令制限 | 高度地区・景観法・宅地造成工事規制区域・準防火地域 | ||
| 小学区 | 菅原小学校 徒歩7分 (約510m) | 中学区 | 長尾中学校 徒歩25分 (約1960m) |
| 現況 | 空 | 引渡 | 相談 |
| その他費用 | |||
| 周辺環境 | 業務スーパー TAKENOKO 長尾店 徒歩8分 (約620m) フレスコ藤阪店 徒歩9分 (約720m) 西松屋 枚方長尾店 徒歩10分 (約800m) 枚方藤阪郵便局 徒歩11分 (約840m) ファミリーマート 枚方藤阪元町店 徒歩11分 (約820m) 池田泉州銀行 枚方北支店 徒歩12分 (約940m) 関西みらい銀行 長尾支店 徒歩14分 (約1080m) ファミリーマート JR長尾駅前店 徒歩15分 (約1130m) フレスコ 長尾店 徒歩15分 (約1150m) JR長尾駅 徒歩15分 (約1160m) |
||
| 備考 | |||
| 物件番号 | 4332512 | 取引態様 | 媒介 |
取扱店舗情報
ハウスドゥ 枚方中宮 株式会社ku-Design 店舗詳細ページへ
| 電話番号 | 072-845-5585 |
|---|---|
| 所在地 | 〒573-1196 大阪府枚方市中宮本町11-12 |
| 営業時間 | 9:30~18:00 |
| 定休日 | 火曜日・水曜日 ※事前予約によりご対応可能 |
| 宅建免許番号 | 大阪府知事(1)第63778号 |
| アクセス | 店舗への地図はこちら |

来店ご予約
大阪府枚方市で価格が似ている物件はこちら
- 大阪府
マイページ物件数 - 18,088件
最近見た物件
-
-

-
- 土地
- 2,515.59万円
-
刈谷市西境町森
-
名鉄名古屋本線富士松
-
-
-

-
- 中古一戸建て
- 2,700万円
-
大阪市西区千代崎1丁目
-
大阪市中央線九条
-
-
-

-
- 新築一戸建て
- 2,480万円
-
加茂郡富加町羽生
-
長良川鉄道富加
-
大阪府中古一戸建て新着物件
-
-

-
- 中古一戸建て
- 3,300万円
-
泉南郡熊取町五門東4丁目
-
JR阪和線熊取駅
-
-
-

-
- 中古一戸建て
- 880万円
-
泉南郡熊取町大宮3丁目
-
JR阪和線熊取駅
-
-
-

-
- 中古一戸建て
- 1,680万円
-
大阪市城東区成育5丁目
-
大阪市今里筋線関目成育駅
-
-
-

-
- 中古一戸建て
- 3,490万円
-
大阪市東淀川区大桐5丁目
-
大阪市今里筋線瑞光四丁目駅
-
-
-

-
- 中古一戸建て
- 880万円
-
堺市東区日置荘西町7丁
-
南海電鉄高野線初芝駅
-
-
-

-
- 中古一戸建て
- 2,580万円
-
岸和田市畑町3丁目
-
JR阪和線東岸和田駅
-
-
-

-
- 中古一戸建て
- 2,280万円
-
岸和田市摩湯町
-
南海電鉄泉北線和泉中央駅
-
- お近くの店舗を探す
-
おすすめ物件
-
-

-
- 中古一戸建て
- 2,780万円
-
泉大津市豊中町3丁目
-
JR阪和線和泉府中
-
-
-

-
- 中古一戸建て
- 3,680万円
-
大阪市東住吉区東田辺1丁目
-
大阪市谷町線駒川中野
-
-
-

-
- 中古一戸建て
- 480万円
-
河内長野市末広町
-
南海電鉄高野線河内長野
-
-
-

-
- 中古一戸建て
- 999万円
-
高槻市津之江北町
-
JR東海道線高槻
-
-
-

-
- 中古一戸建て
- 3,680万円
-
八尾市相生町1丁目
-
JR関西本線八尾
-
-
-

-
- 中古一戸建て
- 1,650万円
-
和泉市黒鳥町2丁目
-
JR阪和線和泉府中
-
-
-

-
- 中古一戸建て
- 2,480万円
-
高槻市緑が丘2丁目
-
JR東海道線高槻
-
-
-

-
- 中古一戸建て
- 3,680万円
-
高槻市芝生町2丁目
-
JR東海道線摂津富田
-
-
-

-
- 中古一戸建て
- 1,350万円
-
泉南市樽井2丁目
-
南海電鉄本線樽井
-
-
-

-
- 中古一戸建て
- 2,490万円
-
八尾市南本町7丁目
-
JR関西本線八尾
-



【当日予約も大歓迎】弊社は毎日新物件の情報を入荷しています。 水面下物件も多数!いつ来ても新情報がいっぱいです! 是非『0120-395-585』までお問合せ下さい!