清田10条3丁目 中古戸建
掲載情報更新日:2026年03月23日 次回更新予定日:2026年04月06日
- 2,780万円
-
- 借入ご希望金額
万円 - 借入期間
年 - 借入金利
% - 月々のお支払い金額
円
- 借入ご希望金額
※ 月々のお支払例は目安の試算となりますので、実際の金額とは異なる場合がございます。詳しくは店舗までお問合わせください。
- 札幌市清田区清田十条3丁目
-
札幌市東豊線『福住』 バス乗車22分 中央バス ヒルズガーデン西 停 徒歩2分 (約160m)
清田10条3丁目 中古戸建一戸建て | 物件情報
■令和6年11月リフォーム済!スウェーデンハウス施工、収納豊富な4LDK+Sの戸建■
■敷地■
○敷地面積は広々248.40㎡(約75.14坪)
○南側に広々としたお庭あり
○敷地内に2台以上駐車可能(カースペース)※車種によります
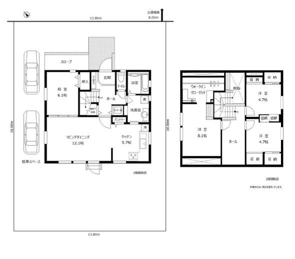
■間取■
○LDKは三面採光で陽当たり良好
○全居室(WICあり)、階段下、パントリーがあり収納スペース豊富
■リフォーム内容■
・外壁、屋根塗装
・全室クロス張替
・灯油ボイラー設置
・洗面化粧台交換
■周辺環境充実■
○東光ストア:車5分
○ツルハドラッグ:車6分
○ロピア:車6分
○緑豊かで自然を多く感じられる立地。
物件の設備
- 電気
- 上水道
- 下水道
- IHクッキングヒータ
- システムキッチン
- 独立キッチン
- ユニットバス
- 追焚機能
- 浴室に窓
- 温水洗浄便座
- タンクレストイレ
- 室内洗濯機置場
- 洗髪洗面化粧台
- セントラルヒーティング
- エアコン
- モニタ付インターホン
- LDK15畳以上
- 和室
- フローリング
- クローゼット
- ウォークインクローゼット
- 全居室収納
- シューズインクローク
- 庭
- 南庭
物件の特徴
- 前道6m以上
- 緑豊かな住宅地
- 閑静な住宅街
- 通風良好
- 陽当り良好
- 2階建
- 整形地
物件詳細情報
| 価格 | 2,780万円 | 間取り | 4LDK+S |
|---|---|---|---|
| 物件種別 | 中古一戸建て | ||
| 所在地 | 北海道札幌市清田区清田十条3丁目9-5 | ||
| アクセス |
|
||
| 建物面積 | 公116.67㎡ | 駐車場 | あり 普通:2台 |
| 築年月 | 2006年(平成18年)02月築 | ||
| 建物構造 | 木造 2階建 | 工法 | |
| 主要採光 | 南西向 | バルコニー | |
| 保証・評価 | |||
| リフォーム | |||
| 土地面積 | 公248.4㎡(75.14坪) | 接道 | 北東側(公道)幅 約8.0m 間口 約13.80m |
| 私道 | セットバック | ||
| 地目 | 宅地 | 地勢 | |
| 権利 | 所有権 |
||
| 都市計画 | 市街化区域 |
用途地域 | 1種低層 |
| 建ぺい/容積率 | 40% / 80% | 土地国土法 | |
| 許可番号 | 建築基準法 | ||
| 法令制限 | |||
| 小学区 | 清田緑小学校 徒歩18分 (約1400m) | 中学区 | 清田中学校 徒歩30分 (約2400m) |
| 現況 | 空 | 引渡 | 相談 |
| その他費用 | |||
| 備考 | |||
| 物件番号 | 4341158 | 取引態様 | 媒介 |
取扱店舗情報
ハウスドゥ 電車通り 北王ホールディングス株式会社 店舗詳細ページへ
| 電話番号 | 011-215-0790 |
|---|---|
| 所在地 | 〒064-0809 北海道札幌市中央区南九条西15丁目2-2 F・HOUSE 1F |
| 営業時間 | 9:00~18:00 |
| 定休日 | 火曜日・水曜日・祝日 |
| 宅建免許番号 | 北海道知事 十勝(3)第721号 |
| アクセス | 店舗への地図はこちら |

来店ご予約
- 北海道
マイページ物件数 - 6,490件
最近見た物件
-
-

-
- 中古マンション
- 2,580万円
-
名古屋市熱田区南一番町
-
名古屋市名港線東海通
-
-
-

-
- 中古一戸建て
- 1,780万円
-
鈴鹿市中旭が丘1丁目
-
伊勢鉄道玉垣
-
-
-

-
- 土地
- 1,450万円
-
豊橋市曲尺手町
-
豊橋鉄道東田本線豊橋公園前
-
北海道中古一戸建て新着物件
-
-

-
- 中古一戸建て
- 550万円
-
上川郡新得町五条南2丁目
-
JR根室本線新得駅
-
-
-

-
- 中古一戸建て
- 550万円
-
上川郡新得町五条南2丁目
-
JR根室本線新得駅
-
-
-

-
- 中古一戸建て
- 2,900万円
-
札幌市北区南あいの里4丁目
-
JR札沼線あいの里教育大駅
-
-
-

-
- 中古一戸建て
- 2,900万円
-
札幌市北区南あいの里4丁目
-
JR札沼線あいの里教育大駅
-
-
-

-
- 中古一戸建て
- 700万円
-
白老郡白老町東町3丁目
-
JR室蘭本線白老駅
-
-
-

-
- 中古一戸建て
- 2,400万円
-
北見市清見町
-
JR石北本線北見駅
-
-
-

-
- 中古一戸建て
- 3,280万円
-
恵庭市美咲野3丁目
-
エコバス川沿大通
-
- お近くの店舗を探す
-
おすすめ物件
-
-

-
- 中古一戸建て
- 4,380万円
-
札幌市北区新琴似八条11丁目
-
JR札沼線新琴似
-
-
-

-
- 中古一戸建て
- 760万円
-
岩見沢市北四条西13丁目
-
JR函館本線岩見沢
-
-
-

-
- 中古一戸建て
- 3,180万円
-
札幌市北区太平十条6丁目
-
JR札沼線百合が原
-
-
-

-
- 中古一戸建て
- 2,700万円
-
北広島市広葉町2丁目
-
JR千歳線北広島
-
-
-

-
- 中古一戸建て
- 2,380万円
-
伊達市舟岡町
-
JR室蘭本線北舟岡
-
-
-

-
- 中古一戸建て
- 2,700万円
-
伊達市鹿島町
-
JR室蘭本線伊達紋別
-
-
-

-
- 中古一戸建て
- 880万円
-
伊達市旭町
-
JR室蘭本線伊達紋別
-
-
-

-
- 中古一戸建て
- 1,580万円
-
札幌市東区中沼西四条1丁目
-
札幌市東豊線新道東
-
-
-

-
- 中古一戸建て
- 2,849万円
-
釧路市桜ケ岡6丁目
-
JR根室本線武佐
-
-
-

-
- 中古一戸建て
- 2,180万円
-
札幌市東区東苗穂八条1丁目
-
札幌市東豊線栄町
-






















担当エージェント:佐々木 洋
■木の温もりを感じられる4LDK+S(WIC)の戸建です。ご質問等があれば、お気軽にお問い合わせください!
■TEL:011-215-0790■