中頭郡北谷町北谷2丁目の中古戸建
掲載情報更新日:2026年04月06日 次回更新予定日:2026年04月20日
- 1億5,000万円
-
- 借入ご希望金額
万円 - 借入期間
年 - 借入金利
% - 月々のお支払い金額
円
- 借入ご希望金額
※ 月々のお支払例は目安の試算となりますので、実際の金額とは異なる場合がございます。詳しくは店舗までお問合わせください。
- 中頭郡北谷町北谷2丁目
-
バス停『北谷二丁目』 徒歩3分 (約240m)
中頭郡北谷町北谷2丁目一戸建て | 物件情報
広々とした高天井のリビング約30畳♪ジャグジー付の浴室♪海近の好立地でリゾート沖縄が満喫できます♪
アラハビーチ徒歩5分、ハンビータウン徒歩6分、美浜アメリカンビレッジも車で6分♪
沖縄県南部の不動産はハウスドゥ 南風原へまるごとおまかせ!!どうぞお気軽にお問合せください☆
物件の設備
- 電気
- 上水道
- コンロ三口
- カウンターキッチン
- システムキッチン
- バス
- ユニットバス
- 浴室に窓
- トイレ
- トイレ2箇所
- 温水洗浄便座
- 室内洗濯機置場
- 洗髪洗面化粧台
- 洗面所独立
- LDK20畳以上
- 和室8畳以上
- 全居室6畳以上
- フローリング
- クローゼット
- ウォークインクローゼット
- 全居室収納
- シューズボックス
- ワイドバルコニー
- 庭
物件の特徴
- 海に近い
- 閑静な住宅街
- 陽当り良好
- 2階建
- 平坦地
物件詳細情報
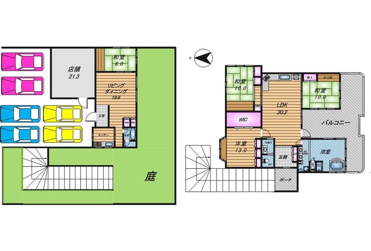
| 価格 | 1億5,000万円 | 間取り | 3LDK |
|---|---|---|---|
| 物件種別 | 中古一戸建て | ||
| 所在地 | 沖縄県中頭郡北谷町北谷2丁目4-2 | ||
| アクセス |
|
||
| 建物面積 | 280.05㎡ | 駐車場 | あり 普通:6台 |
| 築年月 | 1993年(平成5年)12月築 | ||
| 建物構造 | RC 2階建 | 工法 | |
| 主要採光 | バルコニー | ||
| 保証・評価 | |||
| リフォーム | |||
| 土地面積 | 424.92㎡(128.53坪) | 接道 | |
| 私道 | セットバック | ||
| 地目 | 宅地 | 地勢 | |
| 権利 | 所有権 |
||
| 都市計画 | 市街化区域 |
用途地域 | 1種中高 |
| 建ぺい/容積率 | 60% / 200% | 土地国土法 | |
| 許可番号 | 建築基準法 | ||
| 法令制限 | |||
| 小学区 | 北玉小学校 徒歩23分 (約1840m) | 中学区 | 桑江中学校 徒歩10分 (約800m) |
| 現況 | 空 | 引渡 | 相談 |
| その他費用 | |||
| 備考 | 人気の北谷町北谷の中古戸建て★★アラハビーチ徒歩5分、ハンビータウン徒歩6分、美浜アメリカンビレッジも車で6分♪約30畳のリビングは高天井で広々としています!ジャグジー付の浴室♪洋風のキッチン♪海近の好立地でリゾート沖縄が満喫できます♪♪ ◇周辺環境◇ 北玉小学校まで徒歩約23分(距離1800m) 桑江中学校 まで徒歩約10分(距離800m) ローソン アラハビーチ前店まで徒歩約9分(距離650m) バス停(北谷二丁目)まで徒歩約3分(距離220m) アラハビーチまで徒歩約7分(550m) サンエー ハンビータウンまで車で約3分(距離650m) アメリカンビレッジ まで車で約5分(距離1.3km) マクドナルド 北谷店まで徒歩約3分(距離230m) びっくりドンキー 北谷店まで徒歩約3分(距離180m) |
||
| 物件番号 | 4342265 | 取引態様 | 媒介 |
取扱店舗情報
ハウスドゥ 南風原 株式会社R-JAPAN 店舗詳細ページへ
| 電話番号 | 098-940-6565 |
|---|---|
| 所在地 | 〒901-1117 沖縄県島尻郡南風原町津嘉山1345-2 |
| 営業時間 | 10:00~19:00 |
| 定休日 | 水曜日 |
| 宅建免許番号 | 国土交通大臣(2)第9251号 |
| アクセス | 店舗への地図はこちら |

来店ご予約
沖縄県中頭郡北谷町で価格が似ている物件はこちら
- 沖縄県
マイページ物件数 - 3,254件
最近見た物件
沖縄県中古一戸建て新着物件
-
-

-
- 中古一戸建て
- 6,980万円
-
沖縄市美原4丁目
-
江洲
-
-
-

-
- 中古一戸建て
- 4,950万円
-
名護市宇茂佐の森3丁目
-
第三宇茂佐バス停
-
-
-

-
- 中古一戸建て
- 6,980万円
-
沖縄市美原4丁目
-
江洲
-
-
-

-
- 中古一戸建て
- 3,920万円
-
那覇市首里当蔵町2丁目
-
沖縄都市モノレール首里駅
-
-
-

-
- 中古一戸建て
- 6,500万円
-
那覇市首里石嶺町4丁目
-
沖縄都市モノレール石嶺駅
-
-
-

-
- 中古一戸建て
- 1,980万円
-
沖縄市安慶田5丁目
-
照屋入口
-
-
-

-
- 中古一戸建て
- 1,990万円
-
宜野湾市愛知3丁目
-
バス停翁長
-
- お近くの店舗を探す
-
おすすめ物件
-
-

-
- 中古一戸建て
- 3,780万円
-
うるま市与那城屋慶名
-
バス停西屋慶名
-
-
-

-
- 中古一戸建て
- 1億500万円
-
那覇市松尾1丁目
-
沖縄都市モノレール県庁前
-
-
-

-
- 中古一戸建て
- 2,800万円
-
うるま市石川曙2丁目
-
石川入口
-
-
-

-
- 中古一戸建て
- 3,480万円
-
浦添市安波茶3丁目
-
沖縄都市モノレール浦添前田
-
-
-

-
- 中古一戸建て
- 6,980万円
-
豊見城市字豊崎
-
バス停豊崎入口
-
-
-

-
- 中古一戸建て
- 4,398万円
-
糸満市潮崎町4丁目
-
沖縄都市モノレール赤嶺
-
-
-

-
- 中古一戸建て
- 2,798万円
-
中頭郡中城村字津覇
-
津覇バス停
-
-
-

-
- 中古一戸建て
- 3,980万円
-
国頭郡恩納村字名嘉真
-
伊良部希望ケ丘入口
-
-
-

-
- 中古一戸建て
- 2,800万円
-
うるま市石川曙2丁目
-
バス石川入口
-
-
-

-
- 中古一戸建て
- 6,140万円
-
豊見城市字豊崎
-
光洋小学校入口
-




































担当エージェント:林 誉
沖縄生まれ沖縄育ち!!毎日楽しく明るくをモットーにしています。 皆さまと楽しく物件探しが出来るよう頑張りますので宜しくお願い致します。
★★ハウスドゥ 南風原のHPから『マイページ登録』して頂くと日々更新される、HPでは一般公開されていない新着物件をいち早くご覧いただけます!登録は無料!是非ご活用くださいませ♪★★https://haebaru-housedo.com/
\購入相談会随時同時開催中/
◆住宅ローン
借入限度額や自分に合った支払い額を知りたい方
お家探しの前に資金計画を立てたい方、住替えをお考えの方
一度ご相談ください。専門スタッフがわかりやすくご説明します!!
◆ご家族お揃いでお気軽にお越しください♪
キッズスペース・店舗横に駐車場完備♪
お子様連れのお客様も安心して、物件探しをご相談頂けます♪
◆お客様のご要望に応じた物件をまとめてご案内する物件ツアーも開催しております。