真岡市大谷台町の中古戸建
掲載情報更新日:2026年04月25日 次回更新予定日:2026年05月09日
- 1,749万円
-
- 借入ご希望金額
万円 - 借入期間
年 - 借入金利
% - 月々のお支払い金額
円
- 借入ご希望金額
※ 月々のお支払例は目安の試算となりますので、実際の金額とは異なる場合がございます。詳しくは店舗までお問合わせください。
- 真岡市大谷台町
-
真岡鉄道『真岡』 徒歩23分 (約1840m)
真岡市大谷台町一戸建て | 物件情報
物件の特徴
- 2階建
物件詳細情報
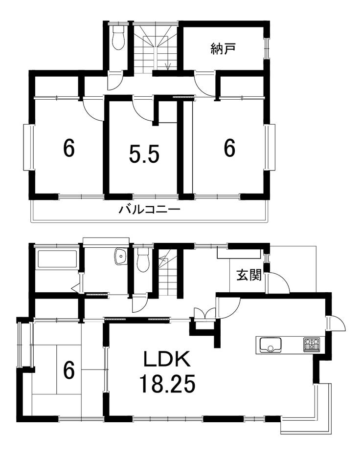
| 価格 | 1,749万円 | 間取り | 4LK+S |
|---|---|---|---|
| 物件種別 | 中古一戸建て | ||
| 所在地 | 栃木県真岡市大谷台町53-7 | ||
| アクセス |
|
||
| 建物面積 | 公108.06㎡ | 駐車場 | あり |
| 築年月 | 1985年(昭和60年)08月築 | ||
| 建物構造 | 木造 2階建 | 工法 | |
| 主要採光 | バルコニー | ||
| 保証・評価 | |||
| リフォーム | |||
| 土地面積 | 公235.59㎡(71.26坪) | 接道 | 北側(公道)幅 約4.0m 東側(公道)幅 約5.2m |
| 私道 | セットバック | ||
| 地目 | 宅地 | 地勢 | |
| 権利 | 所有権 |
||
| 都市計画 | 市街化区域 |
用途地域 | 1種中高 |
| 建ぺい/容積率 | 60% / 200% | 土地国土法 | |
| 許可番号 | 建築基準法 | ||
| 法令制限 | |||
| 小学区 | 真岡西小学校 徒歩12分 (約900m) | 中学区 | 真岡中学校 徒歩28分 (約2200m) |
| 現況 | 空 | 引渡 | 相談 |
| その他費用 | |||
| 備考 | |||
| 物件番号 | 4345064 | 取引態様 | 媒介 |
取扱店舗情報
ハウスドゥ 自治医大駅前 有限会社日下田材木店 店舗詳細ページへ
| 電話番号 | 0285-37-6076 |
|---|---|
| 所在地 | 〒329-0434 栃木県下野市祇園1丁目25-2 |
| 営業時間 | 10:00~18:00 |
| 定休日 | 水曜日 |
| 宅建免許番号 | 栃木県知事(2)第5135号 |
| アクセス | 店舗への地図はこちら |

来店ご予約
栃木県真岡市で価格が似ている物件はこちら
- 栃木県
マイページ物件数 - 5,271件
最近見た物件
-
-

-
- 新築一戸建て
- 2,977万円
-
名古屋市港区東茶屋1丁目
-
名古屋臨海高速鉄道港北
-
-
-

-
- 土地
- 936万円
-
香南市香我美町下分
-
土佐くろしお鉄道ごめん・なはり線あかおか
-
-
-

-
- 中古一戸建て
- 980万円
-
堺市西区北条町1丁
-
JR阪和線上野芝
-
栃木県中古一戸建て新着物件
-
-

-
- 中古一戸建て
- 1,500万円
-
宇都宮市宝木町2丁目
-
東武宇都宮線東武宇都宮駅
-
-
-

-
- 中古一戸建て
- 480万円
-
宇都宮市板戸町
-
JR東北本線岡本駅
-
-
-

-
- 中古一戸建て
- 480万円
-
宇都宮市板戸町
-
JR東北本線岡本駅
-
-
-

-
- 中古一戸建て
- 1,880万円
-
宇都宮市清原台6丁目
-
宇都宮芳賀ライト線清原地区市民センター前駅
-
-
-

-
- 中古一戸建て
- 480万円
-
宇都宮市叶谷町
-
JR東北本線氏家駅
-
-
-

-
- 中古一戸建て
- 4,250万円
-
宇都宮市宿郷3丁目
-
湘南新宿ライン宇須宇都宮駅
-
-
-

-
- 中古一戸建て
- 2,099万円
-
栃木市沼和田町
-
JR両毛線栃木駅
-
- お近くの店舗を探す
-
おすすめ物件
-
-

-
- 中古一戸建て
- 990万円
-
宇都宮市氷室町
-
清原さきがけ号【光ケ丘公民館前】
-
-
-

-
- 中古一戸建て
- 3,250万円
-
宇都宮市簗瀬町
-
JR東北新幹線宇都宮
-
-
-

-
- 中古一戸建て
- 6,280万円
-
宇都宮市山本3丁目
-
関東バス【青葉台】
-
-
-

-
- 中古一戸建て
- 2,780万円
-
芳賀郡益子町大字七井
-
真岡鉄道多田羅
-
-
-

-
- 中古一戸建て
- 3,080万円
-
塩谷郡高根沢町大字平田
-
JR烏山線仁井田
-
-
-

-
- 中古一戸建て
- 1,798万円
-
宇都宮市鶴田町
-
JR日光線鶴田
-
-
-

-
- 中古一戸建て
- 2,580万円
-
宇都宮市清原台6丁目
-
宇都宮芳賀ライト線ゆいの杜西
-
-
-

-
- 中古一戸建て
- 4,600万円
-
宇都宮市豊郷台3丁目
-
JR東北本線宇都宮
-
-
-

-
- 中古一戸建て
- 1,980万円
-
宇都宮市下平出町
-
宇都宮芳賀ライト線平石中央小学校前
-
-
-

-
- 中古一戸建て
- 720万円
-
下都賀郡壬生町落合1丁目
-
東武宇都宮線国谷
-








