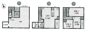
中古戸建
掲載情報更新日:2026年04月21日 次回更新予定日:2026年05月05日
- 2,680万円
-
- 借入ご希望金額
万円 - 借入期間
年 - 借入金利
% - 月々のお支払い金額
円
- 借入ご希望金額
※ 月々のお支払例は目安の試算となりますので、実際の金額とは異なる場合がございます。詳しくは店舗までお問合わせください。
- 大阪市住之江区安立3丁目
-
南海電鉄本線『住ノ江』 徒歩7分 (約560m)
南海電鉄高野線『我孫子前』 徒歩13分 (約1040m)
JR阪和線『我孫子町』 徒歩26分 (約2080m)
中古戸建一戸建て | 物件環境・地図
※表示されている地図は周辺環境を示すものであり、実際の物件所在地とは異なる場合がございます。
詳細は必ず店舗までお問い合わせください。
物件周辺環境
大阪府大阪市住之江区で価格が似ている物件はこちら
- 大阪府
マイページ物件数 - 18,272件
最近見た物件
-
-

-
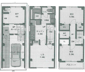
- 中古一戸建て
- 4,500万円
-
姫路市保城
-
JR播但線野里
-
-
-

-
- 新築一戸建て
- 3,680万円
-
名古屋市中村区横井2丁目
-
名古屋市東山線八田
-
-
-

-
- 中古一戸建て
- 1,600万円
-
甲府市川田町
-
JR中央本線石和温泉
-
大阪府中古一戸建て新着物件
- お近くの店舗を探す
-
おすすめ物件
-
-

-
- 中古一戸建て
- 2,780万円
-
大阪市住吉区山之内4丁目
-
JR阪和線杉本町
-
-
-

-
- 中古一戸建て
- 3,680万円
-
八尾市相生町1丁目
-
JR関西本線八尾
-
-
-

-
- 中古一戸建て
- 4,680万円
-
大阪市住吉区遠里小野6丁目
-
南海電鉄高野線我孫子前
-
-
-

-
- 中古一戸建て
- 1,680万円
-
高槻市緑が丘1丁目
-
JR東海道線高槻
-
-
-

-
- 中古一戸建て
- 1,780万円
-
堺市中区伏尾
-
南海電鉄泉北線泉ケ丘
-
-
-

-
- 中古一戸建て
- 2,300万円
-
東大阪市稲田本町1丁目
-
JR片町線徳庵
-
-
-

-
- 中古一戸建て
- 2,480万円
-
高槻市大塚町4丁目
-
阪急電鉄京都線高槻市
-
-
-

-
- 中古一戸建て
- 690万円
-
泉佐野市日根野
-
JR阪和線日根野
-
-
-

-
- 中古一戸建て
- 1,180万円
-
門真市江端町
-
JR片町線住道
-
-
-

-
- 中古一戸建て
- 1,490万円
-
高槻市八幡町
-
阪急電鉄京都線高槻市
-









