真岡市八木岡の中古戸建
掲載情報更新日:2025年10月27日 次回更新予定日:2025年11月10日
- 999万円
-
- 借入ご希望金額
万円 - 借入期間
年 - 借入金利
% - 月々のお支払い金額
円
- 借入ご希望金額
※ 月々のお支払例は目安の試算となりますので、実際の金額とは異なる場合がございます。詳しくは店舗までお問合わせください。
- 真岡市八木岡
-
真岡鉄道『真岡』 徒歩27分 (約2160m)
真岡市八木岡一戸建て | 物件情報
物件の特徴
- 前道6m以上
- 南側道路面す
- 2階建
物件詳細情報
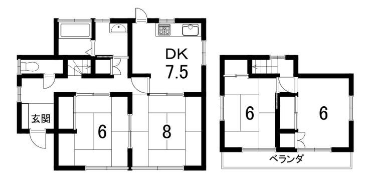
| 価格 | 999万円 | 間取り | 4DK |
|---|---|---|---|
| 物件種別 | 中古一戸建て | ||
| 所在地 | 栃木県真岡市八木岡 | ||
| アクセス |
|
||
| 建物面積 | 公86.1㎡ | 駐車場 | あり |
| 築年月 | 1984年(昭和59年)08月築 | ||
| 建物構造 | 木造 2階建 | 工法 | |
| 主要採光 | バルコニー | ||
| 保証・評価 | |||
| リフォーム | |||
| 土地面積 | 公226.43㎡(68.49坪) | 接道 | 南側(公道)幅 約6.0m |
| 私道 | セットバック | ||
| 地目 | 宅地 | 地勢 | |
| 権利 | 所有権 |
||
| 都市計画 | 市街化区域 |
用途地域 | 1種低層 |
| 建ぺい/容積率 | 30% / 50% | 土地国土法 | |
| 許可番号 | 建築基準法 | ||
| 法令制限 | |||
| 小学区 | 真岡西小学校 徒歩17分 (約1300m) | 中学区 | 真岡中学校 徒歩24分 (約1885m) |
| 現況 | 空 | 引渡 | 相談 |
| その他費用 | |||
| 備考 | |||
| 物件番号 | 4359258 | 取引態様 | 媒介 |
取扱店舗情報
ハウスドゥ 自治医大駅前 有限会社日下田材木店 店舗詳細ページへ
| 電話番号 | 0285-37-6076 |
|---|---|
| 所在地 | 〒329-0434 栃木県下野市祇園1丁目25-2 |
| 営業時間 | 10:00~18:00 |
| 定休日 | 水曜日 |
| 宅建免許番号 | 栃木県知事(2)第5135号 |
| アクセス | 店舗への地図はこちら |

来店ご予約
栃木県真岡市で価格が似ている物件はこちら
- 栃木県
マイページ物件数 - 6,667件
最近見た物件
-
-

-
- 中古一戸建て
- 680万円
-
多可郡多可町加美区丹治
-
JR加古川線西脇市
-
栃木県中古一戸建て新着物件
- お近くの店舗を探す
-
おすすめ物件
-
-

-
- 中古一戸建て
- 1億3,000万円
-
宇都宮市陽東5丁目
-
宇都宮芳賀ライト線宇都宮大学陽東キャンパス
-
-
-

-
- 中古一戸建て
- 2,780万円
-
宇都宮市石井町
-
宇都宮芳賀ライト線平石中央小学校前
-
-
-

-
- 中古一戸建て
- 1,980万円
-
宇都宮市下平出町
-
宇都宮芳賀ライト線平石中央小学校前
-
-
-

-
- 中古一戸建て
- 2,950万円
-
佐野市高萩町
-
JR両毛線佐野
-
-
-

-
- 中古一戸建て
- 3,280万円
-
宇都宮市西刑部町
-
関東バス【中央橋】
-
-
-

-
- 中古一戸建て
- 690万円
-
宇都宮市野沢町
-
関東バス弁天橋停
-
-
-

-
- 中古一戸建て
- 3,190万円
-
宇都宮市鶴田町
-
JR日光線鶴田
-
-
-

-
- 中古一戸建て
- 3,998万円
-
宇都宮市野沢町
-
東武宇都宮線東武宇都宮
-
-
-

-
- 中古一戸建て
- 2,200万円
-
宇都宮市星が丘2丁目
-
東武宇都宮線東武宇都宮
-
-
-

-
- 中古一戸建て
- 1,600万円
-
宇都宮市下川俣町
-
JR東北本線岡本
-








