中川区柳堀町 中古一戸建て
掲載情報更新日:2026年04月16日 次回更新予定日:2026年04月30日
- 3,980万円
-
- 借入ご希望金額
万円 - 借入期間
年 - 借入金利
% - 月々のお支払い金額
円
- 借入ご希望金額
※ 月々のお支払例は目安の試算となりますので、実際の金額とは異なる場合がございます。詳しくは店舗までお問合わせください。
- 名古屋市中川区柳堀町
-
名鉄名古屋本線『山王』 徒歩5分 (約400m)
JR東海道本線『尾頭橋』 徒歩14分 (約1120m)
名古屋臨海高速鉄道『ささしまライブ』 徒歩16分 (約1280m)
名古屋市営バス『「柳原橋」停』 徒歩3分 (約240m)
中川区柳堀町 中古一戸建て一戸建て | 物件情報
【アクセス良好!】名鉄名古屋本線山王駅まで徒歩約5分!最寄りバス停徒歩約3分!
■接客評価コメント五つ星!ハウスドゥ 中川区八熊通野田■
\あれこれ不動産サイトを見なくても当店で解決/
当店はエリア内の物件の大半を最・新・情・報で掲載!
ほかのページで気になる物件もご相談ください。
◆広見小学校/山王中学校
◆小・中学校徒歩10分以内
◆角地に立地
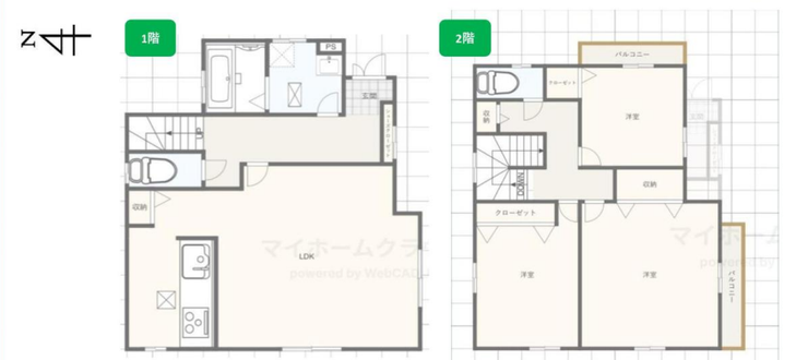
◆全居室収納付き!
※写真をクリックすると、詳細をご覧いただけます。
=========================
《お問合せからすぐご案内!》
見るだけOK、聞くだけOK。
実際に現地を体感してみてください。
=========================
物件の設備
- 電気
- 上水道
- 下水道
- 都市ガス
- カウンターキッチン
- システムキッチン
- 追焚機能
- 浴室乾燥機
- 浴室に窓
- トイレ2箇所
- 温水洗浄便座
- 洗髪洗面化粧台
- エアコン
- モニタ付インターホン
- 複層ガラス
- 全居室収納
- シューズインクローク
物件の特徴
- 小学校徒歩10分以内
- 前道6m以上
- 南側道路面す
- 2階建
- 角地
- 平坦地
- 建築確認完了検査済証
物件詳細情報
| 価格 | 3,980万円 | 間取り | 3LDK |
|---|---|---|---|
| 物件種別 | 中古一戸建て | ||
| 所在地 | 愛知県名古屋市中川区柳堀町 | ||
| アクセス |
|
||
| 建物面積 | 84.46㎡ | 駐車場 | あり 普通:2台 |
| 築年月 | 2013年(平成25年)01月築 | ||
| 建物構造 | 木造 2階建 | 工法 | |
| 主要採光 | バルコニー | ||
| 保証・評価 | |||
| リフォーム | |||
| 土地面積 | 実96.44㎡(29.17坪) | 接道 | 東側(公道)幅 約5.9m 間口 約6.10m 南側(公道)幅 約14.5m 間口 約12.60m |
| 私道 | セットバック | ||
| 地目 | 宅地 | 地勢 | 平坦 |
| 権利 | 所有権 |
||
| 都市計画 | 市街化区域 |
用途地域 | 準工業 |
| 建ぺい/容積率 | 60% / 200% | 土地国土法 | |
| 許可番号 | 建築基準法 | ||
| 法令制限 | 準防火地域・緑化地域・絶対高31m高度地区・大規模集客施設制限地区・都市機能誘導区域内・居住誘導区域内 | ||
| 小学区 | 広見小学校 徒歩6分 (約480m) | 中学区 | 山王中学校 徒歩9分 (約720m) |
| 現況 | 空 | 引渡 | 相談 |
| その他費用 | |||
| 周辺環境 | 名古屋市立広見小学校 徒歩6分 (約480m) 名古屋市立山王中学校 徒歩9分 (約720m) 山王の星 保育園 徒歩5分 (約360m) 業務スーパー福住店 徒歩13分 (約1040m) スギドラッグ 正木店 徒歩12分 (約910m) 【つゆはしクリニック】 徒歩3分 (約170m) 【西日置郵便局】 徒歩6分 (約430m) 山王温泉 喜多の湯 徒歩5分 (約340m) 【柳堀公園】 徒歩4分 (約300m) 露橋スポーツセンター 徒歩10分 (約780m) |
||
| 備考 | ・名古屋市立広見小学校まで徒歩6分(約480m) ・名古屋市立山王中学校まで徒歩9分(約720m) ・山王の星 保育園まで徒歩5分(約360m) ・業務スーパー福住店まで徒歩13分(約1040m) ・スギドラッグ 正木店まで徒歩12分(約910m) ・【つゆはしクリニック】まで徒歩3分(約170m) ・【西日置郵便局】まで徒歩6分(約430m) ・山王温泉 喜多の湯まで徒歩5分(約340m) ・【柳堀公園】まで徒歩4分(約300m) ・露橋スポーツセンターまで徒歩10分(約780m) |
||
| 物件番号 | 4361148 | 取引態様 | 媒介 |
取扱店舗情報
ハウスドゥ 中川区八熊通野田 ファミリアホームサービス株式会社 店舗詳細ページへ
| 電話番号 | 052-369-2100 |
|---|---|
| 所在地 | 〒454-0926 愛知県名古屋市中川区打出1丁目1 |
| 営業時間 | 10:00~18:00 |
| 定休日 | 水曜日・年末年始(水曜日が祝日の場合は営業) |
| 宅建免許番号 | 国土交通大臣(2)第9218号 |
| アクセス | 店舗への地図はこちら |

来店ご予約
愛知県名古屋市中川区で価格が似ている物件はこちら
- 愛知県
マイページ物件数 - 32,057件
愛知県中古一戸建て新着物件
-
-

-
- 中古一戸建て
- 1,400万円
-
豊田市西中山町崩ケ崎
-
名鉄三河線猿投駅
-
-
-

-
- 中古一戸建て
- 2,399万円
-
清須市西市場1丁目
-
名鉄名古屋本線新清洲駅
-
-
-

-
- 中古一戸建て
- 1,500万円
-
豊川市諏訪2丁目
-
名鉄豊川線諏訪町駅
-
-
-

-
- 中古一戸建て
- 2,980万円
-
名古屋市緑区大将ケ根1丁目
-
名鉄名古屋本線中京競馬場前駅
-
-
-

-
- 中古一戸建て
- 3,780万円
-
愛知郡東郷町北山台2丁目
-
名鉄豊田線日進駅
-
-
-

-
- 中古一戸建て
- 1,500万円
-
豊川市諏訪2丁目
-
名鉄豊川線諏訪町駅
-
-
-

-
- 中古一戸建て
- 1,990万円
-
岡崎市真福寺町字落合
-
愛知環状鉄道大門駅
-
- お近くの店舗を探す
-
おすすめ物件
-
-

-
- 中古一戸建て
- 480万円
-
愛西市西保町西川原
-
名鉄尾西線佐屋
-
-
-

-
- 中古一戸建て
- 2,180万円
-
四日市市大字日永
-
四日市あすなろう泊
-
-
-

-
- 中古一戸建て
- 2,999万円
-
大府市大府町ウド
-
JR武豊線大府
-
-
-

-
- 中古一戸建て
- 1,950万円
-
蒲郡市三谷北通3丁目
-
JR東海道本線三河三谷
-
-
-

-
- 中古一戸建て
- 6,300万円
-
瀬戸市塩草が丘3丁目
-
愛知環状鉄道山口
-
-
-

-
- 中古一戸建て
- 2,660万円
-
豊川市四ツ谷町3丁目
-
名鉄豊川線諏訪町
-
-
-

-
- 中古一戸建て
- 3,980万円
-
知多郡東浦町大字石浜字南ヶ丘
-
JR武豊線石浜
-
-
-

-
- 中古一戸建て
- 3,580万円
-
豊川市西口町2丁目
-
JR飯田線牛久保
-
-
-

-
- 中古一戸建て
- 4,099万円
-
日進市岩崎町南口
-
名鉄豊田線赤池
-
-
-

-
- 中古一戸建て
- 880万円
-
蒲郡市三谷町駒場
-
JR東海道本線三河三谷
-






《実際に現地を体感してみませんか?》
気になる点はお気軽にお問い合わせください!
お客様の理想のお住まいを一緒に見つけましょう!