山口市桜畠5丁目の中古戸建
掲載情報更新日:2025年11月17日 次回更新予定日:2025年12月01日
- 650万円
-
- 借入ご希望金額
万円 - 借入期間
年 - 借入金利
% - 月々のお支払い金額
円
- 借入ご希望金額
※ 月々のお支払例は目安の試算となりますので、実際の金額とは異なる場合がございます。詳しくは店舗までお問合わせください。
- 山口市桜畠5丁目
-
JR山口線『宮野』 徒歩10分 (約750m)
山口市桜畠5丁目一戸建て | 物件情報
物件の設備
- 公営水道
- 下水道
- 都市ガス
- カウンターキッチン
- LDK15畳以上
物件の特徴
- 陽当り良好
- 2階建
- 即入居可
物件詳細情報
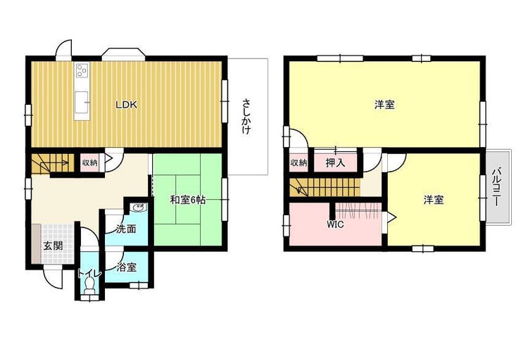
| 価格 | 650万円 | 間取り | 3LDK+S |
|---|---|---|---|
| 物件種別 | 中古一戸建て | ||
| 所在地 | 山口県山口市桜畠5丁目9-7 | ||
| アクセス |
|
||
| 建物面積 | 公106.08㎡ | 駐車場 | あり 普通:2台 |
| 築年月 | 1986年(昭和61年)03月築 | ||
| 建物構造 | 軽量鉄骨 2階建 | 工法 | |
| 主要採光 | バルコニー | ||
| 保証・評価 | |||
| リフォーム | |||
| 土地面積 | 公211.32㎡(63.92坪) | 接道 | 北側幅 約4.0m |
| 私道 | セットバック | ||
| 地目 | 宅地 | 地勢 | |
| 権利 | 所有権 |
||
| 都市計画 | 非線引区域 |
用途地域 | 1種中高 |
| 建ぺい/容積率 | 60% / 200% | 土地国土法 | |
| 許可番号 | 建築基準法 | ||
| 法令制限 | 景観法による規制有・宅地造成工事規制区域・都市再生特別地区 | ||
| 小学区 | 宮野小学校 徒歩18分 (約1400m) | 中学区 | 宮野中学校 徒歩10分 (約800m) |
| 現況 | 空 | 引渡 | 即 |
| その他費用 | |||
| 備考 | カーポート2台駐車可(縦列) さしかけあり |
||
| 物件番号 | 4361179 | 取引態様 | 媒介 |
取扱店舗情報
| 電話番号 | 083-921-6515 |
|---|---|
| 所在地 | 〒753-0851 山口県山口市黒川400-1 |
| 営業時間 | 9:30~18:00 |
| 定休日 | 毎水・第2・3・4・5木 |
| 宅建免許番号 | 国土交通大臣(2)第9501号 |
| アクセス | 店舗への地図はこちら |

来店ご予約
山口県山口市で価格が似ている物件はこちら
- 山口県
マイページ物件数 - 3,050件
最近見た物件
-
-

-
- 中古一戸建て
- 500万円
-
福知山市大江町三河
-
京都丹後鉄道宮福線大江高校前
-
-
-

-
- 中古一戸建て
- 350万円
-
岡山市北区関西町
-
JR吉備線備前三門
-
-
-

-
- 中古一戸建て
- 2,300万円
-
大阪市都島区都島中通1丁目
-
大阪市谷町線都島
-
山口県中古一戸建て新着物件
-
-

-
- 中古一戸建て
- 2,800万円
-
周南市高水原3丁目
-
JR岩徳線高水駅
-
-
-

-
- 中古一戸建て
- 1,100万円
-
周南市江の宮町
-
JR山陽本線徳山駅
-
-
-

-
- 中古一戸建て
- 1,580万円
-
防府市自由ケ丘3丁目
-
JR山陽本線防府駅
-
-
-

-
- 中古一戸建て
- 1,630万円
-
岩国市御庄3丁目
-
錦川鉄道錦川清流線清流新岩国駅
-
-
-

-
- 中古一戸建て
- 1,500万円
-
岩国市青木町3丁目
-
JR山陽本線藤生駅
-
-
-

-
- 収益
- 1,600万円
-
岩国市門前町2丁目
-
JR山陽本線南岩国駅
-
-
-

-
- 中古一戸建て
- 1,298万円
-
周南市大字須々万本郷
-
JR山陽本線徳山駅
-
- お近くの店舗を探す
-
おすすめ物件
-
-

-
- 中古一戸建て
- 3,680万円
-
光市大字光井
-
JR山陽本線岩田
-
-
-

-
- 中古一戸建て
- 1,598万円
-
防府市自由ケ丘2丁目
-
JR山陽本線防府
-
-
-

-
- 中古一戸建て
- 980万円
-
防府市多々良1丁目
-
JR山陽本線防府
-
-
-

-
- 中古一戸建て
- 480万円
-
防府市迫戸町
-
JR山陽本線防府
-
-
-

-
- 中古一戸建て
- 2,460万円
-
防府市岸津1丁目
-
JR山陽本線防府
-
-
-

-
- 中古一戸建て
- 1,980万円
-
防府市仁井令町
-
JR山陽本線防府
-
-
-

-
- 中古一戸建て
- 790万円
-
岩国市黒磯町2丁目
-
JR山陽本線藤生
-
-
-

-
- 中古一戸建て
- 1,580万円
-
周南市秋月3丁目
-
JR山陽本線徳山
-
-
-

-
- 中古一戸建て
- 3,850万円
-
光市宮ノ下町
-
JR山陽本線光
-
-
-

-
- 中古一戸建て
- 1,798万円
-
防府市新橋町
-
JR山陽本線防府
-























