淀川区加島2丁目 中古戸建
掲載情報更新日:2025年12月07日 次回更新予定日:2025年12月21日
- 1,580万円
-
- 借入ご希望金額
万円 - 借入期間
年 - 借入金利
% - 月々のお支払い金額
円
- 借入ご希望金額
※ 月々のお支払例は目安の試算となりますので、実際の金額とは異なる場合がございます。詳しくは店舗までお問合わせください。
- 大阪市淀川区加島2丁目
-
JR東西線『加島』 徒歩12分 (約960m)
阪急電鉄神戸線『神崎川』 徒歩18分 (約1440m)
JR東西線『御幣島』 徒歩30分 (約2400m)
淀川区加島2丁目 中古戸建一戸建て | 物件情報
■月々4万円台 ■駐車場付き(車種による) ■小中学校徒歩5分 ■南西向き
---イチ押しポイント---
■今流行りの古民家×リノベーション向きの戸建物件です!
■前面道路は公道6mのため広々としております!
---周辺環境---
■加島小学校・・・徒歩5分
■美津島中学校・・・徒歩5分
■スーパー・・・徒歩8分
■コンビニ・・・徒歩6分
※当社では他社様が掲載している物件もご紹介、ご案内が可能です!
あわせて内覧を希望される際は、お問い合わせの際希望の物件名をお申し付けくださいませ!
「お家探し」「ご売却」は
地域密着型不動産『ハウスドゥ新大阪北』におまかせ下さい!
お客様にお会いできること、スタッフ一同、心よりお待ちしております!
物件の設備
- 電気
- 上水道
- 公営水道
- 下水道
- 公共下水
- 都市ガス
- 給湯
- バス
- オートバス
- 追焚機能
- 浴室に窓
- 洗髪洗面化粧台
- 洗面所独立
- モニタ付インターホン
- フローリング
- 網戸
- 全居室収納
- シューズボックス
- バルコニー
物件の特徴
- 小学校徒歩10分以内
- 整備された歩道
- 緑豊かな住宅地
- スーパーが近い
- 閑静な住宅街
- 周辺交通量少なめ
- 市街地が近い
- 都市近郊
- 眺望良好
- 通風良好
- 陽当り良好
- 2階建
- 前面棟無
- 平坦地
- 整形地
- 古民家風
- 即入居可
物件詳細情報
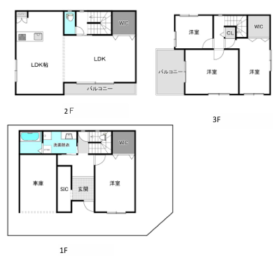
| 価格 | 1,580万円 | 間取り | 3DK |
|---|---|---|---|
| 物件種別 | 中古一戸建て | ||
| 所在地 | 大阪府大阪市淀川区加島2丁目 | ||
| アクセス |
|
||
| 建物面積 | 公64.04㎡ | 駐車場 | あり 軽:1台 |
| 築年月 | 1978年(昭和53年)12月築 | ||
| 建物構造 | 木造 2階建 | 工法 | |
| 主要採光 | 南東向 | バルコニー | 北西向5.00㎡ |
| 保証・評価 | |||
| リフォーム | |||
| 土地面積 | 公56.86㎡(17.20坪) | 接道 | |
| 私道 | セットバック | 無 | |
| 地目 | 宅地 | 地勢 | |
| 権利 | 所有権 |
||
| 都市計画 | 市街化区域 |
用途地域 | 工業 |
| 建ぺい/容積率 | 60% / 200% | 土地国土法 | |
| 許可番号 | 建築基準法 | ||
| 法令制限 | |||
| 小学区 | 加島小学校 徒歩5分 (約400m) | 中学区 | 美津島中学校 徒歩5分 (約400m) |
| 現況 | 空 | 引渡 | 即 |
| その他費用 | |||
| 備考 | |||
| 物件番号 | 4361803 | 取引態様 | 媒介 |
取扱店舗情報
ハウスドゥ 新大阪北 株式会社mobility 店舗詳細ページへ
| 電話番号 | 06-6836-9305 |
|---|---|
| 所在地 | 〒532-0005 大阪府大阪市淀川区三国本町3丁目29-15 |
| 営業時間 | 10:00~19:00 |
| 定休日 | 水曜日 |
| 宅建免許番号 | 大阪府知事(3)第57896号 |
| アクセス | 店舗への地図はこちら |

来店ご予約
大阪府大阪市淀川区で価格が似ている物件はこちら
- 大阪府
マイページ物件数 - 16,153件
最近見た物件
-
-

-
- 中古一戸建て
- 398万円
-
室蘭市絵鞆町3丁目
-
養護老人ホームあいらん前
-
-
-

-
- 新築一戸建て
- 5,999万円
-
市川市新井1丁目
-
東京メトロ東西線浦安
-
-
-

-
- 中古マンション
- 1,690万円
-
北九州市若松区白山2丁目
-
JR筑豊本線若松
-
大阪府中古一戸建て新着物件
-
-

-
- 中古一戸建て
- 3,380万円
-
高槻市芝生町4丁目
-
JR東海道線高槻駅
-
-
-

-
- 中古一戸建て
- 5,850万円
-
大阪市淀川区加島1丁目
-
JR東西線加島駅
-
-
-

-
- 中古一戸建て
- 3,280万円
-
茨木市山手台新町2丁目
-
JR東海道線茨木駅
-
-
-

-
- 中古一戸建て
- 1,780万円
-
泉佐野市南中安松
-
南海電鉄本線羽倉崎駅
-
-
-

-
- 中古一戸建て
- 3,980万円
-
豊中市三国2丁目
-
阪急電鉄宝塚線三国駅
-
-
-

-
- 中古一戸建て
- 899万円
-
大阪市東成区玉津3丁目
-
大阪市千日前線鶴橋駅
-
-
-

-
- 中古一戸建て
- 1,280万円
-
大阪市東成区東今里3丁目
-
大阪市千日前線新深江駅
-
- お近くの店舗を探す
-
おすすめ物件
-
-

-
- 中古一戸建て
- 2,798万円
-
高槻市東天川3丁目
-
阪急電鉄京都線高槻市
-
-
-

-
- 中古一戸建て
- 1,600万円
-
八尾市垣内4丁目
-
近鉄信貴線信貴山口
-
-
-

-
- 中古一戸建て
- 1,350万円
-
泉南市樽井2丁目
-
南海電鉄本線樽井
-
-
-

-
- 中古一戸建て
- 4,490万円
-
大阪市住吉区万代東2丁目
-
大阪市御堂筋線西田辺
-
-
-

-
- 中古一戸建て
- 4,080万円
-
高槻市高垣町
-
JR東海道線高槻
-
-
-

-
- 中古一戸建て
- 880万円
-
堺市北区長曽根町
-
大阪市御堂筋線なかもず
-
-
-

-
- 中古一戸建て
- 1,780万円
-
岸和田市下池田町2丁目
-
JR阪和線久米田
-
-
-

-
- 中古一戸建て
- 780万円
-
河内長野市楠ケ丘
-
南海電鉄高野線三日市町
-
-
-

-
- 中古一戸建て
- 3,480万円
-
大阪市住吉区万代6丁目
-
南海電鉄高野線住吉東
-
-
-

-
- 中古一戸建て
- 400万円
-
松原市天美北3丁目
-
近鉄南大阪線河内天美
-






































担当エージェント:平野・ひらの
淀川エリア・吹田市の不動産のことならハウスドゥ 新大阪北にお任せください! 地域密着だからこその情報量でお客様にぴったりの物件をご提案します!