太田市東矢島町の中古戸建
掲載情報更新日:2025年11月24日 次回更新予定日:2025年12月08日
- 3,680万円
-
- 借入ご希望金額
万円 - 借入期間
年 - 借入金利
% - 月々のお支払い金額
円
- 借入ご希望金額
※ 月々のお支払例は目安の試算となりますので、実際の金額とは異なる場合がございます。詳しくは店舗までお問合わせください。
- 太田市東矢島町
-
東武伊勢崎・大師線『太田』 徒歩50分 (約4000m)
太田市東矢島町一戸建て | 物件情報
☆未入居物件☆ オール電化住宅!
☆Z空調搭載!固定階段で上がれる屋根裏収納付4LDK!☆
物件の設備
- 電気
- オール電化
- 公営水道
- 下水道
- IHクッキングヒータ
- システムキッチン
- オープンキッチン
- バス
- 浴室に窓
- トイレ
- トイレ2箇所
- 室内洗濯機置場
- LDK15畳以上
- 和室
- 全居室6畳以上
- クローゼット
- 全居室収納
- 屋根裏収納
物件の特徴
- 南側道路面す
- 閑静な住宅街
- 2階建
- 即入居可
物件詳細情報
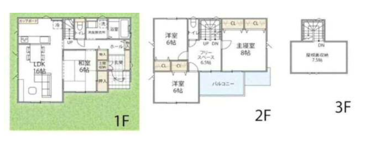
| 価格 | 3,680万円 | 間取り | 4LDK+S |
|---|---|---|---|
| 物件種別 | 中古一戸建て | ||
| 所在地 | 群馬県太田市東矢島町 | ||
| アクセス |
|
||
| 建物面積 | 公109.3㎡ | 駐車場 | あり 普通:3台 |
| 築年月 | 2024年(令和6年)03月築 | ||
| 建物構造 | 木造 2階建 2階建 | 工法 | |
| 主要採光 | 南東向 | バルコニー | |
| 保証・評価 | |||
| リフォーム | |||
| 土地面積 | 公294.49㎡(89.08坪) | 接道 | 南側(公道)幅 約4.0m |
| 私道 | セットバック | ||
| 地目 | 宅地 | 地勢 | |
| 権利 | 所有権 |
||
| 都市計画 | 市街化区域 |
用途地域 | 1種住居 |
| 建ぺい/容積率 | 60% / 200% | 土地国土法 | |
| 許可番号 | 建築基準法 | ||
| 法令制限 | |||
| 小学区 | 旭小学校 徒歩10分 (約800m) | 中学区 | 旭中学校 徒歩15分 (約1200m) |
| 現況 | 空 | 引渡 | 即 |
| その他費用 | |||
| 備考 | ※所在地1390-19 1390-22 |
||
| 物件番号 | 4363672 | 取引態様 | 媒介 |
取扱店舗情報
| 電話番号 | 0284-40-1017 |
|---|---|
| 所在地 | 〒326-0025 栃木県足利市寿町14-1 |
| 営業時間 | 09:00~18:00 |
| 定休日 | 毎週水曜日 |
| 宅建免許番号 | 栃木県知事(1)第5296号 |
| アクセス | 店舗への地図はこちら |

来店ご予約
- 群馬県
マイページ物件数 - 2,536件
最近見た物件
-
-

-
- 中古一戸建て
- 2,990万円
-
豊田市明和町2丁目
-
愛知環状鉄道三河豊田
-
-
-

-
- 新築一戸建て
- 3,799万円
-
八王子市諏訪町
-
JR中央本線西八王子
-
-
-

-
- 中古一戸建て
- 1,800万円
-
名古屋市中川区八田本町
-
JR関西本線八田
-
群馬県中古一戸建て新着物件
-
-

-
- 中古一戸建て
- 2,099万円
-
高崎市下小塙町
-
JR信越本線群馬八幡駅
-
-
-

-
- 中古一戸建て
- 1,990万円
-
高崎市下小塙町
-
JR信越本線群馬八幡駅
-
-
-

-
- 中古一戸建て
- 2,580万円
-
館林市富士見町
-
東武伊勢崎・大師線館林駅
-
-
-

-
- 中古一戸建て
- 2,000万円
-
前橋市下細井町
-
上毛電気鉄道上毛線片貝駅
-
-
-

-
- 中古一戸建て
- 1,360万円
-
邑楽郡大泉町大字寄木戸
-
東武小泉線西小泉駅
-
-
-

-
- 中古一戸建て
- 1,599万円
-
みどり市笠懸町阿左美
-
東武桐生線阿左美駅
-
-
-

-
- 中古一戸建て
- 2,499万円
-
高崎市新町
-
JR高崎線新町駅
-
- お近くの店舗を探す
-
おすすめ物件
-
-

-
- 中古一戸建て
- 3,280万円
-
高崎市菅谷町
-
JR上越線井野
-
-
-

-
- 中古一戸建て
- 1,980万円
-
館林市羽附町
-
東武伊勢崎・大師線館林
-
-
-

-
- 中古一戸建て
- 1,080万円
-
館林市つつじ町
-
東武伊勢崎・大師線館林
-
-
-

-
- 中古一戸建て
- 800万円
-
邑楽郡邑楽町大字篠塚
-
東武小泉線篠塚
-
-
-

-
- 中古一戸建て
- 3,000万円
-
邑楽郡大泉町大字吉田
-
東武小泉線西小泉
-
-
-

-
- 中古一戸建て
- 980万円
-
邑楽郡大泉町大字吉田
-
東武小泉線西小泉
-
-
-

-
- 中古一戸建て
- 1,800万円
-
邑楽郡板倉町朝日野2丁目
-
東武日光線板倉東洋大前
-
-
-

-
- 中古一戸建て
- 3,680万円
-
佐野市犬伏下町
-
東武佐野線堀米
-
-
-

-
- 中古一戸建て
- 1,000万円
-
高崎市箕郷町上芝
-
JR信越本線群馬八幡
-
-
-

-
- 中古一戸建て
- 2,500万円
-
邑楽郡邑楽町大字篠塚
-
東武小泉線東小泉
-



