中古戸建 城東区野江3丁目
掲載情報更新日:2026年05月19日 次回更新予定日:2026年06月02日
- 3,780万円
-
- 借入ご希望金額
万円 - 借入期間
年 - 借入金利
% - 月々のお支払い金額
円
- 借入ご希望金額
※ 月々のお支払例は目安の試算となりますので、実際の金額とは異なる場合がございます。詳しくは店舗までお問合わせください。
- 大阪市城東区野江3丁目
-
JRおおさか東線『JR野江』 徒歩4分 (約300m)
京阪本線『野江』 徒歩6分 (約440m)
大阪市谷町線『野江内代』 徒歩6分 (約470m)
中古戸建 城東区野江3丁目一戸建て | 物件情報
月々10.7万円~ JR野江駅徒歩4分 築浅戸建て♪
☆月々10.7万円~
☆2022年4月完成の築浅3階建て
☆最寄駅から京橋駅まで4分、東梅田まで8分
☆3沿線3駅利用可
☆近隣に学校、幼稚園、保育園、公園あり
☆複数スーパーあり
☆0120ー684-571
お気軽にお電話ください♪
☆立地のポイント
【JR野江駅】徒歩約4分
【京阪野江駅】徒歩約6分
【野江内代駅】徒歩約6分
物件の設備
- 電気
- 上水道
- 下水道
- 都市ガス
- IHクッキングヒーター
- 追焚機能
- 浴室乾燥機
- 温水洗浄便座
- 洗髪洗面化粧台
- モニタ付インターホン
物件の特徴
- セットバック済
- 3階建以上
- 即入居可
物件詳細情報
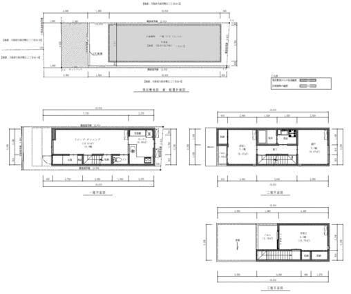
| 価格 | 3,780万円 | 間取り | 3LDK |
|---|---|---|---|
| 物件種別 | 中古一戸建て | ||
| 所在地 | 大阪府大阪市城東区野江3丁目 | ||
| アクセス |
|
||
| 建物面積 | 78.97㎡ | 駐車場 | なし |
| 築年月 | 2022年(令和4年)04月築 | ||
| 建物構造 | 木造 3階建 | 工法 | |
| 主要採光 | バルコニー | ||
| 保証・評価 | |||
| リフォーム | |||
| 土地面積 | 公60.95㎡(18.43坪) | 接道 | 西側(私道)幅 約3.0m 間口 約4.00m |
| 私道 | セットバック | 済 | |
| 地目 | 宅地 | 地勢 | 平坦 |
| 権利 | 所有権 |
||
| 都市計画 | 市街化区域 |
用途地域 | 1種住居 |
| 建ぺい/容積率 | 80% / 300% | 土地国土法 | |
| 許可番号 | 建築基準法 | ||
| 法令制限 | |||
| 小学区 | 榎並小学校 徒歩4分 (約300m) | 中学区 | 蒲生中学校 徒歩8分 (約600m) |
| 現況 | 空 | 引渡 | 即 |
| その他費用 | |||
| 周辺環境 | ダイソー 野江内代店 徒歩4分 (約320m) JR野江駅 徒歩4分 (約270m) 榎並小学校 徒歩5分 (約330m) おおさかパルコープ 東都島 徒歩5分 (約400m) 野江内代駅 徒歩6分 (約470m) 京阪電車 野江駅 徒歩6分 (約440m) 関西スーパー 内代店 徒歩11分 (約820m) 大阪市立蒲生中学校 徒歩10分 (約750m) |
||
| 備考 | オーナーチェンジ物件から一般売買へ変更 2025年11月末空室予定 |
||
| 物件番号 | 4363725 | 取引態様 | 媒介 |
取扱店舗情報
| 電話番号 | 050-5805-9447 |
|---|---|
| 所在地 | 〒536-0006 大阪府大阪市城東区野江4丁目10-13 クリエイト野江内代1F |
| 営業時間 | 10:00~19:00 |
| 定休日 | なし |
| 宅建免許番号 | 国土交通大臣(1)第10706号 |
| アクセス | 店舗への地図はこちら |

来店ご予約
大阪府大阪市城東区で価格が似ている物件はこちら
- 大阪府
マイページ物件数 - 18,866件
大阪府中古一戸建て新着物件
-
-

-
- 中古一戸建て
- 490万円
-
岸和田市池尻町
-
JR阪和線下松駅
-
-
-

-
- 中古一戸建て
- 1,080万円
-
八尾市南植松町2丁目
-
JR関西本線八尾駅
-
-
-

-
- 中古一戸建て
- 1,190万円
-
大阪市西淀川区佃2丁目
-
阪神電鉄本線千船駅
-
-
-

-
- 中古一戸建て
- 680万円
-
堺市南区高尾3丁
-
南海電鉄泉北線光明池駅
-
-
-

-
- 中古一戸建て
- 1,980万円
-
泉佐野市笠松2丁目
-
南海電鉄関西空港線りんくうタウン駅
-
-
-

-
- 中古一戸建て
- 2,899万円
-
高槻市北大樋町
-
阪急電鉄京都線高槻市駅
-
-
-

-
- 中古一戸建て
- 1,580万円
-
泉大津市松之浜町2丁目
-
南海電鉄本線松ノ浜駅
-
- お近くの店舗を探す
-
おすすめ物件
-
-

-
- 中古一戸建て
- 2,180万円
-
東大阪市稲田本町1丁目
-
JR片町線徳庵
-
-
-

-
- 中古一戸建て
- 490万円
-
大阪市住之江区御崎6丁目
-
大阪市四つ橋線住之江公園
-
-
-

-
- 中古一戸建て
- 730万円
-
泉南郡熊取町山の手台3丁目
-
JR阪和線熊取
-
-
-

-
- 中古一戸建て
- 1,380万円
-
高槻市八幡町
-
阪急電鉄京都線高槻市
-
-
-

-
- 中古一戸建て
- 2,280万円
-
摂津市鳥飼本町1丁目
-
大阪モノレール南摂津
-
-
-

-
- 中古一戸建て
- 2,850万円
-
摂津市鳥飼新町1丁目
-
大阪モノレール沢良宜
-
-
-

-
- 中古一戸建て
- 2,980万円
-
八尾市栄町2丁目
-
JR関西本線八尾
-
-
-

-
- 中古一戸建て
- 3,299万円
-
高槻市津之江町3丁目
-
阪急電鉄京都線富田
-
-
-

-
- 中古一戸建て
- 1,780万円
-
堺市中区伏尾
-
南海電鉄泉北線泉ケ丘
-
-
-

-
- 中古一戸建て
- 2,680万円
-
八尾市高美町3丁目
-
JR関西本線八尾
-
















担当エージェント:尾関 親代
最寄り駅から京橋まで4分、東梅田まで8分の好立地!
通勤通学に便利な3沿線3駅利用可!
落ち着いた住環境でファミリー層にも単身者にも◎♪
ぜひお気軽にお問い合わせください!