白山市長竹町の中古戸建
掲載情報更新日:2025年09月22日 次回更新予定日:2025年10月06日
- 3,160万円
-
- 借入ご希望金額
万円 - 借入期間
年 - 借入金利
% - 月々のお支払い金額
円
- 借入ご希望金額
※ 月々のお支払例は目安の試算となりますので、実際の金額とは異なる場合がございます。詳しくは店舗までお問合わせください。
- 白山市長竹町
-
IRいしかわ鉄道『松任』 徒歩30分 (約2340m)
『長竹西』 徒歩1分 (約80m)
白山市長竹町一戸建て | 物件情報
白山市長竹町に綺麗な中古戸建が登場しました!
平成25年築で内装、建具綺麗です。また、アピタ松任、コストコなどの商業施設や白山市役所も車で5~10分以内で移動出来、大変好立地となっております。
物件の設備
- 電気
- 上水道
- 下水道
- プロパンガス
- 個別プロパン
物件の特徴
- 前道6m以上
- 2階建
物件詳細情報
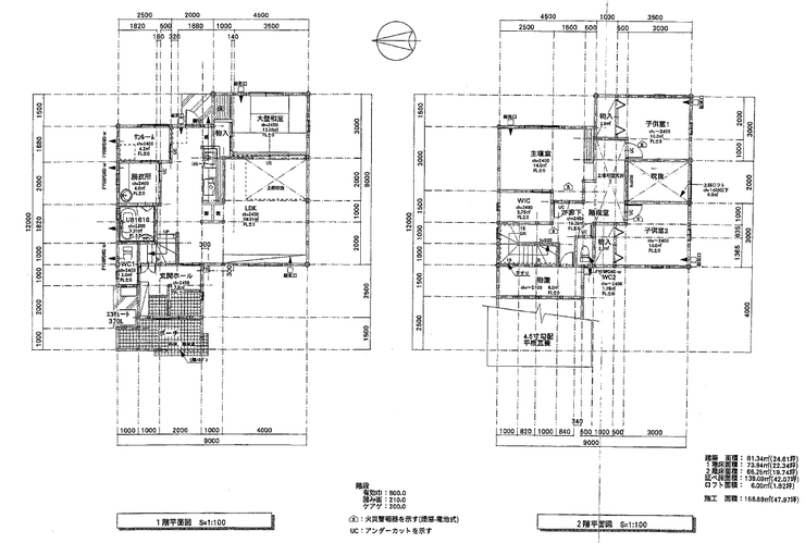
価格 | 3,160万円 | 間取り | 4LDK |
---|---|---|---|
物件種別 | 中古一戸建て | ||
所在地 | 石川県白山市長竹町 | ||
アクセス |
|
||
建物面積 | 139.09㎡ | 駐車場 | あり 普通:2台 |
築年月 | 2013年(平成25年)11月築 | ||
建物構造 | 木造 2階建 | 工法 | |
主要採光 | バルコニー | ||
保証・評価 | |||
リフォーム | |||
土地面積 | 公165.3㎡(50坪) | 接道 | 西側(公道)幅 約6.0m 間口 約11.20m |
私道 | セットバック | ||
地目 | 宅地 | 地勢 | |
権利 | 所有権 |
||
都市計画 | 市街化区域 |
用途地域 | 1種住居 |
建ぺい/容積率 | 60% / 200% | 土地国土法 | |
許可番号 | 建築基準法 | ||
法令制限 | |||
小学区 | 東明小学校 徒歩14分 (約1060m) | 中学区 | 松任中学校 徒歩24分 (約1880m) |
現況 | 空 | 引渡 | 相談 |
その他費用 | |||
周辺環境 | 白山市立東明小学校 徒歩14分 (約1060m) アピタ松任店 徒歩17分 (約1300m) コストコホールセール野々市倉庫店 徒歩16分 (約1220m) 社会福祉法人金沢市民生協会ときわ病院 徒歩20分 (約1530m) 野々市中央公園 徒歩17分 (約1340m) セブン-イレブン野々市下林3丁目店 徒歩20分 (約1600m) 大阪屋ショップ松任店 徒歩21分 (約1660m) セブン-イレブン白山八ツ矢町店 徒歩24分 (約1860m) 白山市立松任中学校 徒歩24分 (約1880m) 倉光郵便局 徒歩25分 (約1990m) |
||
備考 | 内装、建具綺麗です。 | ||
物件番号 | 4364420 | 取引態様 | 媒介 |
取扱店舗情報
ハウスドゥ ラスパ白山 株式会社アンビション 店舗詳細ページへ
電話番号 | 076-225-6461 |
---|---|
所在地 | 〒924-0865 石川県白山市倉光5丁目14 ラスパ白山 A-10 |
営業時間 | 10:00~19:00 |
定休日 | 年中無休 |
宅建免許番号 | 石川県知事(1)第4517号 |
アクセス | 店舗への地図はこちら |