我孫子市中峠の中古戸建
掲載情報更新日:2025年12月05日 次回更新予定日:2025年12月19日
- 2,780万円
-
- 借入ご希望金額
万円 - 借入期間
年 - 借入金利
% - 月々のお支払い金額
円
- 借入ご希望金額
※ 月々のお支払例は目安の試算となりますので、実際の金額とは異なる場合がございます。詳しくは店舗までお問合わせください。
- 我孫子市中峠
-
JR成田線『湖北』 徒歩15分 (約1200m)
我孫子市中峠一戸建て | 物件情報
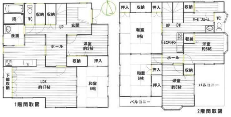
屋上付きのRC造リフォーム済戸建☆ ファミリーにも嬉しい広々6SLDK♪
◇2階にミニキッチン・洗面・トイレ完備♪
◇和室は広々8帖・6帖☆
◇サービスルーム付☆
物件の設備
- オール電化
- 公営水道
- 公共下水
- トイレ2箇所
- 室内洗濯機置場
- 洗面所独立
- LDK15畳以上
- 和室
- 和室8畳以上
- 出窓
- フローリング張替
- 屋上テラス
物件の特徴
- 内装リフォーム済
- 内外装リフォーム後渡
- 前道6m以上
- 2階建
物件詳細情報
| 価格 | 2,780万円 | 間取り | 6LDK+S |
|---|---|---|---|
| 物件種別 | 中古一戸建て | ||
| 所在地 | 千葉県我孫子市中峠 | ||
| アクセス |
|
||
| 建物面積 | 157.55㎡ | 駐車場 | あり |
| 築年月 | 2006年(平成18年)02月築 | ||
| 建物構造 | RC 2階建 | 工法 | |
| 主要採光 | バルコニー | ||
| 保証・評価 | |||
| リフォーム | 【水回り】2025年07月 トイレ 【内装】2025年07月 床 ・全室クロス |
||
| 土地面積 | 175.99㎡(53.23坪) | 接道 | 北側(公道)幅 約6.0m |
| 私道 | セットバック | ||
| 地目 | 宅地 | 地勢 | |
| 権利 | 所有権 |
||
| 都市計画 | 市街化区域 |
用途地域 | 1種低層 |
| 建ぺい/容積率 | 50% / 100% | 土地国土法 | |
| 許可番号 | 建築基準法 | ||
| 法令制限 | |||
| 小学区 | 中学区 | ||
| 現況 | 空 | 引渡 | 相談 |
| その他費用 | |||
| 備考 | |||
| 物件番号 | 4365252 | 取引態様 | 媒介 |
取扱店舗情報
| 電話番号 | 04-7191-7960 |
|---|---|
| 所在地 | 〒277-0941 千葉県柏市高柳1139-1 |
| 営業時間 | 9:00~18:00 |
| 定休日 | 水曜日、年末年始 |
| 宅建免許番号 | 千葉県知事(1)第17929号 |
| アクセス | 店舗への地図はこちら |

来店ご予約
千葉県我孫子市で価格が似ている物件はこちら
- 千葉県
マイページ物件数 - 2,873件
最近見た物件
-
-

-
- 中古マンション
- 1,980万円
-
岡山市北区平野
-
JR山陽本線庭瀬
-
千葉県中古一戸建て新着物件
-
-

-
- 中古一戸建て
- 3,090万円
-
柏市高柳
-
東武野田線高柳駅
-
-
-

-
- 中古一戸建て
- 2,880万円
-
野田市山崎
-
東武野田線梅郷駅
-
-
-

-
- 中古一戸建て
- 2,980万円
-
船橋市飯山満町3丁目
-
京成電鉄松戸線薬園台駅
-
-
-

-
- 中古一戸建て
- 1,299万円
-
我孫子市新木
-
JR成田線新木駅
-
-
-

-
- 中古一戸建て
- 2,790万円
-
我孫子市つくし野1丁目
-
JR常磐線我孫子駅
-
-
-

-
- 中古一戸建て
- 2,880万円
-
流山市野々下6丁目
-
東武野田線豊四季駅
-
-
-

-
- 中古一戸建て
- 4,680万円
-
千葉市中央区蘇我3丁目
-
JR京葉線蘇我駅
-
- お近くの店舗を探す
-
おすすめ物件
-
-

-
- 中古一戸建て
- 3,880万円
-
成田市はなのき台2丁目
-
JR成田線成田
-
-
-

-
- 中古一戸建て
- 5,570万円
-
流山市平和台5丁目
-
流鉄流山線流山
-
-
-

-
- 中古一戸建て
- 2,880万円
-
木更津市八幡台3丁目
-
JR内房線木更津
-
-
-

-
- 中古一戸建て
- 5,380万円
-
柏市西山1丁目
-
京成電鉄松戸線常盤平
-
-
-

-
- 中古一戸建て
- 2,380万円
-
松戸市根木内
-
JR千代田・常磐緩行線北小金
-
-
-

-
- 中古一戸建て
- 5,980万円
-
市川市八幡5丁目
-
京成本線鬼越
-
-
-

-
- 中古一戸建て
- 2,380万円
-
成田市玉造2丁目
-
JR成田線成田
-
-
-

-
- 中古一戸建て
- 1,480万円
-
松戸市古ケ崎
-
JR常磐線松戸
-
-
-

-
- 中古一戸建て
- 3,499万円
-
取手市井野
-
JR常磐線取手
-
-
-

-
- 中古一戸建て
- 980万円
-
柏市南逆井3丁目
-
京成電鉄松戸線五香
-











