大阪市東住吉区駒川5丁目の中古戸建
掲載情報更新日:2025年10月20日 次回更新予定日:2025年11月03日
- 2,380万円
- 
                    - 借入ご希望金額
 万円
-  借入期間
 年
-  借入金利
 %
-  月々のお支払い金額
 円
 
- 借入ご希望金額
※ 月々のお支払例は目安の試算となりますので、実際の金額とは異なる場合がございます。詳しくは店舗までお問合わせください。
- 大阪市東住吉区駒川5丁目
- 
                    大阪市谷町線『駒川中野』 徒歩9分 (約720m)
 近鉄南大阪線『針中野』 徒歩4分 (約320m)
 
大阪市東住吉区駒川5丁目一戸建て | 物件情報
■ コスパと快適を両立! ■ 愛着の湧く住まいをこの価格で実現!
             
        
            ◆ 戸建てを買うなら【ハウスドゥ長居公園東】へ! ◆
全国700店舗以上を展開し、売買専門店舗数No.1のハウスドゥグループ。
その中でも当店は、不動産売買に特化した専門店舗として、地域密着サービスを提供しています。
特に長居公園周辺に強く、地元ならではの情報力と提案力が自慢です。学区・周辺環境・資産性など、細かなご希望に対しても的確にご提案可能です。
◇ 新築戸建て・中古住宅
◇ 中古+リフォームのご提案
◇ 投資用物件・収益不動産
◇ 住宅ローン相談・事前審査
◇ 売却・買替え・住み替え相談
ご購入からローン、リフォームまでワンストップで対応可能。お客様専属エージェントが、お客様の理想の住まい探しを全力でサポートします。
さらに、店舗限定の非公開物件も多数ご用意しております。「良い物件が見つからない」とお悩みの方も、ぜひ一度ご相談ください。
◆住宅ローン相談会も随時開催中!
「まずは話だけでも聞いてみたい」そんな方も大歓迎です。
 【ハウスドゥ長居公園東】へお問合せください!
無料問い合わせ→【0120-885-123】        
物件の設備
- 電気
- 公営水道
- 下水道
- 給湯
- バス
- トイレ
- 洗面所独立
オープンハウス・イベント情報
                開催日時:毎週土日祝 10:00~18:00
                開催場所:大阪府大阪市東住吉区
            
【ご要望に合わせて各種相談会 開催中】 ◆ 物件購入相談 ・現地で実際の物件を見学したい! ・たくさんの物件を比較して決めたい! ・物件選びのコツがわからない… ・現金購入とローン購入の違いって? ◆ 住宅ローン相談 ・頭金ゼロで本当に家が買えるの? ・ローンを組める金額を知…
物件詳細情報
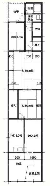
| 価格 | 2,380万円 | 間取り | 3DK | 
|---|---|---|---|
| 物件種別 | 中古一戸建て | ||
| 所在地 | 大阪府大阪市東住吉区駒川5丁目 | ||
| アクセス | 
 | ||
| 建物面積 | 公25.17㎡ | 駐車場 | なし | 
| 築年月 | 1926年(大正15年)01月築 | ||
| 建物構造 | 木造 1階建 | 工法 | |
| 主要採光 | バルコニー | ||
| 保証・評価 | |||
| リフォーム | |||
| 土地面積 | 公69.32㎡(20.96坪) | 接道 | 西側幅 約2.3m 間口 約4.03m | 
| 私道 | セットバック | ||
| 地目 | 宅地 | 地勢 | 平坦 | 
| 権利 | 所有権 | ||
| 都市計画 | 市街化区域 | 用途地域 | 1種住居 | 
| 建ぺい/容積率 | 80% / 100% | 土地国土法 | |
| 許可番号 | 建築基準法 | ||
| 法令制限 | |||
| 小学区 | 東田辺小学校 徒歩5分 (約350m) | 中学区 | 中野中学校 徒歩13分 (約1000m) | 
| 現況 | 空 | 引渡 | 相談 | 
| その他費用 | |||
| 周辺環境 | スーパー玉出 駒川店 徒歩3分 (約180m) ファミリーマート近鉄針中野駅前店 徒歩3分 (約180m) こまがわ商店街 徒歩4分 (約260m) 大同信用組合 針中野支店 徒歩4分 (約320m) 近鉄南大阪線 針中野駅 徒歩5分 (約390m) 駒川中野駅 徒歩7分 (約490m) 針中野わくわく公園 徒歩7分 (約490m) 東住吉警察署 徒歩8分 (約580m) スギドラック鷹合店 徒歩8分 (約580m) 関西みらい銀行 針中野支店 徒歩8分 (約570m) | ||
| 備考 | 築年数は昭和1年となっておりますが築年数不詳になります。 | ||
| 物件番号 | 4365427 | 取引態様 | 媒介 | 
取扱店舗情報
| 電話番号 | 06-6657-5963 | 
|---|---|
| 所在地 | 〒546-0014 大阪府大阪市東住吉区鷹合1丁目13-3 KIDビル1階 | 
| 営業時間 | 10:00~19:00 | 
| 定休日 | 水曜日 | 
| 宅建免許番号 | 大阪府知事(1)第65144号 | 
| アクセス | 店舗への地図はこちら | 

来店ご予約
大阪府大阪市東住吉区で価格が似ている物件はこちら
- 大阪府
 マイページ物件数
- 15,073件
最近見た物件
- 
                        - 
									                                     
- 
                                - 中古一戸建て
- 3,690万円
- 
                                        
                                            尾道市日比崎町 
- 
                                        JR山陽本線尾道 
 
 
- 
									                                    
- 
                        - 
									                                     
- 
                                - 中古一戸建て
- 2,350万円
- 
                                        
                                            大阪市東住吉区西今川3丁目 
- 
                                        近鉄南大阪線今川 
 
 
- 
									                                    
- 
                        - 
									                                     
- 
                                - 中古一戸建て
- 2,080万円
- 
                                        
                                            京田辺市大住関屋 
- 
                                        JR片町線大住 
 
 
- 
									                                    
大阪府中古一戸建て新着物件
- 
				- 
							                             
- 
						- 中古一戸建て
- 1,780万円
- 
								
									大阪市旭区清水3丁目 
- 
                                京阪本線千林駅 
 
 
- 
							                            
- 
				- 
							                             
- 
						- 中古一戸建て
- 2,340万円
- 
								
									東大阪市新家2丁目 
- 
                                大阪市中央線長田駅 
 
 
- 
							                            
- 
				- 
							                             
- 
						- 中古一戸建て
- 2,380万円
- 
								
									八尾市萱振町7丁目 
- 
                                近鉄大阪線近鉄八尾駅 
 
 
- 
							                            
- 
				- 
							                             
- 
						- 中古一戸建て
- 3,680万円
- 
								
									守口市八雲西町1丁目 
- 
                                大阪市谷町線守口駅 
 
 
- 
							                            
- 
				- 
							                             
- 
						- 中古一戸建て
- 2,680万円
- 
								
									茨木市真砂1丁目 
- 
                                阪急電鉄京都線南茨木駅 
 
 
- 
							                            
- 
				- 
							                             
- 
						- 中古一戸建て
- 2,280万円
- 
								
									摂津市鳥飼本町1丁目 
- 
                                大阪モノレール南摂津駅 
 
 
- 
							                            
- 
				- 
							                             
- 
						- 中古一戸建て
- 1,480万円
- 
								
									東大阪市加納3丁目 
- 
                                JR片町線住道駅 
 
 
- 
							                            
- お近くの店舗を探す
- 
            
            
            
おすすめ物件
- 
				- 
														 
- 
						- 中古一戸建て
- 2,600万円
- 
								
									八尾市緑ヶ丘5丁目 
- 
								近鉄大阪線近鉄八尾 
 
 
- 
														
- 
				- 
														 
- 
						- 中古一戸建て
- 4,770万円
- 
								
									茨木市総持寺1丁目 
- 
								阪急電鉄京都線総持寺 
 
 
- 
														
- 
				- 
														 
- 
						- 中古一戸建て
- 2,980万円
- 
								
									茨木市北春日丘1丁目 
- 
								JR東海道線茨木 
 
 
- 
														
- 
				- 
														 
- 
						- 中古一戸建て
- 2,430万円
- 
								
									大阪市淀川区三津屋中1丁目 
- 
								阪急電鉄神戸線神崎川 
 
 
- 
														
- 
				- 
														 
- 
						- 中古一戸建て
- 2,490万円
- 
								
									八尾市南本町7丁目 
- 
								JR関西本線八尾 
 
 
- 
														
- 
				- 
														 
- 
						- 中古一戸建て
- 3,280万円
- 
								
									大阪市西成区鶴見橋2丁目 
- 
								JR大阪環状線今宮 
 
 
- 
														
- 
				- 
														 
- 
						- 中古一戸建て
- 3,650万円
- 
								
									大阪市住吉区万代5丁目 
- 
								南海電鉄高野線帝塚山 
 
 
- 
														
- 
				- 
														 
- 
						- 中古一戸建て
- 580万円
- 
								
									貝塚市橋本 
- 
								JR阪和線和泉橋本 
 
 
- 
														
- 
				- 
														 
- 
						- 中古一戸建て
- 1億8,000万円
- 
								
									大阪市住吉区清水丘3丁目 
- 
								南海電鉄高野線我孫子前 
 
 
- 
														
- 
				- 
														 
- 
						- 中古一戸建て
- 2,380万円
- 
								
									大阪市住之江区平林南2丁目 
- 
								南港ポートタウン線(ニュートラム)平林 
 
 
- 
														
 
     
                         
                         
                         
                    







 
                






 
                 
                     
             
                 
                    

 
                                            
 
                                             
                                             
						 
						
「購入後すぐに不具合があったらどうしよう・・・」
そんな中古住宅の不安解消をハウスドゥがサポート。
◆住宅設備あんしん保証プラス5つの安心サポート!
◇修理無制限
修理回数制限なしOK!契約期間中は、同じ部位の故障も何度でも修理可能です。
◇出張費・工賃無料
出張費、施工料、技術料0円!メーカー保証対象の修理は全て保証いたします。
◇経年劣化対応
消耗品以外なら、住宅設備の経年劣化による故障、自然故障にも対応。
◇事前審査なし
面倒な事前審査は一切ございません。今すぐといったご要望に対応可能です。
◇24時間365日コール受付
お電話一本で、簡単修理受付。全国対応24時間365日、コールセンターにてお電話受付対応いたします。
◆ハウスドゥなら確かな保証のおまもりDoで充実サポート!
◇3つのおまもりで安心プラス!
1.インスペクション
2.既存住宅保険
3.設備機器保証
※詳細、費用については担当者へお問合せください。
築年数や構造等により保証の対象とならない場合がございますので事前に必ずご確認ください。