加古川市別府町別府の中古戸建
掲載情報更新日:2025年11月17日 次回更新予定日:2025年12月01日
- 880万円
-
- 借入ご希望金額
万円 - 借入期間
年 - 借入金利
% - 月々のお支払い金額
円
- 借入ご希望金額
※ 月々のお支払例は目安の試算となりますので、実際の金額とは異なる場合がございます。詳しくは店舗までお問合わせください。
- 加古川市別府町別府
-
山陽電鉄本線『別府』 徒歩6分 (約480m)
JR山陽本線『東加古川』 徒歩32分 (約2560m)
山陽電鉄本線『浜の宮』 徒歩32分 (約2560m)
加古川市別府町別府一戸建て | 物件情報
物件の特徴
- 前道6m以上
- 2階建
物件詳細情報
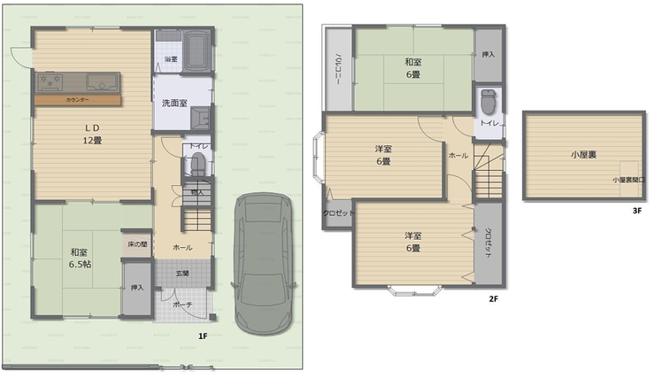
| 価格 | 880万円 | 間取り | 4DK |
|---|---|---|---|
| 物件種別 | 中古一戸建て | ||
| 所在地 | 兵庫県加古川市別府町別府 | ||
| アクセス |
|
||
| 建物面積 | 公88.59㎡ | 駐車場 | あり |
| 築年月 | 1997年(平成9年)05月築 | ||
| 建物構造 | 木造 2階建 | 工法 | |
| 主要採光 | バルコニー | ||
| 保証・評価 | |||
| リフォーム | |||
| 土地面積 | 公104.29㎡(31.54坪) | 接道 | 南東側(公道)幅 約6.4m 間口 約8.90m |
| 私道 | セットバック | ||
| 地目 | 宅地 | 地勢 | |
| 権利 | 所有権 |
||
| 都市計画 | 市街化区域 |
用途地域 | 1種住居 |
| 建ぺい/容積率 | 60% / 200% | 土地国土法 | |
| 許可番号 | 建築基準法 | ||
| 法令制限 | |||
| 小学区 | 別府小学校 徒歩11分 (約850m) | 中学区 | 別府中学校 徒歩8分 (約600m) |
| 現況 | 空 | 引渡 | 相談 |
| その他費用 | |||
| 備考 | 前面道路広々♪ お子様のいるご家庭にもおすすめです◎ リフォーム要 |
||
| 物件番号 | 4366731 | 取引態様 | 媒介 |
取扱店舗情報
ハウスドゥ 加古川インター TREK株式会社 店舗詳細ページへ
| 電話番号 | 079-451-5840 |
|---|---|
| 所在地 | 〒675-0067 兵庫県加古川市加古川町河原359-7 |
| 営業時間 | 10:00~19:00 |
| 定休日 | 水曜日、年末年始 |
| 宅建免許番号 | 兵庫県知事(1)第401686号 |
| アクセス | 店舗への地図はこちら |

来店ご予約
兵庫県加古川市で価格が似ている物件はこちら
- 兵庫県
マイページ物件数 - 2,940件
兵庫県中古一戸建て新着物件
-
-

-
- 中古一戸建て
- 2,280万円
-
高砂市今市2丁目
-
山陽電鉄本線伊保駅
-
-
-

-
- 中古一戸建て
- 1,690万円
-
加古川市平岡町一色
-
JR山陽本線東加古川駅
-
-
-

-
- 中古一戸建て
- 2,780万円
-
尼崎市南塚口町8丁目
-
阪急電鉄神戸線塚口駅
-
-
-

-
- 中古一戸建て
- 298万円
-
養父市八鹿町八鹿
-
JR山陰本線八鹿駅
-
-
-

-
- 中古一戸建て
- 1,130万円
-
加古川市野口町古大内
-
JR山陽本線東加古川駅
-
-
-

-
- 中古一戸建て
- 2,999万円
-
尼崎市大庄中通1丁目
-
阪神電鉄本線尼崎センタープール前駅
-
-
-

-
- 中古一戸建て
- 7,180万円
-
西宮市分銅町
-
阪神電鉄本線西宮駅
-
- お近くの店舗を探す
-
おすすめ物件
-
-

-
- 中古一戸建て
- 2,549万円
-
姫路市東雲町5丁目
-
JR山陽本線姫路
-
-
-

-
- 中古一戸建て
- 2,298万円
-
姫路市大津区真砂町
-
山陽電鉄網干線平松
-
-
-

-
- 中古一戸建て
- 950万円
-
加古川市別府町別府
-
山陽電鉄本線別府
-
-
-

-
- 中古一戸建て
- 630万円
-
姫路市青山6丁目
-
JR山陽本線姫路
-
-
-

-
- 中古一戸建て
- 580万円
-
姫路市保城
-
JR播但線野里
-
-
-

-
- 中古一戸建て
- 450万円
-
高砂市米田町米田
-
JR山陽本線宝殿
-
-
-

-
- 中古一戸建て
- 4,280万円
-
神戸市灘区篠原北町2丁目
-
阪急電鉄神戸線六甲
-
-
-

-
- 中古一戸建て
- 1,180万円
-
明石市大久保町谷八木
-
山陽電鉄本線中八木
-
-
-

-
- 中古一戸建て
- 2,280万円
-
神戸市北区山田町小部
-
神戸電鉄有馬線北鈴蘭台
-
-
-

-
- 中古一戸建て
- 2,890万円
-
加古川市別府町新野辺北町2丁目
-
山陽電鉄本線別府
-


