松伏町下赤岩 中古戸建
掲載情報更新日:2025年11月20日 次回更新予定日:2025年12月04日
- 730万円
-
- 借入ご希望金額
万円 - 借入期間
年 - 借入金利
% - 月々のお支払い金額
円
- 借入ご希望金額
※ 月々のお支払例は目安の試算となりますので、実際の金額とは異なる場合がございます。詳しくは店舗までお問合わせください。
- 北葛飾郡松伏町大字下赤岩
-
JR武蔵野線『吉川』 バス乗車16分 茨城急行自動車 下赤岩 停 徒歩5分 (約350m)
JR武蔵野線『越谷レイクタウン』 車14分(約5.0km)
JR武蔵野線『吉川美南』 車17分(約6.6km)
松伏町下赤岩 中古戸建一戸建て | 物件情報
陽当たり良好のお家です♪開放感あふれる明るい空間で♪
屋根付きのベランダですので、選択干すのに重宝します♪
物件の設備
- 電気
- 上水道
- 公営水道
- 浄化槽
- 個別浄化槽
- プロパンガス
- 個別プロパン
- 給湯
- IHクッキングヒータ
- グリル
- バス
- 追焚機能
- 浴室に窓
- トイレ2箇所
- 温水洗浄便座
- 室内洗濯機置場
- 洗面所独立
- ダブルロックキー
- 和室
- 2面採光
- 出窓
- フローリング
- 一部フローリング
- シャッター雨戸
- 網戸
- クローゼット
- 床下収納
- シューズボックス
- バルコニー
- 南面バルコニー
物件の特徴
- 南向
- 全室南向
- 閑静な住宅街
- 2階建
- 整形地
物件詳細情報
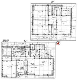
| 価格 | 730万円 | 間取り | 3LDK |
|---|---|---|---|
| 物件種別 | 中古一戸建て | ||
| 所在地 | 埼玉県北葛飾郡松伏町大字下赤岩 | ||
| アクセス |
|
||
| 建物面積 | 公72.85㎡ | 駐車場 | あり 軽:1台 |
| 築年月 | 1988年(昭和63年)10月築 | ||
| 建物構造 | 木造 スレート葺 2階建 | 工法 | |
| 主要採光 | 南向 | バルコニー | 南向3.60㎡ |
| 保証・評価 | |||
| リフォーム | |||
| 土地面積 | 公64.92㎡(19.63坪) | 接道 | 西側(公道)幅 約4.7m |
| 私道 | セットバック | ||
| 地目 | 宅地 | 地勢 | |
| 権利 | 所有権 |
||
| 都市計画 | 調整区域 都市計画法施行令36条1項3号ロに該当 |
用途地域 | 指定無 |
| 建ぺい/容積率 | 60% / 200%(一部188% 含む) | 土地国土法 | |
| 許可番号 | 建築基準法 | ||
| 法令制限 | |||
| 小学区 | 松伏小学校 徒歩28分 (約2200m) | 中学区 | 松伏第二中学校 徒歩13分 (約1000m) |
| 現況 | 居住中 | 引渡 | 相談 |
| その他費用 | |||
| 周辺環境 | セブンイレブン 松伏下赤岩店 徒歩12分 (約960m) 松伏町立松伏第二中学校 徒歩14分 (約1080m) たから幼稚園 徒歩20分 (約1550m) ジョイフーズ 松伏ゆめみ野店 徒歩22分 (約1740m) 松伏記念公園 徒歩24分 (約1910m) 松伏中央公民館 徒歩26分 (約2060m) いなげや 松伏店 徒歩29分 (約2280m) 田島南公園 徒歩29分 (約2290m) 松伏町立松伏小学校 徒歩30分 (約2390m) 埼玉あすか松伏病院 徒歩33分 (約2620m) |
||
| 備考 | ※契約不適合責任免責 ※境界非明示 ※測量図なし |
||
| 物件番号 | 4369220 | 取引態様 | 専任 |
取扱店舗情報
ハウスドゥ 吉川駅前 不二光エステート株式会社 店舗詳細ページへ
| 電話番号 | 048-940-2747 |
|---|---|
| 所在地 | 〒342-0045 埼玉県吉川市木売1丁目9番地4-101 |
| 営業時間 | 10:00~18:30 |
| 定休日 | 水曜日、GW、夏季、年末年始 |
| 宅建免許番号 | 埼玉県知事(1)第25510号 |
| アクセス | 店舗への地図はこちら |

来店ご予約
- 埼玉県
マイページ物件数 - 3,124件
埼玉県中古一戸建て新着物件
-
-

-
- 中古一戸建て
- 1,990万円
-
川越市豊田町1丁目
-
東武東上線川越駅
-
-
-

-
- 中古一戸建て
- 1,480万円
-
さいたま市桜区大字神田
-
JR埼京線与野本町駅
-
-
-

-
- 中古一戸建て
- 1,800万円
-
川口市大字榛松
-
日暮里舎人ライナー
-
-
-

-
- 中古一戸建て
- 8,800万円
-
川口市上青木西5丁目
-
JR京浜東北・根岸線蕨駅
-
-
-

-
- 中古一戸建て
- 2,800万円
-
川口市大字前野宿
-
JR京浜東北・根岸線川口駅
-
-
-

-
- 中古一戸建て
- 2,700万円
-
川口市大字安行領家
-
埼玉高速鉄道戸塚安行駅
-
-
-

-
- 中古一戸建て
- 2,399万円
-
越谷市東越谷9丁目
-
東武伊勢崎・大師線越谷駅
-
- お近くの店舗を探す
-
おすすめ物件
-
-

-
- 中古一戸建て
- 2,950万円
-
上尾市大字上野
-
JR高崎線上尾
-
-
-

-
- 中古一戸建て
- 6,580万円
-
越谷市東越谷7丁目
-
東武伊勢崎・大師線越谷
-
-
-

-
- 中古一戸建て
- 2,480万円
-
さいたま市岩槻区大字本宿
-
東武野田線岩槻
-
-
-

-
- 中古一戸建て
- 1,480万円
-
北葛飾郡松伏町田中3丁目
-
東武伊勢崎・大師線北越谷
-
-
-

-
- 中古一戸建て
- 2,880万円
-
さいたま市岩槻区城町1丁目
-
東武野田線岩槻
-
-
-

-
- 中古一戸建て
- 2,399万円
-
三郷市彦糸1丁目
-
JR武蔵野線吉川美南
-
-
-

-
- 中古一戸建て
- 2,630万円
-
越谷市大字下間久里
-
東武伊勢崎・大師線大袋
-
-
-

-
- 中古一戸建て
- 2,799万円
-
さいたま市大宮区三橋1丁目
-
JR東北本線大宮
-
-
-

-
- 中古一戸建て
- 730万円
-
北葛飾郡松伏町大字下赤岩
-
JR武蔵野線吉川
-
-
-

-
- 中古一戸建て
- 4,880万円
-
上尾市大字原市
-
湘南新宿ライン宇須東大宮
-




















担当エージェント:島田 諭
念願のマイホームにいかがですか?いつでもご案内できますので是非ご覧ください☆彡