京田辺市大住大坪の中古戸建
掲載情報更新日:2025年12月23日 次回更新予定日:2026年01月06日
- 1,780万円
-
- 借入ご希望金額
万円 - 借入期間
年 - 借入金利
% - 月々のお支払い金額
円
- 借入ご希望金額
※ 月々のお支払例は目安の試算となりますので、実際の金額とは異なる場合がございます。詳しくは店舗までお問合わせください。
- 京田辺市大住大坪
-
JR片町線『大住』 徒歩12分 (約900m)
JR片町線『京田辺』 徒歩27分 (約2120m)
近鉄京都線『新田辺』 徒歩29分 (約2320m)
京田辺市大住大坪一戸建て | 物件情報
物件の設備
- 上水道
- 下水道
- プロパンガス
物件の特徴
- 2階建
物件詳細情報
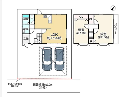
| 価格 | 1,780万円 | 間取り | 2LDK |
|---|---|---|---|
| 物件種別 | 中古一戸建て | ||
| 所在地 | 京都府京田辺市大住大坪 | ||
| アクセス |
|
||
| 建物面積 | 84.85㎡ | 駐車場 | あり 普通:2台 |
| 築年月 | 1993年(平成5年)04月築 | ||
| 建物構造 | 木造 2階建 | 工法 | |
| 主要採光 | バルコニー | ||
| 保証・評価 | |||
| リフォーム | |||
| 土地面積 | 公138.72㎡(41.96坪) | 接道 | 南東側(公道)幅 約3.0m 間口 約10.30m |
| 私道 | セットバック | ||
| 地目 | 宅地 | 地勢 | 平坦 |
| 権利 | 所有権 |
||
| 都市計画 | 市街化区域 |
用途地域 | 1種住居 |
| 建ぺい/容積率 | 60% / 160% | 土地国土法 | 届出不要 |
| 許可番号 | 建築基準法 | ||
| 法令制限 | 高度地区・宅地造成及び特定盛土等規制法・法22条区域 | ||
| 小学区 | 大住小学校 徒歩27分 (約2090m) | 中学区 | 大住中学校 徒歩25分 (約1970m) |
| 現況 | 空 | 引渡 | 期日指定:2026年03月01日以降 |
| その他費用 | |||
| 周辺環境 | ファミリーマート 京田辺大住店 徒歩12分 (約960m) JR片町線大住駅 徒歩12分 (約900m) ローソン京田辺薪店 徒歩11分 (約870m) |
||
| 備考 | 現状有姿引渡し、売主の契約不適合責任免責、 有効宅地面積133.57㎡ |
||
| 物件番号 | 4370993 | 取引態様 | 媒介 |
取扱店舗情報
| 電話番号 | 0774-64-5526 |
|---|---|
| 所在地 | 〒610-0361 京都府京田辺市河原北口19-2 |
| 営業時間 | 9:30~18:30 |
| 定休日 | 水曜日 |
| 宅建免許番号 | 京都府知事(1)第14866号 |
| アクセス | 店舗への地図はこちら |

来店ご予約
京都府京田辺市で価格が似ている物件はこちら
- 京都府
マイページ物件数 - 4,133件
最近見た物件
-
-

-
- 中古一戸建て
- 2,630万円
-
四日市市高花平1丁目
-
四日市あすなろう西日野
-
京都府中古一戸建て新着物件
-
-

-
- 中古一戸建て
- 2,999万円
-
木津川市城山台10丁目
-
JR関西本線木津駅
-
-
-

-
- 中古一戸建て
- 1,980万円
-
京田辺市大住三野
-
JR片町線大住駅
-
-
-

-
- 中古一戸建て
- 2,280万円
-
城陽市寺田築留
-
JR奈良線城陽駅
-
-
-

-
- 中古一戸建て
- 3,300万円
-
京都市西京区大原野東境谷町3丁目
-
バス「洛西バスターミナル」停
-
-
-

-
- 中古一戸建て
- 2,580万円
-
八幡市八幡馬場
-
京阪本線石清水八幡宮駅
-
-
-

-
- 中古一戸建て
- 148万円
-
福知山市夜久野町小倉
-
JR山陰本線上夜久野駅
-
-
-

-
- 中古一戸建て
- 1億800万円
-
福知山市三和町菟原下
-
JR山陰本線福知山駅
-
- お近くの店舗を探す
-
おすすめ物件
-
-

-
- 中古一戸建て
- 2,150万円
-
京田辺市薪堀切谷
-
JR片町線京田辺
-
-
-

-
- 中古一戸建て
- 4,900万円
-
宇治市木幡御蔵山
-
JR奈良線六地蔵
-
-
-

-
- 中古一戸建て
- 2,880万円
-
相楽郡精華町大字菱田小字宮川原
-
近鉄京都線狛田
-
-
-

-
- 中古一戸建て
- 3,499万円
-
相楽郡精華町光台9丁目
-
近鉄けいはんな線学研奈良登美ヶ丘
-
-
-

-
- 中古一戸建て
- 1,290万円
-
舞鶴市行永東町
-
JR舞鶴線東舞鶴
-
-
-

-
- 中古一戸建て
- 880万円
-
舞鶴市字余部下
-
JR舞鶴線東舞鶴
-
-
-

-
- 中古一戸建て
- 2,980万円
-
京田辺市三山木西荒木
-
JR片町線JR三山木
-
-
-

-
- 中古一戸建て
- 2,500万円
-
舞鶴市字魚屋
-
JR舞鶴線西舞鶴
-
-
-

-
- 中古一戸建て
- 3,880万円
-
京田辺市花住坂2丁目
-
JR片町線松井山手
-
-
-

-
- 中古一戸建て
- 780万円
-
舞鶴市字田中
-
JR舞鶴線東舞鶴
-









