鶴ヶ島市新町4丁目の中古戸建
掲載情報更新日:2025年09月22日 次回更新予定日:2025年10月06日
- 2,480万円
-
- 借入ご希望金額
万円 - 借入期間
年 - 借入金利
% - 月々のお支払い金額
円
- 借入ご希望金額
※ 月々のお支払例は目安の試算となりますので、実際の金額とは異なる場合がございます。詳しくは店舗までお問合わせください。
- 鶴ヶ島市新町4丁目
-
東武越生線『一本松』 徒歩11分 (約880m)
鶴ヶ島市新町4丁目一戸建て | 物件情報
・東武越生線「一本松」駅より徒歩11分の立地~全室南西向き、日当たりの良い3SLDK
~只今キャンペーン中~ご成約頂いたお客様にもれなく1万円分のクオカードを進呈中~
・東武越生線「一本松」駅より徒歩11分の立地
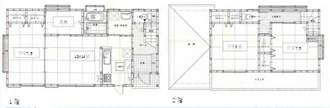
・土地面積186.81平米、建物面積95.22平米の3SLDK
・全室南西向きにつき日当たり良好です
・全居室6帖以上でゆとりのある間取り
・納戸や収納スペース豊富でお片付けも楽々
・保育園、小学校が近く子育てしやすい環境
~お気軽にお問い合わせ下さい~
物件の設備
- 電気
- 公営水道
- 公共下水
- 都市ガス
- カウンターキッチン
- システムキッチン
- バス
- バス1坪以上
- 浴室に窓
- トイレ
- トイレ2箇所
- 室内洗濯機置場
- 洗面所独立
- エアコン
- エアコン2基
- エアコン3基
- エアコン4基以上
- 照明器具
- モニタ付インターホン
- 全居室6畳以上
- 2面採光
- 出窓
- クローゼット
- クローゼット2箇所
- クローゼット3箇所
- 納戸
- 全居室収納
- シューズボックス
- 庭
- サンルーム
物件の特徴
- 全室南西向
- 小学校徒歩10分以内
- 前道6m以上
- スーパーが近い
- 閑静な住宅街
- 通風良好
- 陽当り良好
- 2階建
- 整形地
物件詳細情報
価格 | 2,480万円 | 間取り | 3LDK+S |
---|---|---|---|
物件種別 | 中古一戸建て | ||
所在地 | 埼玉県鶴ヶ島市新町4丁目 | ||
アクセス |
|
||
建物面積 | 公95.22㎡ | 駐車場 | あり 普通:2台 |
築年月 | 2003年(平成15年)03月築 | ||
建物構造 | 木造 2階建 | 工法 | |
主要採光 | 南西向 | バルコニー | |
保証・評価 | |||
リフォーム | |||
土地面積 | 公186.81㎡(56.51坪) | 接道 | 南西側(公道)幅 約6.0m |
私道 | セットバック | 無 | |
地目 | 宅地 | 地勢 | |
権利 | 所有権 |
||
都市計画 | 市街化区域 |
用途地域 | 1種低層 |
建ぺい/容積率 | 50% / 100% | 土地国土法 | |
許可番号 | 建築基準法 | ||
法令制限 | |||
小学区 | 新町小学校 徒歩1分 (約80m) | 中学区 | 西中学校 徒歩3分 (約220m) |
現況 | 空 | 引渡 | 相談 |
その他費用 | |||
周辺環境 | あたご保育園 徒歩1分 (約80m) 大家幼稚園 徒歩13分 (約1020m) 鶴ケ島市立 新町小学校 徒歩1分 (約80m) 鶴ヶ島市立西中学校 徒歩3分 (約220m) ローソン 鶴ヶ島上新田店 徒歩3分 (約200m) ヤオコー 一本松南店 徒歩3分 (約200m) ベイシア ひだかモール店 徒歩35分 (約2730m) ドラッグセイムス 鶴ケ島一本松店 徒歩4分 (約300m) 坂戸森戸郵便局 徒歩11分 (約840m) 一本松クリニック 徒歩17分 (約1340m) |
||
備考 | |||
物件番号 | 4372331 | 取引態様 | 媒介 |
取扱店舗情報
ハウスドゥ 上福岡 GLOBAL HOLDINGS株式会社 店舗詳細ページへ
電話番号 | 049-264-1010 |
---|---|
所在地 | 〒356-0006 埼玉県ふじみ野市霞ケ丘1丁目2番27 ココネ上福岡1F |
営業時間 | 9:00~19:00 |
定休日 | 水曜日、年末年始 |
宅建免許番号 | 埼玉県知事(3)第22701号 |
アクセス | 店舗への地図はこちら |
来店ご予約
埼玉県鶴ヶ島市で価格が似ている物件はこちら
- 埼玉県
マイページ物件数 - 3,813件
埼玉県中古一戸建て新着物件
-
-
-
- 中古一戸建て
- 880万円
-
ふじみ野市元福岡3丁目
-
東武東上線上福岡駅
-
-
-
-
- 中古一戸建て
- 1,980万円
-
所沢市大字下安松
-
西武池袋・豊島線
-
-
-
-
- 中古一戸建て
- 1,100万円
-
北足立郡伊奈町大字小室
-
JR東北本線蓮田駅
-
-
-
-
- 中古一戸建て
- 2,150万円
-
蓮田市大字黒浜
-
JR東北本線蓮田駅
-
-
-
-
- 中古一戸建て
- 980万円
-
比企郡川島町八幡2丁目
-
東武東上線若葉駅
-
-
-
-
- 中古一戸建て
- 2,199万円
-
所沢市中富南3丁目
-
JR武蔵野線東所沢駅
-
-
-
-
- 中古一戸建て
- 2,680万円
-
越谷市柳町
-
東武伊勢崎・大師線越谷駅
-
- お近くの店舗を探す
-
おすすめ物件
-
-
-
- 中古一戸建て
- 2,880万円
-
さいたま市岩槻区城町1丁目
-
東武野田線岩槻
-
-
-
-
- 中古一戸建て
- 2,630万円
-
越谷市大字下間久里
-
東武伊勢崎・大師線大袋
-
-
-
-
- 中古一戸建て
- 1,198万円
-
鴻巣市南2丁目
-
JR高崎線吹上
-
-
-
-
- 中古一戸建て
- 1,990万円
-
川越市大字的場
-
JR川越線的場
-
-
-
-
- 中古一戸建て
- 450万円
-
大里郡寄居町大字富田
-
東武東上線男衾
-
-
-
-
- 中古一戸建て
- 1,250万円
-
北足立郡伊奈町大字小室
-
埼玉新都市交通丸山
-
-
-
-
- 中古一戸建て
- 4,380万円
-
さいたま市緑区大字中尾
-
JR武蔵野線東浦和
-
-
-
-
- 中古一戸建て
- 2,780万円
-
さいたま市岩槻区大字岩槻
-
東武野田線東岩槻
-
-
-
-
- 中古一戸建て
- 1,250万円
-
さいたま市岩槻区本丸3丁目
-
東武野田線東岩槻
-
-
-
-
- 中古一戸建て
- 1,420万円
-
加須市琴寄
-
JR東北本線栗橋
-
担当エージェント:加藤 柊
弊社はより多くの方が購入し易いリーズナブルな価格の中古物件を取り揃えております。お客様一人一人のニーズに合った物件探しをモットーに全力でサポート致します。是非お気軽にご相談下さい。