中古戸建 総社市総社1丁目 総社小学校・総社東中学校エリア
掲載情報更新日:2026年04月14日 次回更新予定日:2026年04月28日
- 1,548万円
-
- 借入ご希望金額
万円 - 借入期間
年 - 借入金利
% - 月々のお支払い金額
円
- 借入ご希望金額
※ 月々のお支払例は目安の試算となりますので、実際の金額とは異なる場合がございます。詳しくは店舗までお問合わせください。
- 総社市総社1丁目
-
JR吉備線『東総社』 徒歩6分 (約480m)
JR伯備線『総社』 徒歩20分 (約1600m)
中古戸建 総社市総社1丁目 総社小学校・総社東中学校エリア一戸建て | 物件情報
【店舗用地をお探しの方必見!】ロードサイド店舗や事務所、倉庫など、幅広い用途にいかがですか♪
◎ネットからご来店予約でQuoカード1000円分プレゼント!
☆東総社駅 徒歩6分!スーパー徒歩3分の好立地
☆集客に適した立地に 店舗用地あり!
\*おすすめPOINT*/
・小学校・中学校まで徒歩10分圏内で通学安心♪
・応接室や書斎、仕事部屋によい洋室あり♪
・日々の暮らしに困らない周辺施設充実エリア♪
★周辺環境★
総社小学校 徒歩約10分(800m)
マルナカ総社店 徒歩約3分(180m)
総社みみ・はな・のどクリニック 徒歩約4分(310m)
『全国700店舗展開の情報ネットワーク!』
◆物件見学・オープンハウス随時開催!◆
◇資金計画、住宅ローン、リフォーム、火災保険
◇弊社提携の銀行員や税理士による無料相談
◇店内にキッズコーナー
◇ドリンクサービス充実
お一人でのご来店、お子様を連れてのご来店も可能です
お気軽にお問い合わせください♪
☆―ご予約・お問合せ―☆
ハウスドゥ総社:0866-95-2775
までお問い合わせください!
物件の設備
- 上水道
- 下水道
- プロパンガス
- バス
- バス1坪以上
- 浴室乾燥機
- トイレ
- トイレ2箇所
- トイレ3箇所
- 室内洗濯機置場
- 洗面所独立
- 和室
- 2面採光
- フローリング
- 一部フローリング
- 床下収納
物件の特徴
- 始発駅
- 2沿線利用可
- 3沿線以上利用可
- 小学校徒歩10分以内
- 前道6m以上
- 緑豊かな住宅地
- スーパーが近い
- 閑静な住宅街
- 市街地が近い
- 山が見える
- 2階建
- 平坦地
物件詳細情報
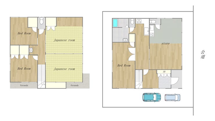
| 価格 | 1,548万円 | 間取り | 5DK |
|---|---|---|---|
| 物件種別 | 中古一戸建て | ||
| 所在地 | 岡山県総社市総社1丁目3-18 | ||
| アクセス |
|
||
| 建物面積 | 112.21㎡ | 駐車場 | あり 普通:1台 軽:1台 |
| 築年月 | 1978年(昭和53年)12月築 | ||
| 建物構造 | 木造 2階建 | 工法 | |
| 主要採光 | バルコニー | ||
| 保証・評価 | |||
| リフォーム | |||
| 土地面積 | 公104.24㎡(31.53坪) | 接道 | 東側(公道)幅 約7.1m 間口 約11.20m |
| 私道 | セットバック | ||
| 地目 | 宅地 | 地勢 | 平坦 |
| 権利 | 所有権 |
||
| 都市計画 | 市街化区域 |
用途地域 | 1種住居 |
| 建ぺい/容積率 | 60% / 200% | 土地国土法 | |
| 許可番号 | 建築基準法 | ||
| 法令制限 | 景観法 | ||
| 小学区 | 総社小学校 徒歩10分 (約800m) | 中学区 | 総社東中学校 徒歩10分 (約750m) |
| 現況 | 空 | 引渡 | 相談 |
| その他費用 | |||
| 周辺環境 | マルナカ総社店 徒歩3分 (約180m) 総社みみ・はな・のどクリニック 徒歩4分 (約310m) 吉備信用金庫 徒歩6分 (約420m) ふじかわ眼科 徒歩7分 (約490m) 東総社駅 徒歩6分 (約470m) ザグザグ総社店 徒歩7分 (約500m) 総社市立総社南幼稚園 徒歩7分 (約510m) たなか耳鼻咽喉クリニック 徒歩7分 (約540m) くにとみクリニック 徒歩9分 (約650m) 総社市図書館 徒歩7分 (約540m) |
||
| 備考 | 町内会あり 6000円/年 毎月第2月曜日:そうじあり |
||
| 物件番号 | 4375711 | 取引態様 | 専任媒介 |
取扱店舗情報
| 電話番号 | 0866-95-2775 |
|---|---|
| 所在地 | 〒719-1131 岡山県総社市中央1丁目21-101 |
| 営業時間 | 10:00~18:00 |
| 定休日 | 火曜日、水曜日、年末年始 |
| 宅建免許番号 | 岡山県知事(2)第5846号 |
| アクセス | 店舗への地図はこちら |

来店ご予約
岡山県総社市で価格が似ている物件はこちら
- 岡山県
マイページ物件数 - 4,659件
最近見た物件
-
-

-
- 新築一戸建て
- 2,688万円
-
佐賀市諸富町大字為重上下
-
上下
-
-
-

-
- 中古一戸建て
- 2,730万円
-
甲斐市篠原
-
JR中央本線甲府
-
-
-

-
- 中古一戸建て
- 2,700万円
-
横手市旭川3丁目
-
JR奥羽本線横手
-
岡山県中古一戸建て新着物件
-
-

-
- 中古一戸建て
- 2,108万円
-
岡山市中区平井3丁目
-
岡山電軌東山本線東山岡電ミュージアム駅
-
-
-

-
- 中古一戸建て
- 2,360万円
-
倉敷市真備町岡田
-
JR伯備線清音駅
-
-
-

-
- 中古一戸建て
- 3,490万円
-
倉敷市児島田の口5丁目
-
JR本四備讃線上の町駅
-
-
-

-
- 中古一戸建て
- 4,500万円
-
倉敷市平田
-
JR山陽本線倉敷駅
-
-
-

-
- 中古一戸建て
- 2,080万円
-
倉敷市連島町鶴新田
-
水島臨海鉄道三菱自工前駅
-
-
-

-
- 中古一戸建て
- 2,800万円
-
加賀郡吉備中央町上野
-
中鉄バス北部住区
-
-
-

-
- 中古一戸建て
- 2,080万円
-
総社市井尻野
-
JR伯備線総社駅
-
- お近くの店舗を探す
-
おすすめ物件
-
-

-
- 中古一戸建て
- 350万円
-
久米郡美咲町宮山
-
JR姫新線美作大崎
-
-
-

-
- 中古一戸建て
- 2,900万円
-
倉敷市東町
-
JR山陽本線倉敷
-
-
-

-
- 中古一戸建て
- 450万円
-
倉敷市児島柳田町
-
JR本四備讃線上の町
-
-
-

-
- 中古一戸建て
- 1,000万円
-
倉敷市児島小川7丁目
-
JR本四備讃線児島
-
-
-

-
- 中古一戸建て
- 3,900万円
-
倉敷市羽島
-
JR山陽本線倉敷
-
-
-

-
- 中古一戸建て
- 3,500万円
-
倉敷市玉島乙島
-
JR山陽本線新倉敷
-
-
-

-
- 中古一戸建て
- 780万円
-
津山市山北
-
JR津山線津山
-
-
-

-
- 中古一戸建て
- 2,850万円
-
倉敷市広江7丁目
-
JR本四備讃線木見
-
-
-

-
- 中古一戸建て
- 1,099万円
-
津山市中村
-
JR因美線高野
-
-
-

-
- 中古一戸建て
- 4,680万円
-
総社市中央1丁目
-
JR伯備線総社
-



















担当エージェント:増田 健太
★初めてお問い合わせいただくお客様へ
1.物件について詳細をご説明します。(オンライン可)
2.お客様のご希望をどうぞお聞かせください♪
3.今後の流れを具体的にご案内
所要時間:約30分~1時間
★物件を見に行こう
所要時間: 1時間~1時間半(移動時間を除く)
気になる物件をじっくりとご確認いただけます。
現地で実際に確かめてください♪
周辺環境など実際の生活を想定したご案内をします。
+‥‥▼お電話でのご予約、ご質問・ご要望はこちらまで▼‥‥+
TEL:0866-95-2775
ハウスドゥ 総社
◆ご売却◆
売却相談、査定も承っております。
相続やお住み替え、リースバック
不用品の処分や片付けも対応!
ご売却までの流れなどお気軽にご相談ください。