泉佐野市中庄の中古戸建
掲載情報更新日:2026年01月12日 次回更新予定日:2026年01月26日
- 780万円
-
- 借入ご希望金額
万円 - 借入期間
年 - 借入金利
% - 月々のお支払い金額
円
- 借入ご希望金額
※ 月々のお支払例は目安の試算となりますので、実際の金額とは異なる場合がございます。詳しくは店舗までお問合わせください。
- 泉佐野市中庄
-
南海電鉄本線『井原里』 徒歩7分 (約560m)
泉佐野市中庄一戸建て | 物件情報
物件の設備
- 上水道
- 浄化槽
- 都市ガス
- 給湯
- 浴室に窓
- 温水洗浄便座
- 室内洗濯機置場
- モニタ付インターホン
- 和室
- フローリング
- 床下収納
物件の特徴
- 前道6m以上
- 2階建
物件詳細情報
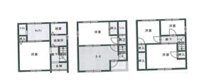
| 価格 | 780万円 | 間取り | 5DK |
|---|---|---|---|
| 物件種別 | 中古一戸建て | ||
| 所在地 | 大阪府泉佐野市中庄 | ||
| アクセス |
|
||
| 建物面積 | 83.25㎡ | 駐車場 | あり 普通:1台 |
| 築年月 | 1980年(昭和55年)03月築 | ||
| 建物構造 | 木造 2階建 | 工法 | |
| 主要採光 | バルコニー | ||
| 保証・評価 | |||
| リフォーム | |||
| 土地面積 | 公83.59㎡(25.28坪) | 接道 | 南西側(公道)幅 約6.2m 間口 約7.30m |
| 私道 | セットバック | ||
| 地目 | 宅地 | 地勢 | |
| 権利 | 所有権 |
||
| 都市計画 | 市街化区域 |
用途地域 | 1種住居 |
| 建ぺい/容積率 | 60% / 200% | 土地国土法 | 届出不要 |
| 許可番号 | 建築基準法 | ||
| 法令制限 | 宅地造成工事規制区域・法22条区域・道路斜線制限・隣地斜線制限 | ||
| 小学区 | 日新小学校 徒歩7分 (約550m) | 中学区 | 新池中学校 徒歩32分 (約2500m) |
| 現況 | 空 | 引渡 | 相談 |
| その他費用 | |||
| 備考 | ◆2階建て広々5DK!南西向きで日当たり良好♪ ◆小学校まで徒歩10分圏内で通学も安心! ◆生活利便施設が徒歩圏内に揃う好立地 ※令和7年度固定資産税等:32.169円 |
||
| 物件番号 | 4376058 | 取引態様 | 媒介 |
取扱店舗情報
ハウスドゥ 熊取・泉佐野北 株式会社ルート1 店舗詳細ページへ
| 電話番号 | 072-493-8089 |
|---|---|
| 所在地 | 〒590-0458 大阪府泉南郡熊取町朝代西3丁目749-3 |
| 営業時間 | 10:00-19:00 |
| 定休日 | 水曜日・第一火曜日・年末年始 |
| 宅建免許番号 | 大阪府知事(3)第56748号 |
| アクセス | 店舗への地図はこちら |

来店ご予約
大阪府泉佐野市で価格が似ている物件はこちら
- 大阪府
マイページ物件数 - 16,543件
最近見た物件
-
-

-
- 土地
- 430万円
-
出雲市平田町
-
一畑電車北松江線雲州平田
-
-
-

-
- 中古一戸建て
- 1,380万円
-
大東市緑が丘2丁目
-
JR片町線野崎
-
-
-

-
- 土地
- 1,980万円
-
春日井市東野町8丁目
-
JR中央本線春日井
-
大阪府中古一戸建て新着物件
-
-

-
- 中古一戸建て
- 2,549万円
-
高槻市竹の内町
-
京阪本線枚方公園駅
-
-
-

-
- 中古一戸建て
- 9,380万円
-
吹田市千里山東1丁目
-
阪急電鉄千里線関大前駅
-
-
-

-
- 中古一戸建て
- 9,380万円
-
吹田市千里山東1丁目
-
阪急電鉄千里線関大前駅
-
-
-

-
- 中古一戸建て
- 2,098万円
-
貝塚市畠中2丁目
-
水間鉄道水間線貝塚市役所前駅
-
-
-

-
- 中古一戸建て
- 1億3,800万円
-
大阪市西淀川区佃1丁目
-
阪神電鉄本線千船駅
-
-
-

-
- 中古一戸建て
- 1,240万円
-
豊中市島江町2丁目
-
阪急電鉄神戸線神崎川駅
-
-
-

-
- 中古一戸建て
- 2,400万円
-
高槻市津之江町2丁目
-
JR東海道線高槻駅
-
- お近くの店舗を探す
-
おすすめ物件
-
-

-
- 中古一戸建て
- 2,080万円
-
八尾市太田2丁目
-
大阪市谷町線八尾南
-
-
-

-
- 中古一戸建て
- 7,800万円
-
堺市南区高倉台4丁
-
南海電鉄泉北線泉ケ丘
-
-
-

-
- 中古一戸建て
- 3,880万円
-
東大阪市長瀬町2丁目
-
JRおおさか東線JR長瀬
-
-
-

-
- 中古一戸建て
- 1,800万円
-
大阪市淀川区三国本町3丁目
-
阪急電鉄宝塚線三国
-
-
-

-
- 中古一戸建て
- 4,490万円
-
大阪市住吉区万代東2丁目
-
大阪市御堂筋線西田辺
-
-
-

-
- 中古一戸建て
- 2,380万円
-
大阪市住之江区平林南2丁目
-
南港ポートタウン線(ニュートラム)平林
-
-
-

-
- 中古一戸建て
- 4,480万円
-
川西市西畦野2丁目
-
能勢電鉄山下
-
-
-

-
- 中古一戸建て
- 2,580万円
-
大阪市住吉区山之内3丁目
-
JR阪和線杉本町
-
-
-

-
- 中古一戸建て
- 580万円
-
河内長野市大矢船中町
-
南海電鉄高野線三日市町
-
-
-

-
- 中古一戸建て
- 2,320万円
-
高槻市赤大路町
-
JR東海道線摂津富田
-


