高岡市関町の中古戸建
掲載情報更新日:2025年11月25日 次回更新予定日:2025年12月09日
- 380万円
-
- 借入ご希望金額
万円 - 借入期間
年 - 借入金利
% - 月々のお支払い金額
円
- 借入ご希望金額
※ 月々のお支払例は目安の試算となりますので、実際の金額とは異なる場合がございます。詳しくは店舗までお問合わせください。
- 高岡市関町
-
JR氷見線『高岡』 徒歩12分 (約920m)
JR城端線『高岡』 徒歩12分 (約930m)
あいの風とやま鉄道『高岡』 徒歩12分 (約920m)
高岡市関町一戸建て | 物件情報
歴史を受け継ぐ佇まい。今も息づく伝統の住まい
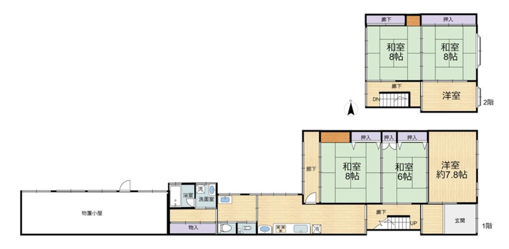
1階・2階ともに広々とした和室を備え、畳の香りに包まれた心安らぐ空間です。
歴史を感じる佇まいを残しつつ、自分好みにアレンジできる可能性があります。
物件の設備
- 電気
- 上水道
- 下水道
- 都市ガス
- コンロ三口
- システムキッチン
- 庭
物件の特徴
- 2階建
- 即入居可
物件詳細情報
| 価格 | 380万円 | 間取り | 6K |
|---|---|---|---|
| 物件種別 | 中古一戸建て | ||
| 所在地 | 富山県高岡市関町 | ||
| アクセス |
|
||
| 建物面積 | 120.58㎡ | 駐車場 | あり |
| 築年月 | 1908年(明治41年)01月築 | ||
| 建物構造 | 木造 2階建 | 工法 | |
| 主要採光 | 東向 | バルコニー | |
| 保証・評価 | |||
| リフォーム | |||
| 土地面積 | 公373.91㎡(113.10坪) | 接道 | 東側(公道)幅 約5.0m 間口 約6.00m |
| 私道 | セットバック | ||
| 地目 | 宅地 | 地勢 | |
| 権利 | 所有権 |
||
| 都市計画 | 市街化区域 |
用途地域 | 1種住居 |
| 建ぺい/容積率 | 60% / 300% | 土地国土法 | |
| 許可番号 | 建築基準法 | ||
| 法令制限 | |||
| 小学区 | 博労小学校 徒歩11分 (約880m) | 中学区 | 南星中学校 徒歩15分 (約1150m) |
| 現況 | 空 | 引渡 | 即 |
| その他費用 | |||
| 周辺環境 | ファミリーマート 高岡末広町店 徒歩7分 (約550m) セブンイレブン 高岡駅南4丁目店 徒歩7分 (約530m) ファミリーマート 高岡駅南一丁目店 徒歩9分 (約670m) 高岡ステーションビル クルン高岡 徒歩12分 (約920m) 高岡(JR氷見線) 徒歩12分 (約920m) 高岡(万葉線) 徒歩10分 (約780m) クスリのアオキ 高岡駅南店 徒歩10分 (約740m) ローソン 高岡駅北口店 徒歩12分 (約920m) 高岡市立博労小学校 徒歩11分 (約880m) 高岡市立南星中学校 徒歩15分 (約1150m) |
||
| 備考 | ◆司法書士は売主指定 ◆明治41年(月は不明です)築、昭和42年12月・昭和49年12月増築。 ◆生活環境良好 ◆物置小屋あり |
||
| 物件番号 | 4387118 | 取引態様 | 媒介 |
取扱店舗情報
ハウスドゥ 高岡野村 株式会社ことぶき不動産 店舗詳細ページへ
| 電話番号 | 0766-23-2030 |
|---|---|
| 所在地 | 〒933-0014 富山県高岡市野村1536番地17 アーバンビル1階B号室 |
| 営業時間 | 10:00~18:00 |
| 定休日 | 水曜日・祝日 |
| 宅建免許番号 | 富山県知事(1)第3303号 |
| アクセス | 店舗への地図はこちら |

来店ご予約
富山県高岡市で価格が似ている物件はこちら
- 富山県
マイページ物件数 - 777件
最近見た物件
-
-

-
- 中古マンション
- 3,380万円
-
西宮市泉町
-
阪神電鉄本線香櫨園
-
-
-

-
- 中古マンション
- 2,890万円
-
大阪市西淀川区佃2丁目
-
阪神電鉄本線千船
-
-
-

-
- 中古一戸建て
- 450万円
-
岩出市中迫
-
JR和歌山線岩出
-
富山県中古一戸建て新着物件
- お近くの店舗を探す
-
おすすめ物件
-
-

-
- 中古一戸建て
- 980万円
-
富山市向新庄町1丁目
-
富山地鉄本線越中荏原
-
-
-

-
- 中古一戸建て
- 120万円
-
射水市港町
-
万葉線第一イン新湊クロスベ
-
-
-

-
- 中古一戸建て
- 855万円
-
富山市岩瀬文化町
-
富山地鉄富山港線競輪場前
-
-
-

-
- 中古一戸建て
- 1,990万円
-
富山市婦中町広田
-
婦中コミュニティバス田村たまご店前
-
-
-

-
- 中古一戸建て
- 3,480万円
-
富山市中冨居
-
あいの風とやま鉄道新富山口
-
-
-

-
- 中古一戸建て
- 750万円
-
高岡市伏木古府元町
-
JR氷見線伏木
-
-
-

-
- 中古一戸建て
- 50万円
-
射水市本町3丁目
-
万葉線第一イン新湊クロスベ
-
-
-

-
- 中古一戸建て
- 2,980万円
-
富山市有沢
-
富山地鉄富山市内線トヨタGスクエア五福
-
-
-

-
- 中古一戸建て
- 2,680万円
-
富山市新根塚町1丁目
-
あいの風とやま鉄道富山
-
-
-

-
- 中古一戸建て
- 1,598万円
-
高岡市野村
-
万葉線旭ヶ丘
-











実際にご覧いただくと、写真以上に魅力を感じていただけると思います。お気軽にお問い合わせください!