宇都宮市泉が丘2丁目の中古戸建
掲載情報更新日:2025年10月18日 次回更新予定日:2025年11月01日
- 2,580万円
-
- 借入ご希望金額
万円 - 借入期間
年 - 借入金利
% - 月々のお支払い金額
円
- 借入ご希望金額
※ 月々のお支払例は目安の試算となりますので、実際の金額とは異なる場合がございます。詳しくは店舗までお問合わせください。
- 宇都宮市泉が丘2丁目
-
JR東北本線『宇都宮』 徒歩30分 (約2360m)
宇都宮市泉が丘2丁目一戸建て | 物件情報
宇都宮芳賀ライトレール線陽東3丁目駅 徒歩8分
人気の泉が丘エリア
学校・スーパーも近く住環境良いです♪
LRT陽東3丁目駅まで徒歩8分!!
通勤通学にも便利
コンビニまで徒歩5分♪
*お子様の遊び場にも使えるロフト付き
物件の設備
- 電気
- 公営水道
- 公共下水
- 都市ガス
- 給湯
- グリル
- カウンターキッチン
- システムキッチン
- 追焚機能
- 浴室に窓
- トイレ2箇所
- 温水洗浄便座
- ロフト
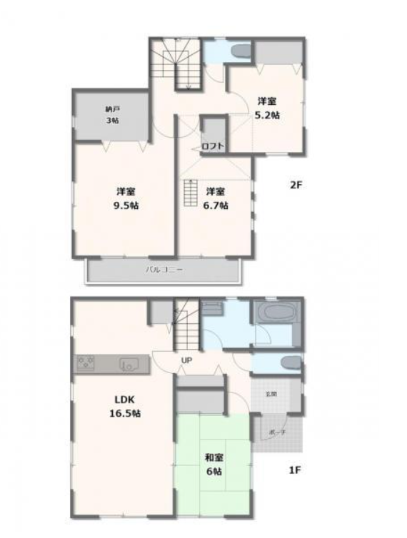
- LDK15畳以上
- 2面採光
- 床下収納
- 全居室収納
物件の特徴
- 2階建
物件詳細情報
価格 | 2,580万円 | 間取り | 4LDK |
---|---|---|---|
物件種別 | 中古一戸建て | ||
所在地 | 栃木県宇都宮市泉が丘2丁目 | ||
アクセス |
|
||
建物面積 | 106.1㎡ | 駐車場 | あり 普通:2台 |
築年月 | 2014年(平成26年)09月築 | ||
建物構造 | 木造 2階建 | 工法 | |
主要採光 | バルコニー | ||
保証・評価 | |||
リフォーム | |||
土地面積 | 123.54㎡(37.37坪) | 接道 | 南東側幅 約4.1m |
私道 | 含:28.00㎡ | セットバック | |
地目 | 宅地 | 地勢 | |
権利 | 所有権 |
||
都市計画 | 市街化区域 |
用途地域 | 1種住居 |
建ぺい/容積率 | 60% / 200% | 土地国土法 | |
許可番号 | 建築基準法 | ||
法令制限 | |||
小学区 | 泉が丘小学校 徒歩12分 (約891m) | 中学区 | 泉が丘中学校 徒歩15分 (約1163m) |
現況 | 居住中 | 引渡 | 期日指定:2025年10月以降 |
その他費用 | |||
周辺環境 | ローソン 宇都宮泉が丘1丁目店 徒歩8分 (約570m) 泉が丘小学校 徒歩9分 (約700m) 宇都宮市立泉が丘中学校 徒歩13分 (約990m) |
||
備考 | 令和6年7月頃に駐車場浸水履歴あり | ||
物件番号 | 4391648 | 取引態様 | 媒介 |
取扱店舗情報
ハウスドゥ 中戸祭 株式会社ケイズ・ネクスト 店舗詳細ページへ
電話番号 | 028-680-4339 |
---|---|
所在地 | 〒320-0052 栃木県宇都宮市中戸祭町867-3 イステートハイツ中戸祭 |
営業時間 | 9:00~18:00 |
定休日 | 水曜日・夏休暇・GW・年末年始 |
宅建免許番号 | 栃木県知事(1)第5469号 |
アクセス | 店舗への地図はこちら |
来店ご予約
栃木県宇都宮市で価格が似ている物件はこちら
- 栃木県
マイページ物件数 - 6,522件
栃木県中古一戸建て新着物件
-
-
-
- 中古一戸建て
- 1,680万円
-
宇都宮市新里町
-
東武宇都宮線東武宇都宮駅
-
-
-
-
- 中古一戸建て
- 1,780万円
-
宇都宮市西川田本町1丁目
-
東武宇都宮線西川田駅
-
-
-
-
- 中古一戸建て
- 1,399万円
-
栃木市大宮町
-
東武日光線新栃木駅
-
-
-
-
- 中古一戸建て
- 3,480万円
-
佐野市堀米町
-
東武佐野線堀米駅
-
-
-
-
- 中古一戸建て
- 1,600万円
-
宇都宮市西川田5丁目
-
東武宇都宮線西川田駅
-
-
-
-
- 中古一戸建て
- 1,799万円
-
真岡市長田2丁目
-
真岡鉄道真岡駅
-
-
-
-
- 中古一戸建て
- 790万円
-
宇都宮市駒生町
-
JR東北本線宇都宮駅
-
- お近くの店舗を探す
-
おすすめ物件
-
-
-
- 中古一戸建て
- 1億2,000万円
-
宇都宮市鶴田町
-
東武宇都宮線東武宇都宮
-
-
-
-
- 中古一戸建て
- 3,490万円
-
芳賀郡芳賀町大字八ツ木
-
宇都宮芳賀ライト線芳賀・高根沢工業団地
-
-
-
-
- 中古一戸建て
- 2,780万円
-
宇都宮市石井町
-
宇都宮芳賀ライト線平石中央小学校前
-
-
-
-
- 中古一戸建て
- 3,080万円
-
鹿沼市玉田町
-
東武日光線北鹿沼
-
-
-
-
- 中古一戸建て
- 1,980万円
-
宇都宮市下平出町
-
宇都宮芳賀ライト線平石中央小学校前
-
-
-
-
- 中古一戸建て
- 2,480万円
-
宇都宮市城南2丁目
-
JR東北本線雀宮
-
-
-
-
- 中古一戸建て
- 3,280万円
-
宇都宮市戸祭3丁目
-
東武宇都宮線東武宇都宮
-
-
-
-
- 中古一戸建て
- 2,200万円
-
宇都宮市星が丘2丁目
-
東武宇都宮線東武宇都宮
-
-
-
-
- 中古一戸建て
- 3,280万円
-
宇都宮市西刑部町
-
関東バス【中央橋】
-
-
-
-
- 中古一戸建て
- 1億3,000万円
-
宇都宮市陽東5丁目
-
宇都宮芳賀ライト線宇都宮大学陽東キャンパス
-
都市ガスエリアの為家計に優しい♪
LRT陽東3丁目駅も近いので、宇都宮駅まで楽々です!!
スーパー・コンビニも近く便利
お子様も安心の小学校・中学校も近く安心