大阪市西淀川区姫里3丁目の中古戸建
掲載情報更新日:2025年12月01日 次回更新予定日:2025年12月15日
- 3,890万円
-
- 借入ご希望金額
万円 - 借入期間
年 - 借入金利
% - 月々のお支払い金額
円
- 借入ご希望金額
※ 月々のお支払例は目安の試算となりますので、実際の金額とは異なる場合がございます。詳しくは店舗までお問合わせください。
- 大阪市西淀川区姫里3丁目
-
JR東西線『御幣島』 徒歩9分 (約720m)
阪神電鉄本線『姫島』 徒歩9分 (約720m)
大阪市西淀川区姫里3丁目一戸建て | 物件情報
物件の設備
- 公営水道
- 公共下水
- 都市ガス
- 給湯
- 食器洗浄乾燥機
- システムキッチン
- ユニットバス
- 浴室乾燥機
- 室内洗濯機置場
- 洗髪洗面化粧台
- 洗面所独立
- 床暖房
- LDK15畳以上
- フローリング張替
- クローゼット
- クローゼット2箇所
- クローゼット3箇所
- シューズボックス
- バルコニー
物件の特徴
- 内装リフォーム済
- 小学校徒歩10分以内
- スーパーが近い
- 市街地が近い
- 通風良好
- 陽当り良好
- 3階建以上
- 設備保証付
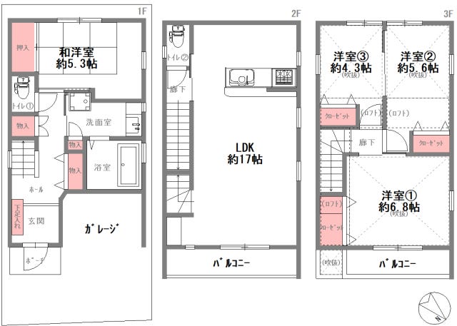
物件詳細情報
| 価格 | 3,890万円 | 間取り | 4LDK |
|---|---|---|---|
| 物件種別 | 中古一戸建て | ||
| 所在地 | 大阪府大阪市西淀川区姫里3丁目11-33 | ||
| アクセス |
|
||
| 建物面積 | 公97.76㎡ | 駐車場 | あり 普通:1台 |
| 築年月 | 2006年(平成18年)01月築 | ||
| 建物構造 | 木造 (一部 RC ) 3階建 | 工法 | |
| 主要採光 | 北東向 | バルコニー | |
| 保証・評価 | |||
| リフォーム | 【水回り】2025年10月 キッチン・浴室・トイレ・洗面 システムキッチン新調、便器・温水洗浄便座新調、浴室ユニットバス新調、洗面化粧台新調 【内装】2025年10月 床 ・全室クロス クロス貼替え、フローリング貼替え |
||
| 土地面積 | 公57.03㎡(17.25坪) | 接道 | 北東側(私道)幅 約4.6m |
| 私道 | 別:公2.26㎡ | セットバック | |
| 地目 | 宅地 | 地勢 | |
| 権利 | 所有権 |
||
| 都市計画 | 市街化区域 |
用途地域 | 工業 |
| 建ぺい/容積率 | 60% / 200% | 土地国土法 | |
| 許可番号 | 建築基準法 | ||
| 法令制限 | |||
| 小学区 | 姫里小学校 徒歩4分 (約321m) | 中学区 | 歌島中学校 徒歩14分 (約1084m) |
| 現況 | 空 | 引渡 | 期日指定:2025年10月中旬 |
| その他費用 | 自治会費:2500円/年 |
||
| 周辺環境 | 鶴橋本通商店街 徒歩125分 (約10000m) 桃谷公園 徒歩128分 (約10200m) 業務スーパー 桃谷店 徒歩133分 (約10600m) サンディー桃谷店 徒歩137分 (約10890m) スーパー玉出 今里店 徒歩137分 (約10960m) 生野警察署 徒歩136分 (約10880m) 生野消防署勝山出張所 徒歩136分 (約10880m) 御勝山公園 徒歩138分 (約10990m) 生野郵便局 徒歩137分 (約10930m) 御勝山南公園 徒歩138分 (約11000m) |
||
| 備考 | |||
| 物件番号 | 4393820 | 取引態様 | 媒介 |
取扱店舗情報
| 電話番号 | 06-4303-6155 |
|---|---|
| 所在地 | 〒544-0015 大阪府大阪市生野区巽南5丁目4-33 |
| 営業時間 | 10:00~18:30 |
| 定休日 | (水)(木) |
| 宅建免許番号 | 大阪府知事(1)第64714号 |
| アクセス | 店舗への地図はこちら |

来店ご予約
大阪府大阪市西淀川区で価格が似ている物件はこちら
- 大阪府
マイページ物件数 - 15,901件
最近見た物件
-
-

-
- 中古一戸建て
- 300万円
-
福知山市夜久野町小倉
-
JR山陰本線下夜久野
-
-
-

-
- 中古一戸建て
- 700万円
-
福知山市土師新町3丁目
-
JR山陰本線福知山
-
大阪府中古一戸建て新着物件
- お近くの店舗を探す
-
おすすめ物件
-
-

-
- 中古一戸建て
- 3,480万円
-
富田林市梅の里3丁目
-
近鉄長野線喜志
-
-
-

-
- 中古一戸建て
- 3,380万円
-
泉大津市曽根町2丁目
-
南海電鉄本線松ノ浜
-
-
-

-
- 中古一戸建て
- 2,580万円
-
大阪市住吉区長居2丁目
-
JR阪和線長居
-
-
-

-
- 中古一戸建て
- 1,800万円
-
大阪市淀川区三国本町3丁目
-
阪急電鉄宝塚線三国
-
-
-

-
- 中古一戸建て
- 4,680万円
-
大阪市住吉区遠里小野6丁目
-
南海電鉄高野線我孫子前
-
-
-

-
- 中古一戸建て
- 880万円
-
堺市北区長曽根町
-
大阪市御堂筋線なかもず
-
-
-

-
- 中古一戸建て
- 2,000万円
-
大阪市平野区加美西2丁目
-
JR関西本線加美
-
-
-

-
- 中古一戸建て
- 730万円
-
泉南郡熊取町山の手台3丁目
-
JR阪和線熊取
-
-
-

-
- 中古一戸建て
- 1億8,000万円
-
大阪市住吉区清水丘3丁目
-
南海電鉄高野線我孫子前
-
-
-

-
- 中古一戸建て
- 2,300万円
-
大阪市阿倍野区阿倍野筋3丁目
-
大阪市谷町線阿倍野
-







