浜松市浜名区引佐町奥山 中古戸建
掲載情報更新日:2026年04月25日 次回更新予定日:2026年05月09日
- 798万円
-
- 借入ご希望金額
万円 - 借入期間
年 - 借入金利
% - 月々のお支払い金額
円
- 借入ご希望金額
※ 月々のお支払例は目安の試算となりますので、実際の金額とは異なる場合がございます。詳しくは店舗までお問合わせください。
- 浜松市浜名区引佐町奥山
-
天竜浜名湖鉄道『気賀』 徒歩82分 (約6500m)
『「小斉藤」停』 徒歩7分 (約560m)
浜松市浜名区引佐町奥山 中古戸建一戸建て | 物件情報
■駐車スペース2台分■緑豊かな暮らし■1階に和室■2階廊下収納
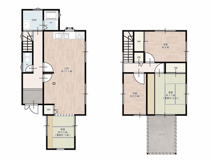
4LDKの木造2階建て♪(LDK約17.5.帖・1階1部屋・2階3部屋)
【この物件のココに注目】
■駐車スペース2台分(車種によります)
■緑豊かな暮らし
■1階に和室
■2階廊下収納
【周辺施設】
スーパー:マルモスーパーまで3200m(徒歩40分)
コンビニ:セブンイレブン引佐井伊谷北店まで4300m(徒歩54分)
奥山小学校まで850m(徒歩11分)
引佐南部中学校まで3600m(徒歩45分)
※周辺の学校と学区は異なる場合がございます。
楽しい暮らしのサポートを【ハウスドゥ浜北貴布祢 株式会社共和不動産センター】へお任せください!
物件の設備
- 上水道
- 浄化槽
- プロパンガス
- IHクッキングヒータ
- コンロ二口
- 温水洗浄便座
- 洗髪洗面化粧台
- 照明器具
- シャッター雨戸
- 床下収納
物件の特徴
- 2階建
物件詳細情報
| 価格 | 798万円 | 間取り | 4LDK |
|---|---|---|---|
| 物件種別 | 中古一戸建て | ||
| 所在地 | 静岡県浜松市浜名区引佐町奥山 | ||
| アクセス |
|
||
| 建物面積 | 83.62㎡ | 駐車場 | あり 普通:2台 |
| 築年月 | 1992年(平成4年)04月築 | ||
| 建物構造 | 木造 2階建 | 工法 | |
| 主要採光 | バルコニー | ||
| 保証・評価 | |||
| リフォーム | |||
| 土地面積 | 250.25㎡(75.70坪) | 接道 | |
| 私道 | セットバック | ||
| 地目 | 宅地 | 地勢 | |
| 権利 | 所有権 |
||
| 都市計画 | 区域外 |
用途地域 | 指定無 |
| 建ぺい/容積率 | 土地国土法 | ||
| 許可番号 | 建築基準法 | ||
| 法令制限 | |||
| 小学区 | 奥山小学校 徒歩11分 (約850m) | 中学区 | 引佐南部中学校 徒歩45分 (約3600m) |
| 現況 | 空 | 引渡 | 相談 |
| その他費用 | |||
| 備考 | |||
| 物件番号 | 4394859 | 取引態様 | 媒介 |
取扱店舗情報
ハウスドゥ 浜北貴布祢 株式会社共和不動産センター 店舗詳細ページへ
| 電話番号 | 053-581-7730 |
|---|---|
| 所在地 | 〒434-0037 静岡県浜松市浜名区沼317-1 グラード103 |
| 営業時間 | 9:00~18:00 |
| 定休日 | 水曜日、第2、第4日曜日、GW、年末年始、夏季休暇 |
| 宅建免許番号 | 静岡県知事(1)第14628号 |
| アクセス | 店舗への地図はこちら |

来店ご予約
- 静岡県
マイページ物件数 - 2,736件
最近見た物件
-
-

-
- 新築一戸建て
- 3,298万円
-
福岡市東区三苫4丁目
-
西鉄貝塚線三苫
-
-
-

-
- 中古一戸建て
- 1,449万円
-
山口市吉敷赤田1丁目
-
JR山口線矢原
-
-
-

-
- 新築一戸建て
- 4,798万円
-
大野城市白木原4丁目
-
西鉄天神大牟田線白木原
-
静岡県中古一戸建て新着物件
-
-

-
- 中古一戸建て
- 888万円
-
沼津市下香貫八重
-
JR東海道本線沼津駅
-
-
-

-
- 中古一戸建て
- 1,380万円
-
御殿場市二枚橋
-
JR御殿場線御殿場駅
-
-
-

-
- 中古一戸建て
- 3,100万円
-
御殿場市竈
-
JR御殿場線御殿場駅
-
-
-

-
- 中古一戸建て
- 2,580万円
-
静岡市葵区瀬名中央3丁目
-
JR東海道本線草薙駅
-
-
-

-
- 中古一戸建て
- 1,500万円
-
裾野市佐野
-
JR御殿場線裾野駅
-
-
-

-
- 中古一戸建て
- 850万円
-
田方郡函南町畑毛
-
伊豆箱根鉄道駿豆線伊豆仁田駅
-
-
-

-
- 中古一戸建て
- 490万円
-
浜松市中央区舘山寺町
-
JR東海道本線浜松駅
-
- お近くの店舗を探す
-
おすすめ物件
-
-

-
- 中古一戸建て
- 3,990万円
-
浜松市中央区小池町
-
遠州鉄道さぎの宮
-
-
-

-
- 中古一戸建て
- 700万円
-
駿東郡清水町徳倉
-
JR東海道本線沼津
-
-
-

-
- 中古一戸建て
- 2,070万円
-
静岡市葵区建穂1丁目
-
JR東海道本線静岡
-
-
-

-
- 中古一戸建て
- 1,099万円
-
静岡市葵区北4丁目
-
JR東海道本線静岡
-
-
-

-
- 中古一戸建て
- 4,990万円
-
静岡市清水区蜂ヶ谷
-
JR東海道本線清水
-
-
-

-
- 中古一戸建て
- 1,410万円
-
沼津市下香貫木ノ宮
-
JR東海道本線沼津
-
-
-

-
- 中古一戸建て
- 3,980万円
-
浜松市中央区神立町
-
JR東海道本線浜松
-
-
-

-
- 中古一戸建て
- 1,770万円
-
静岡市葵区水見色
-
JR東海道本線静岡
-
-
-

-
- 中古一戸建て
- 2,780万円
-
富士市原田
-
岳南電車岳南原田
-
-
-

-
- 中古一戸建て
- 2,480万円
-
浜松市中央区富塚町
-
遠鉄バス「ごんげんや」停
-






































担当エージェント:澤木 望
リフォーム済み♪ご内覧いただけます!お気軽にお問い合わせください!【建築士が在籍しておりますので建築目線でのアドバイス付き♪入居前に気になる箇所や入居後の修理、リフォームなど弊社でご相談承ります!】