新潟市中央区親松の中古戸建
掲載情報更新日:2026年05月09日 次回更新予定日:2026年05月23日
- 2,629万円
-
- 借入ご希望金額
万円 - 借入期間
年 - 借入金利
% - 月々のお支払い金額
円
- 借入ご希望金額
※ 月々のお支払例は目安の試算となりますので、実際の金額とは異なる場合がございます。詳しくは店舗までお問合わせください。
- 新潟市中央区親松
-
JR越後線『上所』 徒歩50分 (約4000m)
新潟交通(バス)『「上沼公民館前」』 徒歩11分 (約880m)
新潟市中央区親松一戸建て | 物件情報
不動産の売買はぜひ「ハウスドゥ女池」にお任せください!ワンストップで全て解決♪
◆新潟市中央区の不動産のことなら『ハウスドゥ女池』へ◆
全国約700店舗展開中!ハウスドゥの地域密着型ネットワーク
×
規格住宅・自由設計両方対応可能!ワンストップ型店舗
土地探し・新築・リフォーム・売却・お引越しに至るまで
不動産に関するご相談はハウスドゥ女池で全て解決!
いつでもご案内可能です!
お気軽にお問い合わせ下さい【025-288-5891】
≪物件おすすめポイント≫
■鳥屋野小/上山中エリア!
■前面道路幅6m!駐車も楽々♪
■大容量の屋根裏収納
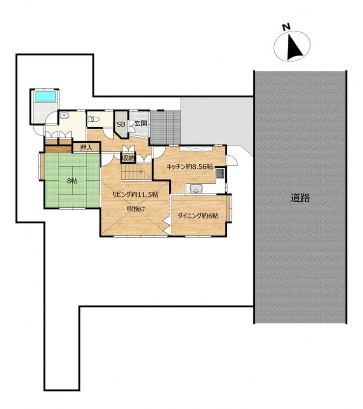
■リビングダイニングとキッチンを合わせると約25帖の広々LDK!
物件の設備
- 公営水道
- 公共下水
- 都市ガス
- 給湯
- システムキッチン
- 追焚機能
- 温水洗浄便座
- 洗髪洗面化粧台
- 照明器具
- LDK20畳以上
- 和室
- 和室8畳以上
- 複層ガラス
- フローリング
物件の特徴
- 南向
- 前道6m以上
- 閑静な住宅街
- 陽当り良好
- 2階建
- 平坦地
- 即入居可
物件詳細情報
| 価格 | 2,629万円 | 間取り | 2LDK+S |
|---|---|---|---|
| 物件種別 | 中古一戸建て | ||
| 所在地 | 新潟県新潟市中央区親松 | ||
| アクセス |
|
||
| 建物面積 | 127.91㎡ | 駐車場 | あり 普通:1台 |
| 築年月 | 1997年(平成9年)11月築 | ||
| 建物構造 | 木造 2階建 | 工法 | |
| 主要採光 | 南向 | バルコニー | |
| 保証・評価 | |||
| リフォーム | |||
| 土地面積 | 222.55㎡(67.32坪) | 接道 | 北東側(私道)幅 約6.0m |
| 私道 | 別:40.00㎡(持分 1/1) | セットバック | |
| 地目 | 宅地 | 地勢 | |
| 権利 | 所有権 |
||
| 都市計画 | 市街化区域 |
用途地域 | 1種中高 |
| 建ぺい/容積率 | 60% / 200% | 土地国土法 | |
| 許可番号 | 建築基準法 | ||
| 法令制限 | |||
| 小学区 | 鳥屋野小学校 徒歩17分 (約1300m) | 中学区 | 上山中学校 徒歩24分 (約1900m) |
| 現況 | 空 | 引渡 | 即 |
| その他費用 | |||
| 周辺環境 | 新潟市立 鳥屋野小学校 徒歩17分 (約1300m) 新潟市立 上山中学校 徒歩24分 (約1920m) こどものいえ保育園 徒歩3分 (約200m) 親松幼稚園 徒歩6分 (約440m) 医療法人恒仁会 新潟南病院 徒歩10分 (約760m) はるまち保育園 徒歩10分 (約780m) 鳥屋野保育園 徒歩15分 (約1130m) JA新潟市 鳥屋野南支店 徒歩14分 (約1060m) 新潟信用金庫 鳥屋野支店 徒歩14分 (約1100m) 神明公園 徒歩24分 (約1870m) |
||
| 備考 | *現況渡し ■駐車場:1台可(※車種によります) |
||
| 物件番号 | 4394936 | 取引態様 | 媒介 |
取扱店舗情報
ハウスドゥ 女池 株式会社リアライズ・コーポレーション 店舗詳細ページへ
| 電話番号 | 025-288-5891 |
|---|---|
| 所在地 | 〒950-0946 新潟県新潟市中央区女池西2-2-9 |
| 営業時間 | 9:30~18:30 |
| 定休日 | 水曜日 |
| 宅建免許番号 | 新潟県知事(4)第4864号 |
| アクセス | 店舗への地図はこちら |

来店ご予約
- 新潟県
マイページ物件数 - 1,535件
最近見た物件
-
-

-
- 中古一戸建て
- 380万円
-
長崎市春木町
-
西高裏バス停
-
-
-

-
- 新築一戸建て
- 3,799万円
-
仙台市宮城野区岩切字鴻巣
-
JR東北本線岩切
-
-
-

-
- 中古一戸建て
- 390万円
-
北九州市小倉北区泉台3丁目
-
JR日豊本線南小倉
-
新潟県中古一戸建て新着物件
-
-

-
- 中古一戸建て
- 1,199万円
-
新潟市西区小新大通1丁目
-
JR越後線小針駅
-
-
-

-
- 中古一戸建て
- 1,299万円
-
新潟市西区五十嵐中島5丁目
-
JR越後線内野西が丘駅
-
-
-

-
- 中古一戸建て
- 3,580万円
-
新潟市中央区沼垂東6丁目
-
JR上越新幹線新潟駅
-
-
-

-
- 中古一戸建て
- 150万円
-
上越市中央5丁目
-
妙高はねうまライン直江津駅
-
-
-

-
- 中古一戸建て
- 1,250万円
-
新潟市南区高井東2丁目
-
JR信越本線さつき野駅
-
-
-

-
- 中古一戸建て
- 700万円
-
糸魚川市上刈1丁目
-
日本海ひすいライン糸魚川駅
-
-
-

-
- 中古一戸建て
- 2,199万円
-
新潟市西区ときめき東1丁目
-
JR越後線小針駅
-
- お近くの店舗を探す
-
おすすめ物件
-
-

-
- 中古一戸建て
- 2,400万円
-
新潟市江南区亀田水道町4丁目
-
JR信越本線亀田
-
-
-

-
- 中古一戸建て
- 2,480万円
-
新潟市江南区袋津2丁目
-
JR信越本線亀田
-
-
-

-
- 中古一戸建て
- 1,980万円
-
上越市三ツ橋
-
妙高はねうまライン直江津
-
-
-

-
- 中古一戸建て
- 6,000万円
-
妙高市大字杉野沢
-
妙高はねうまライン妙高高原
-
-
-

-
- 中古一戸建て
- 2,800万円
-
上越市とよば
-
妙高はねうまライン高田
-
-
-

-
- 中古一戸建て
- 2,990万円
-
新潟市秋葉区矢代田
-
JR信越本線矢代田
-
-
-

-
- 中古一戸建て
- 998万円
-
新潟市江南区稲葉2丁目
-
JR信越本線亀田
-
-
-

-
- 中古一戸建て
- 2,000万円
-
上越市南城町2丁目
-
妙高はねうまライン南高田
-
-
-

-
- 中古一戸建て
- 580万円
-
新潟市江南区稲葉3丁目
-
JR信越本線亀田
-
-
-

-
- 中古一戸建て
- 1,800万円
-
上越市幸町
-
妙高はねうまライン高田
-






























担当エージェント:佐藤 俊範
当店は株式会社リアライズ・コーポレーションが運営する「新潟市中央区」に特化した、地域密着型の不動産会社です。
全国約700店舗展開中の古田さんCMでおなじみの「ハウスドゥ」また、新潟市中央区の「ジブンハウス」加盟店である当店は、新築のご相談から土地探し、リフォーム・不動産のご売却、更にはお引越しに至るまで「ワンストップ」でお客様の「お家探し」を全力サポート致します!
店内はお客様がゆったり過ごせるカフェのような空間をご提供♪ぜひお気軽にお越しください!