北区金岡町
掲載情報更新日:2026年04月11日 次回更新予定日:2026年04月25日
- 4,490万円
-
- 借入ご希望金額
万円 - 借入期間
年 - 借入金利
% - 月々のお支払い金額
円
- 借入ご希望金額
※ 月々のお支払例は目安の試算となりますので、実際の金額とは異なる場合がございます。詳しくは店舗までお問合わせください。
- 堺市北区金岡町
-
大阪市御堂筋線『新金岡』 徒歩8分 (約640m)
大阪市御堂筋線『なかもず』 徒歩12分 (約960m)
南海電鉄高野線『白鷺』 徒歩18分 (約1410m)
北区金岡町一戸建て | 物件情報
抜群のロケーションと生活利便性♪
駅近徒歩5分!
買い物環境が充実で奥様にもオススメ♪
物件の設備
- 公営水道
- 公共下水
- 都市ガス
- 給湯
- IHクッキングヒータ
- カウンターキッチン
- システムキッチン
- オートバス
- 浴室乾燥機
- 浴室に窓
- トイレ2箇所
- 温水洗浄便座
- 室内洗濯機置場
- 洗髪洗面化粧台
- モニタ付インターホン
- フローリング
- クローゼット
- 床下収納
物件の特徴
- 2沿線利用可
- 駅まで平坦
- 小学校徒歩10分以内
- 前道6m以上
- スーパーが近い
- 閑静な住宅街
- 陽当り良好
- 2階建
- 即入居可
- 二世帯向
物件詳細情報
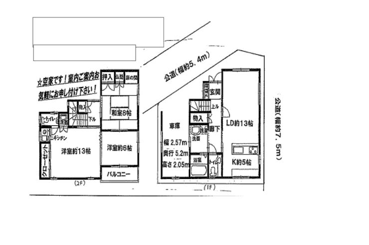
| 価格 | 4,490万円 | 間取り | 3LDK |
|---|---|---|---|
| 物件種別 | 中古一戸建て | ||
| 所在地 | 大阪府堺市北区金岡町 | ||
| アクセス |
|
||
| 建物面積 | 公123.3㎡ | 駐車場 | あり |
| 築年月 | 1995年(平成7年)10月築 | ||
| 建物構造 | 木造 2階建 | 工法 | |
| 主要採光 | バルコニー | ||
| 保証・評価 | |||
| リフォーム | |||
| 土地面積 | 公95.49㎡(28.88坪) | 接道 | 北東側(公道)幅 約7.5m 間口 約9.90m 北西側(公道)幅 約5.4m 間口 約9.70m |
| 私道 | セットバック | 無 | |
| 地目 | 宅地 | 地勢 | 平坦 |
| 権利 | 所有権 |
||
| 都市計画 | 市街化区域 |
用途地域 | 2種中高 |
| 建ぺい/容積率 | 60% / 200% | 土地国土法 | 届出不要 |
| 許可番号 | 建築基準法 | ||
| 法令制限 | |||
| 小学区 | 金岡小学校 徒歩4分 (約290m) | 中学区 | 金岡南中学校 徒歩17分 (約1300m) |
| 現況 | 空 | 引渡 | 即 |
| その他費用 | |||
| 備考 | 2025年(令和 7年)4月 壁、天井クロス貼替(LDK、洋室、1階ホール、車庫)他増改築 ワンボックスカー駐車可能! |
||
| 物件番号 | 4399781 | 取引態様 | 媒介 |
取扱店舗情報
| 電話番号 | 072-230-4861 |
|---|---|
| 所在地 | 〒591-8011 大阪府堺市北区南花田町537-1 |
| 営業時間 | 10:00~18:00 |
| 定休日 | 火曜日、水曜日、年末年始 |
| 宅建免許番号 | 大阪府知事(2)第59339号 |
| アクセス | 店舗への地図はこちら |

来店ご予約
- 大阪府
マイページ物件数 - 18,224件
最近見た物件
-
-

-
- 中古一戸建て
- 2,300万円
-
東大阪市新家中町
-
近鉄けいはんな線長田
-
-
-

-
- 新築一戸建て
- 3,290万円
-
仙台市太白区金剛沢3丁目
-
仙台市地下鉄東西線八木山動物公園
-
-
-

-
- 中古一戸建て
- 2,650万円
-
北見市高砂町
-
JR石北本線北見
-
大阪府中古一戸建て新着物件
-
-

-
- 中古一戸建て
- 2,490万円
-
大阪市旭区今市1丁目
-
大阪市谷町線太子橋今市駅
-
-
-

-
- 中古一戸建て
- 580万円
-
堺市中区陶器北
-
南海電鉄高野線北野田駅
-
-
-

-
- 中古一戸建て
- 3,390万円
-
豊中市庄内西町2丁目
-
阪急電鉄宝塚線庄内駅
-
-
-

-
- 中古一戸建て
- 2,550万円
-
岸和田市土生町6丁目
-
JR阪和線東岸和田駅
-
-
-

-
- 中古一戸建て
- 2,478万円
-
堺市中区八田北町
-
南海電鉄泉北線深井駅
-
-
-

-
- 中古一戸建て
- 4,899万円
-
箕面市牧落1丁目
-
阪急電鉄箕面線牧落駅
-
-
-

-
- 中古一戸建て
- 2,180万円
-
大阪市旭区清水1丁目
-
京阪本線千林駅
-
- お近くの店舗を探す
-
おすすめ物件
-
-

-
- 中古一戸建て
- 1,980万円
-
東大阪市稲葉1丁目
-
近鉄難波・奈良線河内花園
-
-
-

-
- 中古一戸建て
- 3,180万円
-
高槻市淀の原町
-
阪急電鉄京都線上牧
-
-
-

-
- 中古一戸建て
- 2,680万円
-
八尾市高美町3丁目
-
JR関西本線八尾
-
-
-

-
- 中古一戸建て
- 1,350万円
-
泉南市樽井2丁目
-
南海電鉄本線樽井
-
-
-

-
- 中古一戸建て
- 2,850万円
-
摂津市鳥飼新町1丁目
-
大阪モノレール沢良宜
-
-
-

-
- 中古一戸建て
- 5,100万円
-
大阪市住之江区西加賀屋3丁目
-
大阪市四つ橋線北加賀屋
-
-
-

-
- 中古一戸建て
- 2,480万円
-
泉大津市板原町1丁目
-
JR阪和線和泉府中
-
-
-

-
- 中古一戸建て
- 3,680万円
-
大阪市東住吉区東田辺1丁目
-
大阪市谷町線駒川中野
-
-
-

-
- 中古一戸建て
- 2,498万円
-
神戸市灘区千旦通1丁目
-
阪神電鉄本線大石
-
-
-

-
- 中古一戸建て
- 2,980万円
-
八尾市栄町2丁目
-
JR関西本線八尾
-





















担当エージェント:甲斐田 恭大
令和7年4月に改装済みで内装が新しくなり、気持ちよく新生活をスタートできます!
広々とした間取りで大きな車も安心の車庫、前面道路も広いので車の出し入れもスムーズです!