伊奈町西小針3丁目 中古戸建
掲載情報更新日:2026年01月17日 次回更新予定日:2026年01月31日
- 2,380万円
-
- 借入ご希望金額
万円 - 借入期間
年 - 借入金利
% - 月々のお支払い金額
円
- 借入ご希望金額
※ 月々のお支払例は目安の試算となりますので、実際の金額とは異なる場合がございます。詳しくは店舗までお問合わせください。
- 北足立郡伊奈町西小針3丁目
-
埼玉新都市交通『内宿』 徒歩9分 (約720m)
埼玉新都市交通『羽貫』 徒歩21分 (約1680m)
埼玉新都市交通『伊奈中央』 徒歩37分 (約2960m)
伊奈町西小針3丁目 中古戸建一戸建て | 物件情報
☆弊社専任物件・価格改定☆ 三菱地所ホーム株式会社施工 南東角地 カーポート並列駐車2台可能
平成17年に建てられた三菱地所ホーム株式会社施工の角地物件となっております。
玄関スペースは吹き抜けとなっていたり、窓が多く、陽当たり良好!
2階にも洗面台が備わっていたり、パントリーが備わっており、生活動線のとれた設計となっております。
物件の設備
- 電気
- 公営水道
- 公共下水
- プロパンガス
- 給湯
- 食器乾燥機
- コンロ三口
- ガスコンロ付
- システムキッチン
- バス
- 追焚機能
- 浴室乾燥機
- トイレ2箇所
- 温水洗浄便座
- 室内洗濯機置場
- 洗髪洗面化粧台
- 洗面所独立
- 和室
- 全居室6畳以上
- 2面採光
- 3面採光
- 全室2面採光
- 吹抜
- シャッター雨戸
- 24時間換気システム
- クローゼット
- ウォークインクローゼット
- 床下収納
- シューズボックス
- 2面バルコニー
物件の特徴
- 南向
- 始発駅
- 前道6m以上
- 南側道路面す
- 閑静な住宅街
- 陽当り良好
- 2階建
- 角地
- 整形地
- 区画整理地内
物件詳細情報
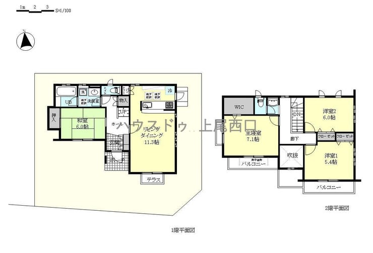
| 価格 | 2,380万円 | 間取り | 4LDK |
|---|---|---|---|
| 物件種別 | 中古一戸建て | ||
| 所在地 | 埼玉県北足立郡伊奈町西小針3丁目 | ||
| アクセス |
|
||
| 建物面積 | 公103.92㎡ | 駐車場 | なし |
| 築年月 | 2005年(平成17年)05月築 | ||
| 建物構造 | 木造 セメント板葺 2階建 | 工法 | 2×4工法 |
| 主要採光 | 南向 | バルコニー | |
| 保証・評価 | |||
| リフォーム | |||
| 土地面積 | 公145.34㎡(43.96坪) | 接道 | 東側(公道)幅 約4.5m 間口 約10.78m 南側(公道)幅 約6.0m 間口 約10.83m |
| 私道 | セットバック | ||
| 地目 | 宅地 | 地勢 | |
| 権利 | 所有権 |
||
| 都市計画 | 市街化区域 |
用途地域 | 1種低層 |
| 建ぺい/容積率 | 60% / 80% | 土地国土法 | |
| 許可番号 | 建築基準法 | ||
| 法令制限 | 景観法・日影制限有・法22条区域 | ||
| 小学区 | 小針北小学校 徒歩6分 (約430m) | 中学区 | 小針中学校 徒歩27分 (約2110m) |
| 現況 | 空 | 引渡 | 相談 |
| その他費用 | |||
| 周辺環境 | 内宿台公園 徒歩4分 (約280m) 伊奈町立小針北小学校 徒歩6分 (約430m) 伊奈ゆたか保育園 徒歩10分 (約750m) 内宿駅 徒歩10分 (約790m) ドラッグセイムス伊奈内宿店 徒歩12分 (約910m) 金崎内科医院 徒歩11分 (約820m) セブンイレブン伊奈内宿店 徒歩11分 (約830m) マルエツ伊奈店 徒歩21分 (約1610m) ウニクス伊奈 徒歩25分 (約1950m) 伊奈町立小針中学校 徒歩27分 (約2110m) |
||
| 備考 | |||
| 物件番号 | 4401463 | 取引態様 | 専任 |
取扱店舗情報
ハウスドゥ 上尾西口 武蔵都市開発株式会社 店舗詳細ページへ
| 電話番号 | 048-729-4025 |
|---|---|
| 所在地 | 〒362-0042 埼玉県上尾市谷津2丁目4-5 小川第一ビル102号室 |
| 営業時間 | 9:30~18:30 |
| 定休日 | 火曜日・水曜日、年末年始 |
| 宅建免許番号 | 埼玉県知事(1)第25246号 |
| アクセス | 店舗への地図はこちら |

来店ご予約
- 埼玉県
マイページ物件数 - 3,183件
最近見た物件
埼玉県中古一戸建て新着物件
-
-

-
- 中古一戸建て
- 2,480万円
-
さいたま市岩槻区宮町2丁目
-
東武野田線東岩槻駅
-
-
-

-
- 中古一戸建て
- 4,580万円
-
川口市南鳩ヶ谷7丁目
-
埼玉高速鉄道鳩ヶ谷駅
-
-
-

-
- 中古一戸建て
- 598万円
-
川口市大字安行吉蔵
-
埼玉高速鉄道戸塚安行駅
-
-
-

-
- 中古一戸建て
- 1,880万円
-
さいたま市岩槻区宮町2丁目
-
東武野田線東岩槻駅
-
-
-

-
- 中古一戸建て
- 1,680万円
-
さいたま市岩槻区大字小溝
-
東武野田線豊春駅
-
-
-

-
- 中古一戸建て
- 2,280万円
-
さいたま市岩槻区本丸3丁目
-
東武野田線東岩槻駅
-
-
-

-
- 中古一戸建て
- 3,000万円
-
さいたま市岩槻区加倉5丁目
-
東武野田線岩槻駅
-
- お近くの店舗を探す
-
おすすめ物件
-
-

-
- 中古一戸建て
- 3,999万円
-
川口市栄町1丁目
-
埼玉高速鉄道川口元郷
-
-
-

-
- 中古一戸建て
- 2,499万円
-
上尾市大字平塚
-
JR高崎線上尾
-
-
-

-
- 中古一戸建て
- 1,599万円
-
北葛飾郡松伏町大字松伏
-
東武伊勢崎・大師線北越谷
-
-
-

-
- 中古一戸建て
- 2,650万円
-
川越市岸町2丁目
-
東武東上線川越
-
-
-

-
- 中古一戸建て
- 2,380万円
-
北足立郡伊奈町西小針3丁目
-
埼玉新都市交通内宿
-
-
-

-
- 中古一戸建て
- 2,499万円
-
さいたま市大宮区三橋1丁目
-
JR東北本線大宮
-
-
-

-
- 中古一戸建て
- 2,680万円
-
さいたま市岩槻区城町1丁目
-
東武野田線岩槻
-
-
-

-
- 中古一戸建て
- 1,640万円
-
北葛飾郡杉戸町大字堤根
-
東武伊勢崎・大師線北春日部
-
-
-

-
- 中古一戸建て
- 2,799万円
-
さいたま市大宮区三橋1丁目
-
JR東北本線大宮
-
-
-

-
- 中古一戸建て
- 2,180万円
-
吉川市大字川藤
-
JR武蔵野線吉川
-
























担当エージェント:平田 杏弥
本物件は日程調整の上、ご案内可能です。お気軽にお問い合わせください。
不動産の事から住宅ローンの事まで幅広くご相談可能です。
会社選び+担当者=安心の住まい探し。全国700店舗展開・東証プライム上場のハウスドゥへお任せください。