茨木市彩都あさぎ6丁目
掲載情報更新日:2025年10月13日 次回更新予定日:2025年10月27日
- 5,480万円
-
- 借入ご希望金額
万円 - 借入期間
年 - 借入金利
% - 月々のお支払い金額
円
- 借入ご希望金額
※ 月々のお支払例は目安の試算となりますので、実際の金額とは異なる場合がございます。詳しくは店舗までお問合わせください。
- 茨木市彩都あさぎ6丁目
-
大阪モノレール彩都『彩都西』 徒歩15分 (約1200m)
茨木市彩都あさぎ6丁目一戸建て | 物件情報
物件の設備
- 電気
- 公営水道
- 公共下水
- 都市ガス
- 給湯
- コンロ三口
- カウンターキッチン
- バス
- 浴室暖房
- 浴室乾燥機
- 浴室に窓
- トイレ
- トイレ2箇所
- 室内洗濯機置場
- 洗面所独立
- 床暖房
- LDK15畳以上
- LDK18畳以上
- LDK20畳以上
- 和室
- 全居室6畳以上
- 全居室8畳以上
- フローリング
- 一部フローリング
- 24時間換気システム
- クローゼット
- クローゼット2箇所
- クローゼット3箇所
- バルコニー
物件の特徴
- 内装リフォーム済
- 小学校徒歩10分以内
- 前道6m以上
- 南側道路面す
- 2階建
- 角地
- 即入居可
物件詳細情報
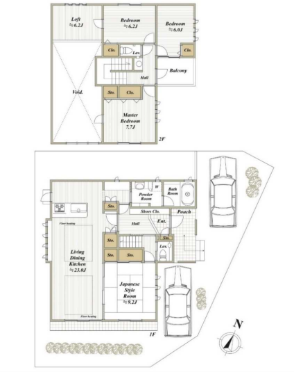
| 価格 | 5,480万円 | 間取り | 4LDK |
|---|---|---|---|
| 物件種別 | 中古一戸建て | ||
| 所在地 | 大阪府茨木市彩都あさぎ6丁目 | ||
| アクセス |
|
||
| 建物面積 | 136.83㎡ | 駐車場 | あり |
| 築年月 | 2007年(平成19年)12月築 | ||
| 建物構造 | 木造 2階建 | 工法 | |
| 主要採光 | 南東向 | バルコニー | |
| 保証・評価 | |||
| リフォーム | 【水回り】2025年09月 キッチン・浴室・トイレ・給湯器 【内装】2025年09月 全室クロス ・サッシ |
||
| 土地面積 | 192.88㎡(58.34坪) | 接道 | 東側幅 約8.0m 南側幅 約8.0m |
| 私道 | セットバック | ||
| 地目 | 宅地 | 地勢 | |
| 権利 | 所有権 |
||
| 都市計画 | 市街化区域 |
用途地域 | 1種低層 |
| 建ぺい/容積率 | 60% / 200% | 土地国土法 | |
| 許可番号 | 建築基準法 | ||
| 法令制限 | |||
| 小学区 | 彩都西小学校 徒歩4分 (約300m) | 中学区 | 彩都西中学校 徒歩6分 (約450m) |
| 現況 | 空 | 引渡 | 即 |
| その他費用 | |||
| 備考 | |||
| 物件番号 | 4401801 | 取引態様 | 媒介 |
取扱店舗情報
| 電話番号 | 072-665-7401 |
|---|---|
| 所在地 | 〒567-0066 大阪府茨木市下井町1-14 |
| 営業時間 | 9:30~18:30 |
| 定休日 | 水曜日、年末年始 |
| 宅建免許番号 | 大阪府知事(1)第62975号 |
| アクセス | 店舗への地図はこちら |

来店ご予約
大阪府茨木市で価格が似ている物件はこちら
- 大阪府
マイページ物件数 - 14,773件
最近見た物件
-
-

-
- 中古一戸建て
- 5,480万円
-
茨木市彩都あさぎ6丁目
-
大阪モノレール彩都彩都西
-
大阪府中古一戸建て新着物件
-
-

-
- 中古一戸建て
- 2,590万円
-
大阪市西淀川区姫島2丁目
-
阪神電鉄本線姫島駅
-
-
-

-
- 中古一戸建て
- 380万円
-
門真市島頭3丁目
-
京阪本線大和田駅
-
-
-

-
- 中古一戸建て
- 1,780万円
-
高槻市緑が丘1丁目
-
JR東海道線高槻駅
-
-
-

-
- 中古一戸建て
- 2,500万円
-
吹田市千里山東1丁目
-
阪急電鉄千里線関大前駅
-
-
-

-
- 中古一戸建て
- 2,780万円
-
大阪市西淀川区佃3丁目
-
阪神電鉄本線千船駅
-
-
-

-
- 中古一戸建て
- 1,680万円
-
泉南郡熊取町つばさが丘北2丁目
-
JR阪和線熊取駅
-
-
-

-
- 中古一戸建て
- 1億5,000万円
-
豊中市服部南町2丁目
-
阪急電鉄宝塚線服部天神駅
-
- お近くの店舗を探す
-
おすすめ物件
-
-

-
- 中古一戸建て
- 2,380万円
-
大阪市住之江区平林南2丁目
-
南港ポートタウン線(ニュートラム)平林
-
-
-

-
- 中古一戸建て
- 1,600万円
-
八尾市垣内4丁目
-
近鉄信貴線信貴山口
-
-
-

-
- 中古一戸建て
- 2,200万円
-
川西市鼓が滝3丁目
-
能勢電鉄鼓滝
-
-
-

-
- 中古一戸建て
- 2,980万円
-
大阪市住吉区山之内4丁目
-
JR阪和線杉本町
-
-
-

-
- 中古一戸建て
- 2,180万円
-
東大阪市末広町
-
近鉄難波・奈良線瓢箪山
-
-
-

-
- 中古一戸建て
- 1,800万円
-
大阪市淀川区三国本町3丁目
-
阪急電鉄宝塚線三国
-
-
-

-
- 中古一戸建て
- 2,980万円
-
大阪市住吉区山之内4丁目
-
JR阪和線杉本町
-
-
-

-
- 中古一戸建て
- 580万円
-
貝塚市橋本
-
JR阪和線和泉橋本
-
-
-

-
- 中古一戸建て
- 798万円
-
八尾市竹渕東1丁目
-
JR関西本線加美
-
-
-

-
- 中古一戸建て
- 2,580万円
-
大阪市住吉区長居2丁目
-
JR阪和線長居
-


